|
|
|
| Larry Stein Oklahoma County Assessor (405) 713-1200 - Public Access System |
|
|
|
|
|
|
| Real Property Display - Screen Produced 3/16/2026 7:50:17 AM | ||||
|---|---|---|---|---|
| Account: R063741440 | Type: Residential | Location: |
2339 NW 21ST ST |
|
| Building Name/Occupant: |
|
OKLAHOMA CITY |
||
| Owner Name 1: | CANNON PEGGY L |
Parcel PIN#: |
2717-06-374-1440 |
|
| Owner Name 2: | 1/4 section #: |
2717 |
||
| Owner Name 3: | Parent Acct: |
|
||
| Billing Address: | 2339 NW 21ST ST | Tax District: |
|
|
| City, State, Zip | OKLAHOMA CITY, OK 73107-3338 | School System: |
Oklahoma City #89 |
|
|
Country: (If noted) |
Land Size: |
0.1791 Acres |
||
|
Land Value: 33,930 |
|
|||
|
Sect 30-T12N-R3W Qtr NE |
AURORA ADDITION
Block
005
Lot
000
|
|||
| Full Legal Description: AURORA ADDITION 005 000 W52FT OF E104FT OF S 1/2 |
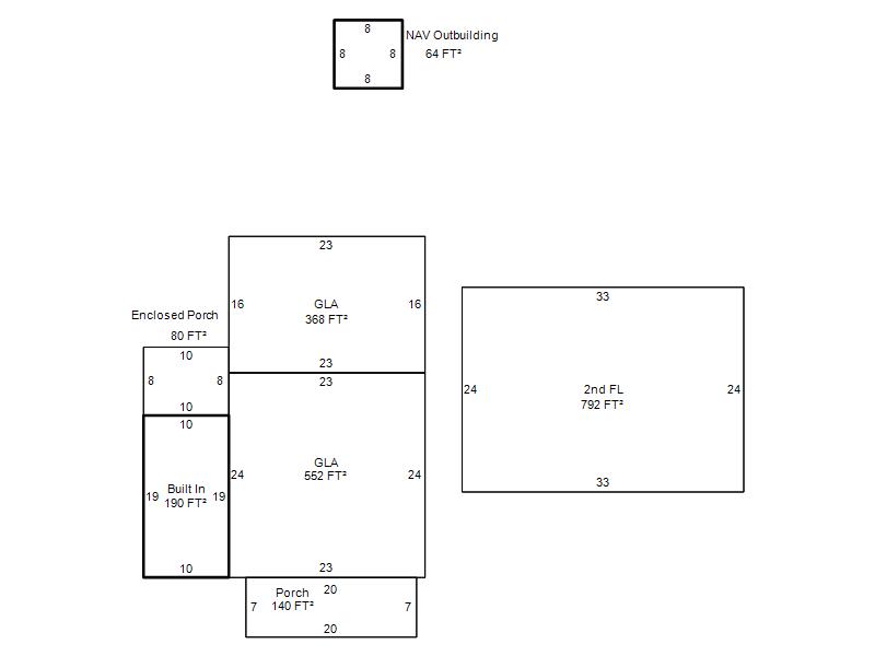
| Photo & Sketch (if available) | Comp Sales (ordered by relevancy) |
|
||||||||||||||||||
|
||||||||||||||||||||
| Value History (*The County Treasurer 405-713-1300 posts & collects actual tax amounts. Contact information HERE) | |||||||||||||
|---|---|---|---|---|---|---|---|---|---|---|---|---|---|
| Year | Market Value | Taxable Mkt Value | Gross Assessed | Exemption | Net Assessed | Millage | Est. Tax | Tax Savings | |||||
|
2025 |
223,500 |
116,101 |
12,770 |
1,000 |
11,770 |
122.90 |
$1,447 |
$1,575 |
|||||
|
2024 |
219,000 |
112,720 |
12,399 |
1,000 |
11,399 |
123.89 |
$1,412 |
$1,572 |
|||||
|
2023 |
207,000 |
109,437 |
12,037 |
1,000 |
11,037 |
122.82 |
$1,356 |
$1,441 |
|||||
|
2022 |
160,500 |
106,250 |
11,686 |
1,000 |
10,686 |
117.63 |
$1,257 |
$820 |
|||||
|
2021 |
144,500 |
103,156 |
11,346 |
1,000 |
10,346 |
117.70 |
$1,218 |
$653 |
|||||
| Property Account Status/Adjustments/Exemptions | ||
|---|---|---|
| Account # | Exemption Description | Amount |
|
R063741440 |
3% Cap Homestead |
0 |
|
R063741440 |
Homestead |
1,000 |
| Property Deed Transaction History (Recorded in the County Clerk's Office) | |||||||
|---|---|---|---|---|---|---|---|
| Date | Type | Book | Page | Price | Grantor | Grantee | |
|
10/24/2000 |
|
Deeds |
$0 |
ISAACS VIRGINIA K CANNON PEGGY L |
CANNON PEGGY L |
||
|
12/18/1997 |
|
Historical |
$0 |
ISAACS VIRGINIA K |
ISAACS VIRGINIA K |
||
|
12/3/1997 |
|
Historical |
$53,000 |
PATTEN CAROLE |
ISAACS VIRGINIA K |
||
|
6/27/1996 |
|
Historical |
$0 |
PATTEN MARY BERNICE |
PATTEN CAROLE |
||
|
11/11/1911 |
|
Historical |
$0 |
|
PATTEN MARY BERNICE |
||
| Last Mailed Notice of Value (N.O.V.) Information/History | ||||||||
|---|---|---|---|---|---|---|---|---|
| Year | Date | Market Value | Taxable Market Value | Gross Assessed | Exemption | Net Assessed | ||
|
2026 |
02/23/2026 |
222,500 |
119,584 |
13,154 |
1,000 |
12,154 |
||
|
2025 |
02/14/2025 |
223,500 |
116,101 |
12,770 |
1,000 |
11,770 |
||
|
2024 |
02/13/2024 |
219,000 |
112,720 |
12,399 |
1,000 |
11,399 |
||
|
2023 |
02/14/2023 |
207,000 |
109,437 |
12,037 |
1,000 |
11,037 |
||
|
2022 |
03/15/2022 |
160,500 |
106,250 |
11,686 |
1,000 |
10,686 |
||
| Property Building Permit History | |||||||||||
|---|---|---|---|---|---|---|---|---|---|---|---|
| Issued | Permit # | Provided by | Bldg # | Description | Est Construction Cost | Status | |||||
| No Building Permit records returned. | |||||||||||
| Click button on building number to access detailed information: | ||||||
|---|---|---|---|---|---|---|
| Bldg # | Vacant/Improved Land | Bldg Description | Year Built | SqFt | # Stories | |
|
1 |
Improved |
2 Story |
1939 |
1,712 |
2 Stories |
|