|
|
|
| Larry Stein Oklahoma County Assessor (405) 713-1200 - Public Access System |
|
|
|
|
|
|
| Real Property Display - Screen Produced 3/16/2026 7:51:43 AM | ||||
|---|---|---|---|---|
| Account: R063742730 | Type: Residential | Location: |
2339 NW 20TH ST |
|
| Building Name/Occupant: |
|
OKLAHOMA CITY |
||
| Owner Name 1: | GRAMAJO DORITA OTILIA |
Parcel PIN#: |
2717-06-374-2730 |
|
| Owner Name 2: | 1/4 section #: |
2717 |
||
| Owner Name 3: | Parent Acct: |
|
||
| Billing Address: | 3033 NW 16TH ST | Tax District: |
|
|
| City, State, Zip | OKLAHOMA CITY, OK 73107 | School System: |
Oklahoma City #89 |
|
|
Country: (If noted) |
Land Size: |
0.1653 Acres |
||
|
Land Value: 31,320 |
|
|||
|
Sect 30-T12N-R3W Qtr NE |
AURORA ADDITION
Block
008
Lot
000
|
|||
| Full Legal Description: AURORA ADDITION 008 000 W48FT OF E92FT OF S2 OF E2 |
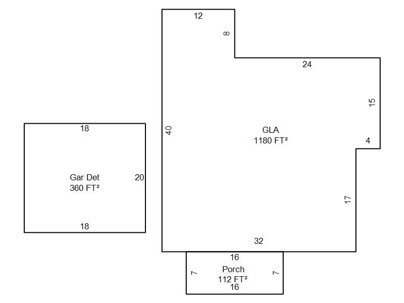
| Photo & Sketch (if available) | Comp Sales (ordered by relevancy) |
|
||||||||||||||||||
|
||||||||||||||||||||
| Value History (*The County Treasurer 405-713-1300 posts & collects actual tax amounts. Contact information HERE) | |||||||||||||
|---|---|---|---|---|---|---|---|---|---|---|---|---|---|
| Year | Market Value | Taxable Mkt Value | Gross Assessed | Exemption | Net Assessed | Millage | Est. Tax | Tax Savings | |||||
|
2025 |
175,500 |
124,057 |
13,645 |
0 |
13,645 |
122.90 |
$1,677 |
$695 |
|||||
|
2024 |
169,500 |
118,150 |
12,995 |
0 |
12,995 |
123.89 |
$1,610 |
$700 |
|||||
|
2023 |
163,000 |
112,524 |
12,377 |
0 |
12,377 |
122.82 |
$1,520 |
$682 |
|||||
|
2022 |
127,500 |
107,166 |
11,787 |
0 |
11,787 |
117.63 |
$1,387 |
$263 |
|||||
|
2021 |
116,500 |
102,063 |
11,226 |
0 |
11,226 |
117.70 |
$1,321 |
$187 |
|||||
| Property Account Status/Adjustments/Exemptions | ||||||
|---|---|---|---|---|---|---|
| Account # | Exemption Description | Amount | ||||
| No adjustment/exemption records returned. | ||||||
| Property Deed Transaction History (Recorded in the County Clerk's Office) | ||||||||||
|---|---|---|---|---|---|---|---|---|---|---|
| Date | Type | Book | Page | Price | Grantor | Grantee | ||||
|
8/31/2021 |
|
Hmstd Off & |
$0 |
CIFUENTES LIZANDRO |
GRAMAJO DORITA OTILIA |
|||||
|
11/30/1998 |
|
Historical |
$26,000 |
BELTRAN EUSEBIUS J ARCHBISHOP |
CIFUENTES LIZANDRO |
|||||
|
10/24/1995 |
|
Historical |
$0 |
BUI NHON VAN |
BELTRAN EUSEBIUS J ARCHBISHOP |
|||||
|
12/20/1994 |
|
Historical |
$21,000 |
LANDS UNLIMITED |
BUI NHON VAN |
|||||
|
5/28/1991 |
|
Historical |
$0 |
FLEET REAL ESTATE FUNDING CORP |
LANDS UNLIMITED |
|||||
| Last Mailed Notice of Value (N.O.V.) Information/History | ||||||||
|---|---|---|---|---|---|---|---|---|
| Year | Date | Market Value | Taxable Market Value | Gross Assessed | Exemption | Net Assessed | ||
|
2026 |
02/23/2026 |
174,000 |
130,259 |
14,328 |
0 |
14,328 |
||
|
2025 |
02/14/2025 |
175,500 |
124,057 |
13,645 |
0 |
13,645 |
||
|
2024 |
02/13/2024 |
169,500 |
118,150 |
12,995 |
0 |
12,995 |
||
|
2023 |
02/14/2023 |
163,000 |
112,524 |
12,377 |
0 |
12,377 |
||
|
2022 |
03/15/2022 |
127,500 |
107,166 |
11,787 |
0 |
11,787 |
||
| Property Building Permit History | |||||||||||
|---|---|---|---|---|---|---|---|---|---|---|---|
| Issued | Permit # | Provided by | Bldg # | Description | Est Construction Cost | Status | |||||
| No Building Permit records returned. | |||||||||||
| Click button on building number to access detailed information: | ||||||
|---|---|---|---|---|---|---|
| Bldg # | Vacant/Improved Land | Bldg Description | Year Built | SqFt | # Stories | |
|
1 |
Improved |
Ranch 1 Story |
1927 |
1,180 |
1 Stories |
|