|
|
|
| Larry Stein Oklahoma County Assessor (405) 713-1200 - Public Access System |
|
|
|
|
|
|
| Real Property Display - Screen Produced 3/16/2026 7:50:16 AM | ||||
|---|---|---|---|---|
| Account: R063746090 | Type: Residential | Location: |
1908 N VILLA AVE |
|
| Building Name/Occupant: |
|
OKLAHOMA CITY |
||
| Owner Name 1: | BARRIOS RODAS ALVARAO BLADEN ETAL |
Parcel PIN#: |
2717-06-374-6090 |
|
| Owner Name 2: | BORRAYES MALDONADO ELVIRA | 1/4 section #: |
2717 |
|
| Owner Name 3: | Parent Acct: |
|
||
| Billing Address: | 1908 N VILLA AVE | Tax District: |
|
|
| City, State, Zip | OKLAHOMA CITY, OK 73107-4051 | School System: |
Oklahoma City #89 |
|
|
Country: (If noted) |
Land Size: |
0.1148 Acres |
||
|
Land Value: 21,750 |
|
|||
|
Sect 30-T12N-R3W Qtr NE |
AURORA ADDITION
Block
015
Lot
006
|
|||
| Full Legal Description: AURORA ADDITION 015 006 N50FT OF W100FT |
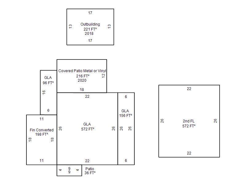
| Photo & Sketch (if available) | Comp Sales (ordered by relevancy) |
|
||||||||||||||||||
|
||||||||||||||||||||
| Value History (*The County Treasurer 405-713-1300 posts & collects actual tax amounts. Contact information HERE) | |||||||||||||
|---|---|---|---|---|---|---|---|---|---|---|---|---|---|
| Year | Market Value | Taxable Mkt Value | Gross Assessed | Exemption | Net Assessed | Millage | Est. Tax | Tax Savings | |||||
|
2025 |
209,000 |
111,023 |
12,212 |
0 |
12,212 |
122.90 |
$1,501 |
$1,325 |
|||||
|
2024 |
201,500 |
105,737 |
11,630 |
0 |
11,630 |
123.89 |
$1,441 |
$1,305 |
|||||
|
2023 |
189,000 |
100,702 |
11,076 |
0 |
11,076 |
122.82 |
$1,361 |
$1,193 |
|||||
|
2022 |
139,500 |
95,907 |
10,548 |
0 |
10,548 |
117.63 |
$1,241 |
$564 |
|||||
|
2021 |
126,500 |
91,340 |
10,046 |
0 |
10,046 |
117.70 |
$1,183 |
$455 |
|||||
| Property Account Status/Adjustments/Exemptions | ||
|---|---|---|
| Account # | Exemption Description | Amount |
|
R063746090 |
5% Capped Account |
0 |
| Property Deed Transaction History (Recorded in the County Clerk's Office) | |||||||
|---|---|---|---|---|---|---|---|
| Date | Type | Book | Page | Price | Grantor | Grantee | |
|
6/27/2016 |
|
Hmstd Off & |
$0 |
MALDONADO FRANCISCO J |
BARRIOS RODAS ALVARAO BLADEN ETAL |
||
|
10/15/1996 |
|
Historical |
$48,500 |
WATSON SYLVIA |
MALDONADO FRANCISCO J |
||
|
11/6/1995 |
|
Historical |
$41,500 |
FARR DWAYNE & MIRIAM |
WATSON SYLVIA |
||
|
11/11/1911 |
|
Historical |
$0 |
|
FARR DWAYNE & MIRIAM |
||
| Last Mailed Notice of Value (N.O.V.) Information/History | ||||||||
|---|---|---|---|---|---|---|---|---|
| Year | Date | Market Value | Taxable Market Value | Gross Assessed | Exemption | Net Assessed | ||
|
2026 |
02/23/2026 |
202,500 |
116,574 |
12,822 |
0 |
12,822 |
||
|
2025 |
02/14/2025 |
209,000 |
111,023 |
12,212 |
0 |
12,212 |
||
|
2024 |
02/13/2024 |
201,500 |
105,737 |
11,630 |
0 |
11,630 |
||
|
2023 |
02/14/2023 |
189,000 |
100,702 |
11,076 |
0 |
11,076 |
||
|
2022 |
03/15/2022 |
139,500 |
95,907 |
10,548 |
0 |
10,548 |
||
| Property Building Permit History | ||||||
|---|---|---|---|---|---|---|
| Issued | Permit # | Provided by | Bldg # | Description | Est Construction Cost | Status |
|
3/4/1998 |
10193951 |
OKLAHOMA CITY |
1 |
Add On |
3,500 |
Inactive |
| Click button on building number to access detailed information: | ||||||
|---|---|---|---|---|---|---|
| Bldg # | Vacant/Improved Land | Bldg Description | Year Built | SqFt | # Stories | |
|
1 |
Improved |
2 Story |
1939 |
1,396 |
2 Stories |
|