|
|
|
| Larry Stein Oklahoma County Assessor (405) 713-1200 - Public Access System |
|
|
|
|
|
|
| Real Property Display - Screen Produced 3/20/2026 6:13:20 AM | ||||
|---|---|---|---|---|
| Account: R063343200 | Type: Residential | Location: |
2415 NW 11TH ST |
|
| Building Name/Occupant: |
|
OKLAHOMA CITY |
||
| Owner Name 1: | RODAS JORGE & YAMILET |
Parcel PIN#: |
2718-06-334-3200 |
|
| Owner Name 2: | 1/4 section #: |
2718 |
||
| Owner Name 3: | Parent Acct: |
|
||
| Billing Address: | 6804 SHORELINE DR | Tax District: |
|
|
| City, State, Zip | OKLAHOMA CITY, OK 73132-6416 | School System: |
Oklahoma City #89 |
|
|
Country: (If noted) |
Land Size: |
0.1607 Acres |
||
|
Land Value: 31,500 |
|
|||
|
Sect 30-T12N-R3W Qtr SE |
YOUNGS ENGLEWOOD ADD
Block
015
Lot
000
|
|||
| Full Legal Description: YOUNGS ENGLEWOOD ADD 015 000 LOTS 7 & 8 |
| Photo & Sketch (if available) | Comp Sales (ordered by relevancy) |
|
||||||||||||||||||
|
||||||||||||||||||||
| Value History (*The County Treasurer 405-713-1300 posts & collects actual tax amounts. Contact information HERE) | |||||||||||||
|---|---|---|---|---|---|---|---|---|---|---|---|---|---|
| Year | Market Value | Taxable Mkt Value | Gross Assessed | Exemption | Net Assessed | Millage | Est. Tax | Tax Savings | |||||
|
2025 |
180,500 |
113,277 |
12,460 |
0 |
12,460 |
122.90 |
$1,531 |
$909 |
|||||
|
2024 |
174,500 |
107,883 |
11,867 |
0 |
11,867 |
123.89 |
$1,470 |
$908 |
|||||
|
2023 |
166,500 |
102,746 |
11,301 |
0 |
11,301 |
122.82 |
$1,388 |
$861 |
|||||
|
2022 |
130,500 |
97,854 |
10,763 |
0 |
10,763 |
117.63 |
$1,266 |
$422 |
|||||
|
2021 |
117,500 |
93,195 |
10,251 |
0 |
10,251 |
117.70 |
$1,207 |
$315 |
|||||
| Property Account Status/Adjustments/Exemptions | ||
|---|---|---|
| Account # | Exemption Description | Amount |
|
R063343200 |
5% Capped Account |
0 |
| Property Deed Transaction History (Recorded in the County Clerk's Office) | ||||||||||
|---|---|---|---|---|---|---|---|---|---|---|
| Date | Type | Book | Page | Price | Grantor | Grantee | ||||
|
9/29/2006 |
|
Deeds |
$30,000 |
GRAMAJO FAVIO |
RODAS JORGE & YAMILET |
|||||
|
7/10/1997 |
|
Historical |
$29,500 |
HERNANDEZ JOSHUA A |
GRAMAJO FAVIO |
|||||
|
10/11/1995 |
|
Historical |
$30,000 |
WALTHER KIMBERLY A |
HERNANDEZ JOSHUA A |
|||||
|
6/2/1992 |
|
Historical |
$0 |
WALTHER MARK & KIM |
WALTHER KIMBERLY A |
|||||
|
11/7/1991 |
|
Historical |
$4,000 |
CITY FEDERAL SAVINGS BANK IN |
WALTHER MARK & KIM |
|||||
| Last Mailed Notice of Value (N.O.V.) Information/History | ||||||||
|---|---|---|---|---|---|---|---|---|
| Year | Date | Market Value | Taxable Market Value | Gross Assessed | Exemption | Net Assessed | ||
|
2026 |
02/23/2026 |
180,500 |
118,940 |
13,083 |
0 |
13,083 |
||
|
2025 |
02/14/2025 |
180,500 |
113,277 |
12,460 |
0 |
12,460 |
||
|
2024 |
02/13/2024 |
174,500 |
107,883 |
11,867 |
0 |
11,867 |
||
|
2023 |
02/14/2023 |
166,500 |
102,746 |
11,301 |
0 |
11,301 |
||
|
2022 |
03/15/2022 |
130,500 |
97,854 |
10,763 |
0 |
10,763 |
||
| Property Building Permit History | |||||||||||
|---|---|---|---|---|---|---|---|---|---|---|---|
| Issued | Permit # | Provided by | Bldg # | Description | Est Construction Cost | Status | |||||
| No Building Permit records returned. | |||||||||||
| Click button on building number to access detailed information: | ||||||
|---|---|---|---|---|---|---|
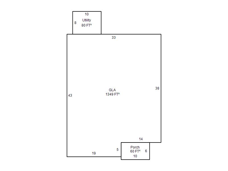
| Bldg # | Vacant/Improved Land | Bldg Description | Year Built | SqFt | # Stories | |
|
1 |
Improved |
Ranch 1 Story |
1926 |
1,349 |
1 Stories |
|