|
|
|
| Larry Stein Oklahoma County Assessor (405) 713-1200 - Public Access System |
|
|
|
|
|
|
| Real Property Display - Screen Produced 3/16/2026 2:15:35 PM | ||||
|---|---|---|---|---|
| Account: R063345000 | Type: Residential | Location: |
2244 NW 14TH ST |
|
| Building Name/Occupant: |
|
OKLAHOMA CITY |
||
| Owner Name 1: | SPEED ANASTACIA |
Parcel PIN#: |
2718-06-334-5000 |
|
| Owner Name 2: | 1/4 section #: |
2718 |
||
| Owner Name 3: | Parent Acct: |
|
||
| Billing Address: | 2244 NW 14TH ST | Tax District: |
|
|
| City, State, Zip | OKLAHOMA CITY, OK 73107-4912 | School System: |
Oklahoma City #89 |
|
|
Country: (If noted) |
Land Size: |
0.1607 Acres |
||
|
Land Value: 31,500 |
|
|||
|
Sect 30-T12N-R3W Qtr SE |
YOUNGS ENGLEWOOD ADD
Block
023
Lot
000
|
|||
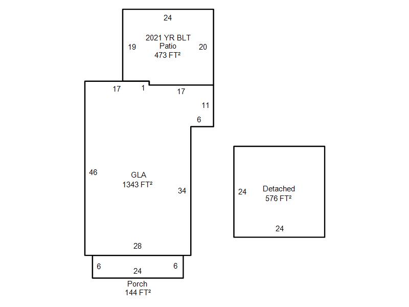
| Full Legal Description: YOUNGS ENGLEWOOD ADD 023 000 LOTS 25 & 26 |
| Photo & Sketch (if available) | Comp Sales (ordered by relevancy) |
|
||||||||||||||||||
|
||||||||||||||||||||
| Value History (*The County Treasurer 405-713-1300 posts & collects actual tax amounts. Contact information HERE) | |||||||||||||
|---|---|---|---|---|---|---|---|---|---|---|---|---|---|
| Year | Market Value | Taxable Mkt Value | Gross Assessed | Exemption | Net Assessed | Millage | Est. Tax | Tax Savings | |||||
|
2025 |
256,000 |
256,000 |
28,160 |
0 |
28,160 |
122.90 |
$3,461 |
$0 |
|||||
|
2024 |
246,000 |
220,500 |
24,255 |
0 |
24,255 |
123.89 |
$3,005 |
$348 |
|||||
|
2023 |
243,000 |
210,000 |
23,100 |
0 |
23,100 |
122.82 |
$2,837 |
$446 |
|||||
|
2022 |
200,000 |
200,000 |
22,000 |
0 |
22,000 |
117.63 |
$2,588 |
$0 |
|||||
|
2021 |
175,000 |
174,825 |
19,230 |
0 |
19,230 |
117.70 |
$2,263 |
$2 |
|||||
| Property Account Status/Adjustments/Exemptions | ||
|---|---|---|
| Account # | Exemption Description | Amount |
|
R063345000 |
5% Capped Account |
0 |
| Property Deed Transaction History (Recorded in the County Clerk's Office) | ||||||||||
|---|---|---|---|---|---|---|---|---|---|---|
| Date | Type | Book | Page | Price | Grantor | Grantee | ||||
|
12/5/2024 |
|
Deeds |
$200,000 |
THE DENISE SPEED TRUST |
SPEED ANASTACIA |
|||||
|
6/3/2021 |
|
Deeds |
$205,000 |
POLENZ MAXWELL |
SPEED DENISE TRUST |
|||||
|
2/8/2019 |
|
Deeds |
$163,000 |
DTD SERVICES LLC |
POLENZ MAXWELL |
|||||
|
6/23/2017 |
|
Deeds |
$81,000 |
ISON JANETTE M CO PERS REP EST OF BUSTER T COBB |
DTD SERVICES LLC |
|||||
|
6/23/2017 |
|
Hmstd Off & |
$0 |
COBB BUSTER T JR ISON JANETTE M CO PERS REP EST BUSTER TROY |
DTD SERVICES LLC |
|||||
| Last Mailed Notice of Value (N.O.V.) Information/History | ||||||||
|---|---|---|---|---|---|---|---|---|
| Year | Date | Market Value | Taxable Market Value | Gross Assessed | Exemption | Net Assessed | ||
|
2026 |
02/23/2026 |
260,000 |
260,000 |
28,600 |
0 |
28,600 |
||
|
2025 |
02/14/2025 |
256,000 |
256,000 |
28,160 |
0 |
28,160 |
||
|
2024 |
02/13/2024 |
246,000 |
220,500 |
24,255 |
0 |
24,255 |
||
|
2023 |
02/14/2023 |
243,000 |
210,000 |
23,100 |
0 |
23,100 |
||
|
2022 |
03/15/2022 |
200,000 |
200,000 |
22,000 |
0 |
22,000 |
||
| Property Building Permit History | ||||||
|---|---|---|---|---|---|---|
| Issued | Permit # | Provided by | Bldg # | Description | Est Construction Cost | Status |
|
7/10/2017 |
10496696 |
OKLAHOMA CITY |
1 |
Remodeled |
1,500 |
Inactive |
| Click button on building number to access detailed information: | ||||||
|---|---|---|---|---|---|---|
| Bldg # | Vacant/Improved Land | Bldg Description | Year Built | SqFt | # Stories | |
|
1 |
Improved |
Ranch 1 Story |
1925 |
1,343 |
1 Stories |
|