|
|
|
| Larry Stein Oklahoma County Assessor (405) 713-1200 - Public Access System |
|
|
|
|
|
|
| Real Property Display - Screen Produced 3/16/2026 2:19:48 PM | ||||
|---|---|---|---|---|
| Account: R063346645 | Type: Residential | Location: |
2131 NW 14TH ST |
|
| Building Name/Occupant: |
|
OKLAHOMA CITY |
||
| Owner Name 1: | OMEGA INVESTMENTS LLC |
Parcel PIN#: |
2718-06-334-6645 |
|
| Owner Name 2: | 1/4 section #: |
2718 |
||
| Owner Name 3: | Parent Acct: |
|
||
| Billing Address: | 20 NW 13TH ST, Unit 200 | Tax District: |
|
|
| City, State, Zip | OKLAHOMA CITY, OK 73103 | School System: |
Oklahoma City #89 |
|
|
Country: (If noted) |
Land Size: |
0.1607 Acres |
||
|
Land Value: 31,500 |
|
|||
|
Sect 30-T12N-R3W Qtr SE |
YOUNGS ENGLEWOOD ADD
Block
029
Lot
000
|
|||
| Full Legal Description: YOUNGS ENGLEWOOD ADD 029 000 LOTS 36 & 37 |
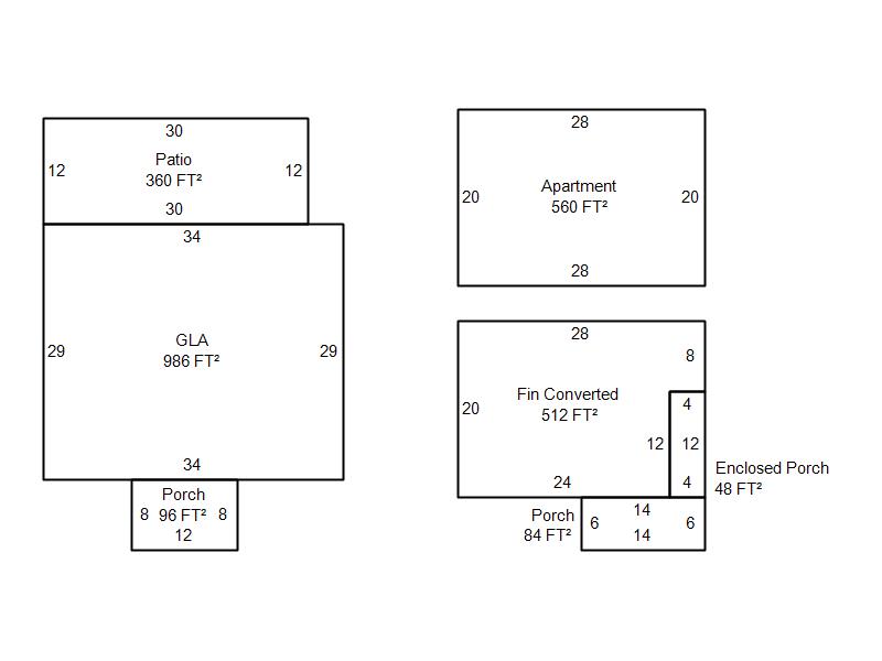
| Photo & Sketch (if available) | Comp Sales (ordered by relevancy) |
|
||||||||||||||||||
|
||||||||||||||||||||
| Value History (*The County Treasurer 405-713-1300 posts & collects actual tax amounts. Contact information HERE) | |||||||||||||
|---|---|---|---|---|---|---|---|---|---|---|---|---|---|
| Year | Market Value | Taxable Mkt Value | Gross Assessed | Exemption | Net Assessed | Millage | Est. Tax | Tax Savings | |||||
|
2025 |
182,000 |
123,737 |
13,610 |
0 |
13,610 |
122.90 |
$1,673 |
$788 |
|||||
|
2024 |
179,000 |
117,845 |
12,962 |
0 |
12,962 |
123.89 |
$1,606 |
$833 |
|||||
|
2023 |
167,000 |
112,234 |
12,344 |
0 |
12,344 |
122.82 |
$1,516 |
$740 |
|||||
|
2022 |
131,000 |
106,890 |
11,756 |
0 |
11,756 |
117.63 |
$1,383 |
$312 |
|||||
|
2021 |
121,000 |
101,800 |
11,197 |
0 |
11,197 |
117.70 |
$1,318 |
$249 |
|||||
| Property Account Status/Adjustments/Exemptions | ||
|---|---|---|
| Account # | Exemption Description | Amount |
|
R063346645 |
5% Capped Account |
0 |
| Property Deed Transaction History (Recorded in the County Clerk's Office) | ||||||||||
|---|---|---|---|---|---|---|---|---|---|---|
| Date | Type | Book | Page | Price | Grantor | Grantee | ||||
|
5/14/2014 |
|
Deeds |
$46,500 |
FEDERAL NATIONAL MORTGAGE ASSOCIATION |
OMEGA INVESTMENTS LLC |
|||||
|
7/5/2013 |
|
Hmstd Off & |
$0 |
VANN WALTER BECKHAM NANCY |
FEDERAL NATIONAL MORTGAGE ASSOCIATION |
|||||
|
6/8/2007 |
|
Deeds |
$40,000 |
OMEGA ENTERPRISES LLC |
VANN WALTER BECKHAM NANCY |
|||||
|
2/9/2007 |
|
Other |
$0 |
WEAVER SHAUN |
OMEGA ENTERPRISES LLC |
|||||
|
1/31/2007 |
|
Deeds |
$0 |
WEAVER SHAUN & LISA |
WEAVER SHAUN MICHAEL |
|||||
| Last Mailed Notice of Value (N.O.V.) Information/History | ||||||||
|---|---|---|---|---|---|---|---|---|
| Year | Date | Market Value | Taxable Market Value | Gross Assessed | Exemption | Net Assessed | ||
|
2026 |
02/23/2026 |
183,000 |
129,923 |
14,291 |
0 |
14,291 |
||
|
2025 |
02/14/2025 |
182,000 |
123,737 |
13,610 |
0 |
13,610 |
||
|
2024 |
02/13/2024 |
179,000 |
117,845 |
12,962 |
0 |
12,962 |
||
|
2023 |
02/14/2023 |
167,000 |
112,234 |
12,344 |
0 |
12,344 |
||
|
2022 |
03/15/2022 |
131,000 |
106,890 |
11,756 |
0 |
11,756 |
||
| Property Building Permit History | ||||||
|---|---|---|---|---|---|---|
| Issued | Permit # | Provided by | Bldg # | Description | Est Construction Cost | Status |
|
6/11/1993 |
10193826 |
OKLAHOMA CITY |
1 |
Add On |
300 |
Inactive |
| Click button on building number to access detailed information: | ||||||
|---|---|---|---|---|---|---|
| Bldg # | Vacant/Improved Land | Bldg Description | Year Built | SqFt | # Stories | |
|
1 |
Improved |
Ranch 1 Story |
1926 |
986 |
1 Stories |
|