|
|
|
| Larry Stein Oklahoma County Assessor (405) 713-1200 - Public Access System |
|
|
|
|
|
|
| Real Property Display - Screen Produced 3/16/2026 2:17:39 PM | ||||
|---|---|---|---|---|
| Account: R063347790 | Type: Residential | Location: |
2244 NW 16TH ST |
|
| Building Name/Occupant: |
|
OKLAHOMA CITY |
||
| Owner Name 1: | PIME LLC |
Parcel PIN#: |
2718-06-334-7790 |
|
| Owner Name 2: | 1/4 section #: |
2718 |
||
| Owner Name 3: | Parent Acct: |
|
||
| Billing Address: | 2712 NW 157TH ST | Tax District: |
|
|
| City, State, Zip | EDMOND, OK 73013 | School System: |
Oklahoma City #89 |
|
|
Country: (If noted) |
Land Size: |
0.2514 Acres |
||
|
Land Value: 49,275 |
|
|||
|
Sect 30-T12N-R3W Qtr SE |
YOUNGS ENGLEWOOD ADD
Block
033
Lot
000
|
|||
| Full Legal Description: YOUNGS ENGLEWOOD ADD BLK 033 LOT 000 LOTS 25 26 & 27 & N/2 OF VACATED ALLEY ADJ LTS ON S |
| No comparable sales report available. | ||||||||||||||||||||||
|
||||||||||||||||||||||
| Value History (*The County Treasurer 405-713-1300 posts & collects actual tax amounts. Contact information HERE) | |||||||||||||
|---|---|---|---|---|---|---|---|---|---|---|---|---|---|
| Year | Market Value | Taxable Mkt Value | Gross Assessed | Exemption | Net Assessed | Millage | Est. Tax | Tax Savings | |||||
|
2025 |
643,579 |
401,587 |
44,174 |
0 |
44,174 |
122.90 |
$5,429 |
$3,271 |
|||||
|
2024 |
606,772 |
382,464 |
42,070 |
0 |
42,070 |
123.89 |
$5,212 |
$3,057 |
|||||
|
2023 |
547,249 |
364,252 |
40,066 |
0 |
40,066 |
122.82 |
$4,921 |
$2,472 |
|||||
|
2022 |
543,590 |
346,907 |
38,159 |
0 |
38,159 |
117.63 |
$4,489 |
$2,545 |
|||||
|
2021 |
330,424 |
330,388 |
36,342 |
0 |
36,342 |
117.70 |
$4,278 |
$0 |
|||||
| Property Account Status/Adjustments/Exemptions | ||
|---|---|---|
| Account # | Exemption Description | Amount |
|
R063347790 |
5% Capped Account |
0 |
| Property Deed Transaction History (Recorded in the County Clerk's Office) | ||||||||||
|---|---|---|---|---|---|---|---|---|---|---|
| Date | Type | Book | Page | Price | Grantor | Grantee | ||||
|
2/1/2019 |
|
Deeds |
$280,000 |
CATHOLIC CHARITIES OF THE |
PIME LLC |
|||||
|
1/28/2019 |
|
Hmstd Off & |
$0 |
ELIZABETH HOUSE INC |
CATHOLIC CHARITIES OF THE |
|||||
|
1/28/2019 |
|
Deeds |
$0 |
ELIZABETH HOUSE INC |
CATHOLIC CHARITIES OF THE |
|||||
|
9/20/2018 |
|
Deeds |
$0 |
DECREE |
ELIZABETH HOUSE INC |
|||||
|
6/11/1992 |
|
Historical |
$0 |
HURD ROBERT L |
ELIZABETH HOUSE INC |
|||||
| Last Mailed Notice of Value (N.O.V.) Information/History | ||||||||
|---|---|---|---|---|---|---|---|---|
| Year | Date | Market Value | Taxable Market Value | Gross Assessed | Exemption | Net Assessed | ||
|
2026 |
02/23/2026 |
691,843 |
421,666 |
46,382 |
0 |
46,382 |
||
|
2025 |
02/14/2025 |
643,579 |
401,587 |
44,174 |
0 |
44,174 |
||
|
2024 |
02/13/2024 |
606,772 |
382,464 |
42,070 |
0 |
42,070 |
||
|
2023 |
02/14/2023 |
547,249 |
364,252 |
40,066 |
0 |
40,066 |
||
|
2022 |
03/15/2022 |
543,590 |
346,907 |
38,159 |
0 |
38,159 |
||
| Property Building Permit History | ||||||
|---|---|---|---|---|---|---|
| Issued | Permit # | Provided by | Bldg # | Description | Est Construction Cost | Status |
|
4/8/2005 |
10306359 |
OKLAHOMA CITY |
1 |
Fire Remodel |
35,000 |
Inactive |
|
6/10/1999 |
10193838 |
OKLAHOMA CITY |
1 |
Demolish |
0 |
Inactive |
| Click button on building number to access detailed information: | ||||||
|---|---|---|---|---|---|---|
| Bldg # | Vacant/Improved Land | Bldg Description | Year Built | SqFt | # Stories | |
|
1 |
Improved |
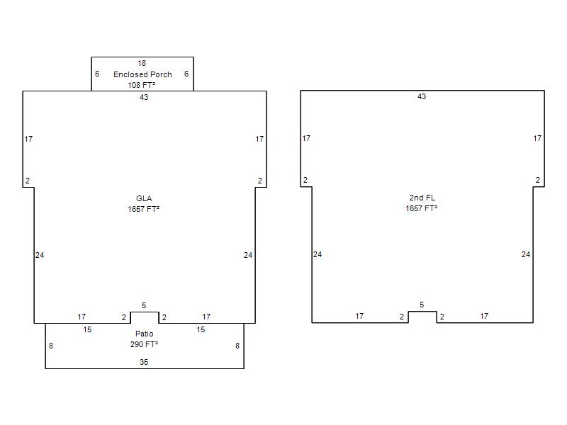
Apartment <= 3 Stories |
1923 |
3,314 |
2 Stories |
|
|
2 |
Improved |
Duplex Two Story |
1923 |
1,924 |
2 Stories |
|