|
|
|
| Larry Stein Oklahoma County Assessor (405) 713-1200 - Public Access System |
|
|
|
|
|
|
| Real Property Display - Screen Produced 3/20/2026 10:16:05 AM | ||||
|---|---|---|---|---|
| Account: R060030430 | Type: Residential | Location: |
2540 NW 15TH ST |
|
| Building Name/Occupant: |
|
OKLAHOMA CITY |
||
| Owner Name 1: | CARPENTER MICHAEL L |
Parcel PIN#: |
2719-06-003-0430 |
|
| Owner Name 2: | 1/4 section #: |
2719 |
||
| Owner Name 3: | Parent Acct: |
|
||
| Billing Address: | 2540 NW 15TH ST | Tax District: |
|
|
| City, State, Zip | OKLAHOMA CITY, OK 73107-4822 | School System: |
Oklahoma City #89 |
|
|
Country: (If noted) |
Land Size: |
0.1722 Acres |
||
|
Land Value: 32,625 |
|
|||
|
Sect 30-T12N-R3W Qtr SW |
MILLER BLVD RESUB N 1/2
Block
002
Lot
014
|
|||
| Full Legal Description: MILLER BLVD RESUB N 1/2 002 014 |
| Photo & Sketch (if available) | Comp Sales (ordered by relevancy) |
|
||||||||||||||||||
|
||||||||||||||||||||
| Value History (*The County Treasurer 405-713-1300 posts & collects actual tax amounts. Contact information HERE) | |||||||||||||
|---|---|---|---|---|---|---|---|---|---|---|---|---|---|
| Year | Market Value | Taxable Mkt Value | Gross Assessed | Exemption | Net Assessed | Millage | Est. Tax | Tax Savings | |||||
|
2025 |
163,000 |
96,669 |
10,632 |
1,000 |
9,632 |
122.90 |
$1,184 |
$1,020 |
|||||
|
2024 |
157,500 |
93,854 |
10,323 |
1,000 |
9,323 |
123.89 |
$1,155 |
$991 |
|||||
|
2023 |
153,500 |
91,121 |
10,022 |
1,000 |
9,022 |
122.82 |
$1,108 |
$966 |
|||||
|
2022 |
119,500 |
88,467 |
9,730 |
1,000 |
8,730 |
117.63 |
$1,027 |
$519 |
|||||
|
2021 |
108,500 |
85,891 |
9,447 |
1,000 |
8,447 |
117.70 |
$994 |
$410 |
|||||
| Property Account Status/Adjustments/Exemptions | ||
|---|---|---|
| Account # | Exemption Description | Amount |
|
R060030430 |
3% Cap Homestead |
0 |
|
R060030430 |
Homestead |
1,000 |
| Property Deed Transaction History (Recorded in the County Clerk's Office) | |||||||
|---|---|---|---|---|---|---|---|
| Date | Type | Book | Page | Price | Grantor | Grantee | |
|
6/4/1997 |
|
Historical |
$28,000 |
CARPENTER SUE A |
CARPENTER MICHAEL L |
||
|
11/1/1978 |
|
Historical |
$0 |
|
CARPENTER SUE A |
||
| Last Mailed Notice of Value (N.O.V.) Information/History | ||||||||
|---|---|---|---|---|---|---|---|---|
| Year | Date | Market Value | Taxable Market Value | Gross Assessed | Exemption | Net Assessed | ||
|
2026 |
02/23/2026 |
169,000 |
99,569 |
10,951 |
1,000 |
9,951 |
||
|
2025 |
02/14/2025 |
163,000 |
96,669 |
10,632 |
1,000 |
9,632 |
||
|
2024 |
02/13/2024 |
157,500 |
93,854 |
10,323 |
1,000 |
9,323 |
||
|
2023 |
02/14/2023 |
153,500 |
91,121 |
10,022 |
1,000 |
9,022 |
||
|
2022 |
03/15/2022 |
119,500 |
88,467 |
9,730 |
1,000 |
8,730 |
||
| Property Building Permit History | |||||||||||
|---|---|---|---|---|---|---|---|---|---|---|---|
| Issued | Permit # | Provided by | Bldg # | Description | Est Construction Cost | Status | |||||
| No Building Permit records returned. | |||||||||||
| Click button on building number to access detailed information: | ||||||
|---|---|---|---|---|---|---|
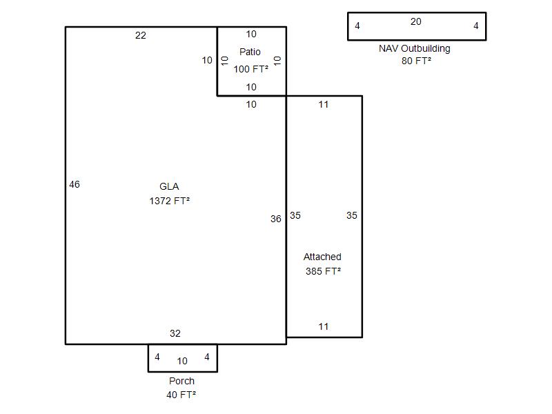
| Bldg # | Vacant/Improved Land | Bldg Description | Year Built | SqFt | # Stories | |
|
1 |
Improved |
Ranch 1 Story |
1927 |
1,372 |
1 Stories |
|