|
|
|
| Larry Stein Oklahoma County Assessor (405) 713-1200 - Public Access System |
|
|
|
|
|
|
| Real Property Display - Screen Produced 3/20/2026 10:16:05 AM | ||||
|---|---|---|---|---|
| Account: R060030490 | Type: Residential | Location: |
2516 NW 15TH ST |
|
| Building Name/Occupant: |
|
OKLAHOMA CITY |
||
| Owner Name 1: | HARRAH MISCHELL A |
Parcel PIN#: |
2719-06-003-0490 |
|
| Owner Name 2: | 1/4 section #: |
2719 |
||
| Owner Name 3: | Parent Acct: |
|
||
| Billing Address: | 4036 NW 61ST ST | Tax District: |
|
|
| City, State, Zip | OKLAHOMA CITY, OK 73112-1418 | School System: |
Oklahoma City #89 |
|
|
Country: (If noted) |
Land Size: |
0.1722 Acres |
||
|
Land Value: 32,625 |
|
|||
|
Sect 30-T12N-R3W Qtr SW |
MILLER BLVD RESUB N 1/2
Block
002
Lot
020
|
|||
| Full Legal Description: MILLER BLVD RESUB N 1/2 002 020 |
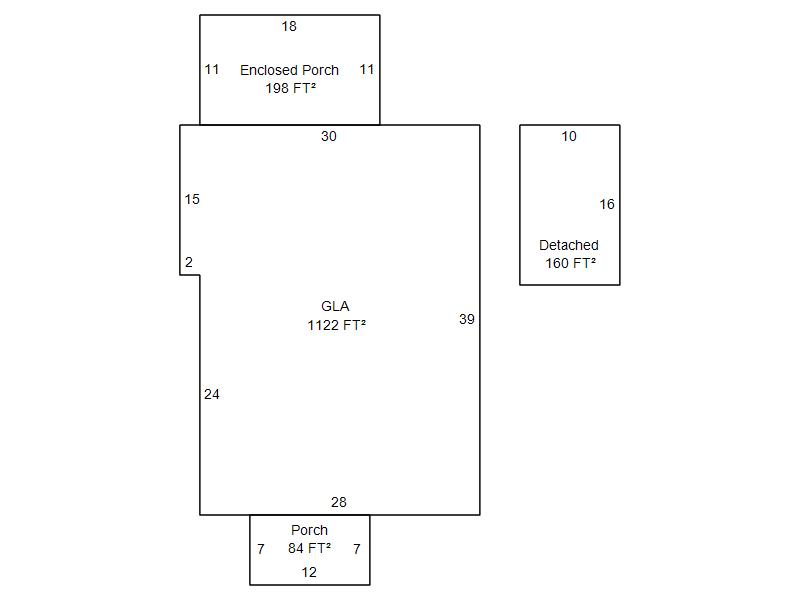
| Photo & Sketch (if available) | Comp Sales (ordered by relevancy) |
|
||||||||||||||||||
|
||||||||||||||||||||
| Value History (*The County Treasurer 405-713-1300 posts & collects actual tax amounts. Contact information HERE) | |||||||||||||
|---|---|---|---|---|---|---|---|---|---|---|---|---|---|
| Year | Market Value | Taxable Mkt Value | Gross Assessed | Exemption | Net Assessed | Millage | Est. Tax | Tax Savings | |||||
|
2025 |
146,500 |
106,185 |
11,680 |
0 |
11,680 |
122.90 |
$1,436 |
$545 |
|||||
|
2024 |
142,000 |
101,129 |
11,123 |
0 |
11,123 |
123.89 |
$1,378 |
$557 |
|||||
|
2023 |
138,000 |
96,314 |
10,594 |
0 |
10,594 |
122.82 |
$1,301 |
$563 |
|||||
|
2022 |
108,000 |
91,728 |
10,089 |
0 |
10,089 |
117.63 |
$1,187 |
$211 |
|||||
|
2021 |
98,000 |
87,360 |
9,609 |
0 |
9,609 |
117.70 |
$1,131 |
$138 |
|||||
| Property Account Status/Adjustments/Exemptions | ||
|---|---|---|
| Account # | Exemption Description | Amount |
|
R060030490 |
5% Capped Account |
0 |
| Property Deed Transaction History (Recorded in the County Clerk's Office) | |||||||
|---|---|---|---|---|---|---|---|
| Date | Type | Book | Page | Price | Grantor | Grantee | |
|
5/18/1995 |
|
Historical |
$28,500 |
BARKSDALE JAY B |
HARRAH MISCHELL A |
||
|
5/5/1992 |
|
Historical |
$0 |
BARKSDALE JAY B |
BARKSDALE JAY B |
||
|
5/9/1990 |
|
Historical |
$0 |
BARKSDALE JAY B |
BARKSDALE JAY B |
||
|
7/7/1988 |
|
Historical |
$34,350 |
HUMMINGBIRD RUDOLPH & DONNA R |
BARKSDALE JAY B |
||
|
9/1/1980 |
|
Historical |
$0 |
|
HUMMINGBIRD RUDOLPH & DONNA R |
||
| Last Mailed Notice of Value (N.O.V.) Information/History | ||||||||
|---|---|---|---|---|---|---|---|---|
| Year | Date | Market Value | Taxable Market Value | Gross Assessed | Exemption | Net Assessed | ||
|
2026 |
02/23/2026 |
151,000 |
111,494 |
12,264 |
0 |
12,264 |
||
|
2025 |
02/14/2025 |
146,500 |
106,185 |
11,680 |
0 |
11,680 |
||
|
2024 |
02/13/2024 |
142,000 |
101,129 |
11,123 |
0 |
11,123 |
||
|
2023 |
02/14/2023 |
138,000 |
96,314 |
10,594 |
0 |
10,594 |
||
|
2022 |
03/15/2022 |
108,000 |
91,728 |
10,089 |
0 |
10,089 |
||
| Property Building Permit History | |||||||||||
|---|---|---|---|---|---|---|---|---|---|---|---|
| Issued | Permit # | Provided by | Bldg # | Description | Est Construction Cost | Status | |||||
| No Building Permit records returned. | |||||||||||
| Click button on building number to access detailed information: | ||||||
|---|---|---|---|---|---|---|
| Bldg # | Vacant/Improved Land | Bldg Description | Year Built | SqFt | # Stories | |
|
1 |
Improved |
Ranch 1 Story |
1927 |
1,122 |
1 Stories |
|