|
|
|
| Larry Stein Oklahoma County Assessor (405) 713-1200 - Public Access System |
|
|
|
|
|
|
| Real Property Display - Screen Produced 3/20/2026 10:16:04 AM | ||||
|---|---|---|---|---|
| Account: R060030790 | Type: Residential | Location: |
2505 NW 13TH ST |
|
| Building Name/Occupant: |
|
OKLAHOMA CITY |
||
| Owner Name 1: | RAGSDALE ELIZABETH |
Parcel PIN#: |
2719-06-003-0790 |
|
| Owner Name 2: | RAGSDALE RANDY | 1/4 section #: |
2719 |
|
| Owner Name 3: | Parent Acct: |
|
||
| Billing Address: | 2505 NW 13TH ST | Tax District: |
|
|
| City, State, Zip | OKLAHOMA CITY, OK 73107 | School System: |
Oklahoma City #89 |
|
|
Country: (If noted) |
Land Size: |
0.1722 Acres |
||
|
Land Value: 32,625 |
|
|||
|
Sect 30-T12N-R3W Qtr SW |
MILLER BLVD RESUB N 1/2
Block
003
Lot
023
|
|||
| Full Legal Description: MILLER BLVD RESUB N 1/2 003 023 |
| Photo & Sketch (if available) | Comp Sales (ordered by relevancy) |
|
||||||||||||||||||
|
||||||||||||||||||||
| Value History (*The County Treasurer 405-713-1300 posts & collects actual tax amounts. Contact information HERE) | |||||||||||||
|---|---|---|---|---|---|---|---|---|---|---|---|---|---|
| Year | Market Value | Taxable Mkt Value | Gross Assessed | Exemption | Net Assessed | Millage | Est. Tax | Tax Savings | |||||
|
2025 |
242,500 |
232,204 |
25,541 |
1,000 |
24,541 |
122.90 |
$3,016 |
$262 |
|||||
|
2024 |
239,000 |
225,441 |
24,798 |
1,000 |
23,798 |
123.89 |
$2,948 |
$309 |
|||||
|
2023 |
231,000 |
218,875 |
24,076 |
1,000 |
23,076 |
122.82 |
$2,834 |
$287 |
|||||
|
2022 |
212,500 |
212,500 |
23,375 |
1,000 |
22,375 |
117.63 |
$2,632 |
$118 |
|||||
|
2021 |
214,500 |
172,746 |
19,001 |
1,000 |
18,001 |
117.70 |
$2,119 |
$658 |
|||||
| Property Account Status/Adjustments/Exemptions | ||
|---|---|---|
| Account # | Exemption Description | Amount |
|
R060030790 |
3% Cap Homestead |
0 |
|
R060030790 |
Homestead |
1,000 |
| Property Deed Transaction History (Recorded in the County Clerk's Office) | ||||||||||
|---|---|---|---|---|---|---|---|---|---|---|
| Date | Type | Book | Page | Price | Grantor | Grantee | ||||
|
9/24/2021 |
|
Deeds |
$215,000 |
DOWD KELLEY J |
RAGSDALE ELIZABETH |
|||||
|
5/30/2013 |
|
Deeds |
$136,000 |
R & J ASSOCIATES LLC |
DOWD KELLEY J |
|||||
|
9/18/2012 |
|
Deeds |
$45,500 |
METCALFE MICHELLE M |
R & J ASSOCIATES LLC |
|||||
|
8/27/1992 |
|
Historical |
$15,500 |
FIRST GIBRALTAR BANK FSB |
METCALFE MICHELLE M |
|||||
|
6/8/1992 |
|
Historical |
$0 |
SADDLER TERRY W & DOROTHY L |
FIRST GIBRALTAR BANK FSB |
|||||
| Last Mailed Notice of Value (N.O.V.) Information/History | ||||||||
|---|---|---|---|---|---|---|---|---|
| Year | Date | Market Value | Taxable Market Value | Gross Assessed | Exemption | Net Assessed | ||
|
2026 |
02/23/2026 |
235,500 |
235,500 |
25,905 |
1,000 |
24,905 |
||
|
2025 |
02/14/2025 |
242,500 |
232,204 |
25,541 |
1,000 |
24,541 |
||
|
2024 |
02/13/2024 |
239,000 |
225,441 |
24,798 |
1,000 |
23,798 |
||
|
2023 |
02/14/2023 |
231,000 |
218,875 |
24,076 |
1,000 |
23,076 |
||
|
2022 |
03/15/2022 |
212,500 |
212,500 |
23,375 |
1,000 |
22,375 |
||
| Property Building Permit History | |||||||||||
|---|---|---|---|---|---|---|---|---|---|---|---|
| Issued | Permit # | Provided by | Bldg # | Description | Est Construction Cost | Status | |||||
| No Building Permit records returned. | |||||||||||
| Click button on building number to access detailed information: | ||||||
|---|---|---|---|---|---|---|
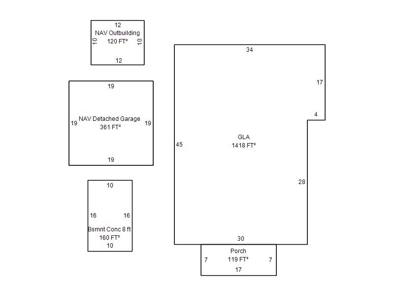
| Bldg # | Vacant/Improved Land | Bldg Description | Year Built | SqFt | # Stories | |
|
1 |
Improved |
Ranch 1 Story |
1926 |
1,418 |
1 Stories |
|