|
|
|
| Larry Stein Oklahoma County Assessor (405) 713-1200 - Public Access System |
|
|
|
|
|
|
| Real Property Display - Screen Produced 3/20/2026 10:17:23 AM | ||||
|---|---|---|---|---|
| Account: R060030860 | Type: Residential | Location: |
2512 NW 13TH ST |
|
| Building Name/Occupant: |
|
OKLAHOMA CITY |
||
| Owner Name 1: | HARRIS LORI A |
Parcel PIN#: |
2719-06-003-0860 |
|
| Owner Name 2: | 1/4 section #: |
2719 |
||
| Owner Name 3: | Parent Acct: |
|
||
| Billing Address: | 2512 NW 13TH ST | Tax District: |
|
|
| City, State, Zip | OKLAHOMA CITY, OK 73107 | School System: |
Oklahoma City #89 |
|
|
Country: (If noted) |
Land Size: |
0.1722 Acres |
||
|
Land Value: 32,625 |
|
|||
|
Sect 30-T12N-R3W Qtr SW |
MILLER BLVD RESUB N 1/2
Block
004
Lot
004
|
|||
| Full Legal Description: MILLER BLVD RESUB N 1/2 004 004 |
| Photo & Sketch (if available) | Comp Sales (ordered by relevancy) |
|
||||||||||||||||||
|
||||||||||||||||||||
| Value History (*The County Treasurer 405-713-1300 posts & collects actual tax amounts. Contact information HERE) | |||||||||||||
|---|---|---|---|---|---|---|---|---|---|---|---|---|---|
| Year | Market Value | Taxable Mkt Value | Gross Assessed | Exemption | Net Assessed | Millage | Est. Tax | Tax Savings | |||||
|
2025 |
305,500 |
281,688 |
30,985 |
0 |
30,985 |
122.90 |
$3,808 |
$322 |
|||||
|
2024 |
300,000 |
268,275 |
29,510 |
0 |
29,510 |
123.89 |
$3,656 |
$432 |
|||||
|
2023 |
255,500 |
255,500 |
28,105 |
0 |
28,105 |
122.82 |
$3,452 |
$0 |
|||||
|
2022 |
245,500 |
220,500 |
24,255 |
0 |
24,255 |
117.63 |
$2,853 |
$323 |
|||||
|
2021 |
223,500 |
210,000 |
23,100 |
0 |
23,100 |
117.70 |
$2,719 |
$175 |
|||||
| Property Account Status/Adjustments/Exemptions | ||
|---|---|---|
| Account # | Exemption Description | Amount |
|
R060030860 |
5% Capped Account |
0 |
| Property Deed Transaction History (Recorded in the County Clerk's Office) | ||||||||||
|---|---|---|---|---|---|---|---|---|---|---|
| Date | Type | Book | Page | Price | Grantor | Grantee | ||||
|
2/10/2022 |
|
Deeds |
$254,500 |
HIGHTOWER BROCK |
HARRIS LORI A |
|||||
|
3/30/2018 |
|
Deeds |
$211,500 |
OASIS REAL ESTATE LLC |
HIGHTOWER BROCK |
|||||
|
1/8/2018 |
|
Deeds |
$85,000 |
WEINRICH ENTERPRISES LLC |
OASIS REAL ESTATE LLC |
|||||
|
11/17/2017 |
|
Deeds |
$60,000 |
GIBSON FREDDIE J |
WEINRICH ENTERPRISES LLC |
|||||
|
9/30/2008 |
|
Deeds |
$0 |
GIBSON FREDDIE J & ARTHUR J HARRELL MARTHA M |
GIBSON FREDDIE J |
|||||
| Last Mailed Notice of Value (N.O.V.) Information/History | ||||||||
|---|---|---|---|---|---|---|---|---|
| Year | Date | Market Value | Taxable Market Value | Gross Assessed | Exemption | Net Assessed | ||
|
2026 |
02/23/2026 |
296,500 |
295,772 |
32,534 |
0 |
32,534 |
||
|
2025 |
02/14/2025 |
305,500 |
281,688 |
30,985 |
0 |
30,985 |
||
|
2024 |
02/13/2024 |
300,000 |
268,275 |
29,510 |
0 |
29,510 |
||
|
2023 |
02/14/2023 |
255,500 |
255,500 |
28,105 |
0 |
28,105 |
||
|
2022 |
03/15/2022 |
245,500 |
220,500 |
24,255 |
0 |
24,255 |
||
| Property Building Permit History | |||||||||||
|---|---|---|---|---|---|---|---|---|---|---|---|
| Issued | Permit # | Provided by | Bldg # | Description | Est Construction Cost | Status | |||||
| No Building Permit records returned. | |||||||||||
| Click button on building number to access detailed information: | ||||||
|---|---|---|---|---|---|---|
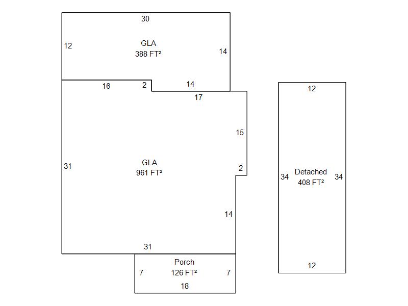
| Bldg # | Vacant/Improved Land | Bldg Description | Year Built | SqFt | # Stories | |
|
1 |
Improved |
1½ Story Unfin |
1926 |
1,349 |
1.5 Stories |
|