|
|
|
| Larry Stein Oklahoma County Assessor (405) 713-1200 - Public Access System |
|
|
|
|
|
|
| Real Property Display - Screen Produced 3/16/2026 7:29:46 PM | ||||
|---|---|---|---|---|
| Account: R060051500 | Type: Residential | Location: |
2600 W PARK PL |
|
| Building Name/Occupant: |
|
OKLAHOMA CITY |
||
| Owner Name 1: | THUNE BOYLE INGELA |
Parcel PIN#: |
2719-06-005-1500 |
|
| Owner Name 2: | 1/4 section #: |
2719 |
||
| Owner Name 3: | Parent Acct: |
|
||
| Billing Address: | 2600 W PARK PL | Tax District: |
|
|
| City, State, Zip | OKLAHOMA CITY, OK 73107 | School System: |
Oklahoma City #89 |
|
|
Country: (If noted) |
Land Size: |
0.1722 Acres |
||
|
Land Value: 32,625 |
|
|||
|
Sect 30-T12N-R3W Qtr SW |
MILLER BLVD RESUBDIVISION
Block
008
Lot
001
|
|||
| Full Legal Description: MILLER BLVD RESUBDIVISION 008 001 |
| Photo & Sketch (if available) | Comp Sales (ordered by relevancy) |
|
||||||||||||||||||
|
||||||||||||||||||||
| Value History (*The County Treasurer 405-713-1300 posts & collects actual tax amounts. Contact information HERE) | |||||||||||||
|---|---|---|---|---|---|---|---|---|---|---|---|---|---|
| Year | Market Value | Taxable Mkt Value | Gross Assessed | Exemption | Net Assessed | Millage | Est. Tax | Tax Savings | |||||
|
2025 |
200,000 |
157,593 |
17,334 |
0 |
17,334 |
122.90 |
$2,130 |
$573 |
|||||
|
2024 |
194,000 |
150,089 |
16,509 |
0 |
16,509 |
123.89 |
$2,045 |
$598 |
|||||
|
2023 |
188,000 |
142,942 |
15,722 |
0 |
15,722 |
122.82 |
$1,931 |
$609 |
|||||
|
2022 |
151,500 |
136,136 |
14,974 |
0 |
14,974 |
117.63 |
$1,762 |
$199 |
|||||
|
2021 |
141,000 |
129,654 |
14,261 |
0 |
14,261 |
117.70 |
$1,679 |
$147 |
|||||
| Property Account Status/Adjustments/Exemptions | ||
|---|---|---|
| Account # | Exemption Description | Amount |
|
R060051500 |
5% Capped Account |
0 |
| Property Deed Transaction History (Recorded in the County Clerk's Office) | ||||||||||
|---|---|---|---|---|---|---|---|---|---|---|
| Date | Type | Book | Page | Price | Grantor | Grantee | ||||
|
11/1/2016 |
|
Hmstd Off & |
$0 |
BROWN DOUGLAS A BROWN DOUGLAS K |
THUNE BOYLE INGELA |
|||||
|
9/6/2016 |
|
Hmstd Off & |
$0 |
BROWN DOUGLAS K |
THUNE BOYLE INGELA |
|||||
|
11/4/2013 |
|
Deeds |
$0 |
FLETCHER BROWN ELIZABETH |
BROWN DOUGLAS A |
|||||
|
1/19/2011 |
|
Deeds |
$106,000 |
FREELING JASON VRIEZ MELISSA |
BROWN DOUGLAS A BROWN DOUGLAS K |
|||||
|
5/23/2003 |
|
Deeds |
$70,000 |
SHEESLEY SHANNON |
FREELING JASON VRIEZ MELISSA |
|||||
| Last Mailed Notice of Value (N.O.V.) Information/History | ||||||||
|---|---|---|---|---|---|---|---|---|
| Year | Date | Market Value | Taxable Market Value | Gross Assessed | Exemption | Net Assessed | ||
|
2026 |
02/23/2026 |
196,000 |
165,472 |
18,201 |
0 |
18,201 |
||
|
2025 |
02/14/2025 |
200,000 |
157,593 |
17,334 |
0 |
17,334 |
||
|
2024 |
02/13/2024 |
194,000 |
150,089 |
16,509 |
0 |
16,509 |
||
|
2023 |
02/14/2023 |
188,000 |
142,942 |
15,722 |
0 |
15,722 |
||
|
2022 |
03/15/2022 |
151,500 |
136,136 |
14,974 |
0 |
14,974 |
||
| Property Building Permit History | |||||||||||
|---|---|---|---|---|---|---|---|---|---|---|---|
| Issued | Permit # | Provided by | Bldg # | Description | Est Construction Cost | Status | |||||
| No Building Permit records returned. | |||||||||||
| Click button on building number to access detailed information: | ||||||
|---|---|---|---|---|---|---|
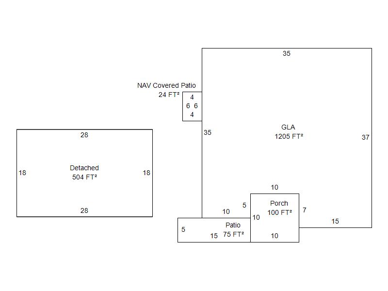
| Bldg # | Vacant/Improved Land | Bldg Description | Year Built | SqFt | # Stories | |
|
1 |
Improved |
Ranch 1 Story |
1936 |
1,205 |
1 Stories |
|