|
|
|
| Larry Stein Oklahoma County Assessor (405) 713-1200 - Public Access System |
|
|
|
|
|
|
| Real Property Display - Screen Produced 4/2/2026 1:03:36 PM | ||||
|---|---|---|---|---|
| Account: R064142040 | Type: Residential | Location: |
2612 NW 12TH ST |
|
| Building Name/Occupant: |
|
OKLAHOMA CITY |
||
| Owner Name 1: | GUINIVERE DAVID TRS |
Parcel PIN#: |
2719-06-414-2040 |
|
| Owner Name 2: | GUINIVERE LIV TRUST | 1/4 section #: |
2719 |
|
| Owner Name 3: | SZUCS ELIZABETH | Parent Acct: |
|
|
| Billing Address: | 971 CAPSTAN DR | Tax District: |
|
|
| City, State, Zip | FORKED RIVER , NJ 08731 | School System: |
Oklahoma City #89 |
|
|
Country: (If noted) |
UNITED STATES |
Land Size: |
0.1722 Acres |
|
|
Land Value: 32,625 |
|
|||
|
Sect 30-T12N-R3W Qtr SW |
MILLERS BOULEVARD
Block
010
Lot
003
|
|||
| Full Legal Description: MILLERS BOULEVARD 010 003 E50FT OF W63FT |
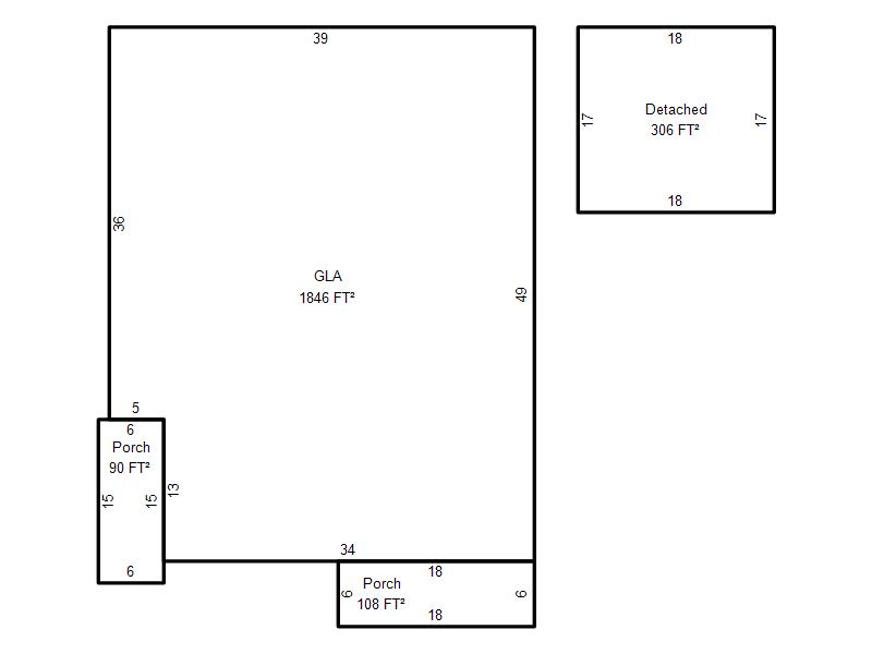
| Photo & Sketch (if available) | Comp Sales (ordered by relevancy) |
|
||||||||||||||||||
|
||||||||||||||||||||
| Value History (*The County Treasurer 405-713-1300 posts & collects actual tax amounts. Contact information HERE) | |||||||||||||
|---|---|---|---|---|---|---|---|---|---|---|---|---|---|
| Year | Market Value | Taxable Mkt Value | Gross Assessed | Exemption | Net Assessed | Millage | Est. Tax | Tax Savings | |||||
|
2026 |
259,000 |
137,332 |
15,106 |
0 |
15,106 |
122.90 |
$1,857 |
$1,645 |
|||||
|
2025 |
265,500 |
130,793 |
14,387 |
0 |
14,387 |
122.90 |
$1,768 |
$1,821 |
|||||
|
2024 |
260,500 |
124,565 |
13,701 |
0 |
13,701 |
123.89 |
$1,698 |
$1,853 |
|||||
|
2023 |
243,000 |
118,634 |
13,049 |
0 |
13,049 |
122.82 |
$1,603 |
$1,680 |
|||||
|
2022 |
194,500 |
112,985 |
12,426 |
0 |
12,426 |
117.63 |
$1,462 |
$1,055 |
|||||
| Property Account Status/Adjustments/Exemptions | ||
|---|---|---|
| Account # | Exemption Description | Amount |
|
R064142040 |
5% Capped Account |
0 |
| Property Deed Transaction History (Recorded in the County Clerk's Office) | ||||||||||
|---|---|---|---|---|---|---|---|---|---|---|
| Date | Type | Book | Page | Price | Grantor | Grantee | ||||
|
4/16/2009 |
|
Deeds |
$0 |
GUINIVERE DAVID SZUCS ELIZABETH |
GUINIVERE DAVID TRS |
|||||
|
2/9/2005 |
|
Deeds |
$72,000 |
RYAN STEVEN C |
GUINIVERE DAVID SZUCS ELIZABETH |
|||||
|
11/1/2002 |
|
Deeds |
$65,500 |
EUBANK ROBERT G |
RYAN STEVEN C |
|||||
|
10/29/1999 |
|
Deeds |
$48,500 |
RAK PROPERTIES INC |
EUBANK ROBERT G |
|||||
|
3/25/1996 |
|
Historical |
$23,000 |
SITTON J D & ELLEN |
RAK PROPERTIES INC |
|||||
| Last Mailed Notice of Value (N.O.V.) Information/History | ||||||||
|---|---|---|---|---|---|---|---|---|
| Year | Date | Market Value | Taxable Market Value | Gross Assessed | Exemption | Net Assessed | ||
|
2026 |
02/23/2026 |
259,000 |
137,332 |
15,106 |
0 |
15,106 |
||
|
2025 |
02/14/2025 |
265,500 |
130,793 |
14,387 |
0 |
14,387 |
||
|
2024 |
02/13/2024 |
260,500 |
124,565 |
13,701 |
0 |
13,701 |
||
|
2023 |
02/14/2023 |
243,000 |
118,634 |
13,049 |
0 |
13,049 |
||
|
2022 |
03/15/2022 |
194,500 |
112,985 |
12,426 |
0 |
12,426 |
||
| Property Building Permit History | ||||||
|---|---|---|---|---|---|---|
| Issued | Permit # | Provided by | Bldg # | Description | Est Construction Cost | Status |
|
7/31/2002 |
10194077 |
OKLAHOMA CITY |
1 |
Fire Remodel |
9,000 |
Inactive |
|
6/14/2002 |
10194078 |
OKLAHOMA CITY |
1 |
Burn - Trip |
5,000 |
Inactive |
|
4/20/1998 |
10194079 |
OKLAHOMA CITY |
1 |
Burn - Trip |
2,000 |
Inactive |
| Click button on building number to access detailed information: | ||||||
|---|---|---|---|---|---|---|
| Bldg # | Vacant/Improved Land | Bldg Description | Year Built | SqFt | # Stories | |
|
1 |
Improved |
Duplex One Story |
1925 |
1,846 |
1 Stories |
|