|
|
|
| Larry Stein Oklahoma County Assessor (405) 713-1200 - Public Access System |
|
|
|
|
|
|
| Real Property Display - Screen Produced 3/22/2026 6:31:37 AM | ||||
|---|---|---|---|---|
| Account: R063580530 | Type: Residential | Location: |
2721 NW 22ND ST |
|
| Building Name/Occupant: |
|
OKLAHOMA CITY |
||
| Owner Name 1: | ROMERO PEDRO A TRISTAN |
Parcel PIN#: |
2720-06-358-0530 |
|
| Owner Name 2: | TRISTAN JOHANNA ANYOLET | 1/4 section #: |
2720 |
|
| Owner Name 3: | Parent Acct: |
|
||
| Billing Address: | 1471 PINERIDGE CIR | Tax District: |
|
|
| City, State, Zip | PIEDMONT, OK 73078-0048 | School System: |
Oklahoma City #89 |
|
|
Country: (If noted) |
Land Size: |
0.1722 Acres |
||
|
Land Value: 35,250 |
|
|||
|
Sect 30-T12N-R3W Qtr NW |
CRESTWOOD ADDITION
Block
001
Lot
000
|
|||
| Full Legal Description: CRESTWOOD ADDITION 001 000 LOTS 47 & 48 |
| Photo & Sketch (if available) | Comp Sales (ordered by relevancy) |
|
||||||||||||||||||
|
||||||||||||||||||||
| Value History (*The County Treasurer 405-713-1300 posts & collects actual tax amounts. Contact information HERE) | |||||||||||||
|---|---|---|---|---|---|---|---|---|---|---|---|---|---|
| Year | Market Value | Taxable Mkt Value | Gross Assessed | Exemption | Net Assessed | Millage | Est. Tax | Tax Savings | |||||
|
2025 |
135,500 |
87,403 |
9,614 |
1,000 |
8,614 |
122.90 |
$1,059 |
$773 |
|||||
|
2024 |
131,000 |
84,858 |
9,333 |
1,000 |
8,333 |
123.89 |
$1,033 |
$753 |
|||||
|
2023 |
129,500 |
82,387 |
9,061 |
2,000 |
7,061 |
122.82 |
$867 |
$882 |
|||||
|
2022 |
100,500 |
79,988 |
8,797 |
2,000 |
6,797 |
117.63 |
$800 |
$501 |
|||||
|
2021 |
92,500 |
77,659 |
8,541 |
2,000 |
6,541 |
117.70 |
$770 |
$428 |
|||||
| Property Account Status/Adjustments/Exemptions | ||||||
|---|---|---|---|---|---|---|
| Account # | Exemption Description | Amount | ||||
| No adjustment/exemption records returned. | ||||||
| Property Deed Transaction History (Recorded in the County Clerk's Office) | ||||||||||
|---|---|---|---|---|---|---|---|---|---|---|
| Date | Type | Book | Page | Price | Grantor | Grantee | ||||
|
12/17/2025 |
|
Deeds |
$70,000 |
MILLER CRAIG |
ROMERO PEDRO A TRISTAN |
|||||
|
11/22/2002 |
|
Deeds |
$0 |
WEBER FRANCIS L MILLER CRAIG R |
MILLER CRAIG |
|||||
|
12/29/1999 |
|
Deeds |
$20,000 |
PEARSON DELLA W WEBER FRANCIS L |
WEBER FRANCIS L MILLER CRAIG R |
|||||
|
5/6/1993 |
|
Historical |
$12,000 |
FLOWERS LINDA KAY |
PEARSON DELLA W |
|||||
|
12/5/1991 |
|
Historical |
$0 |
POLLEY DOYLE W & LINDA K |
FLOWERS LINDA KAY |
|||||
| Last Mailed Notice of Value (N.O.V.) Information/History | ||||||||
|---|---|---|---|---|---|---|---|---|
| Year | Date | Market Value | Taxable Market Value | Gross Assessed | Exemption | Net Assessed | ||
|
2026 |
02/23/2026 |
138,000 |
138,000 |
15,180 |
0 |
15,180 |
||
|
2025 |
02/14/2025 |
135,500 |
87,403 |
9,614 |
1,000 |
8,614 |
||
|
2024 |
02/13/2024 |
131,000 |
84,858 |
9,333 |
1,000 |
8,333 |
||
|
2023 |
02/14/2023 |
129,500 |
82,387 |
9,061 |
2,000 |
7,061 |
||
|
2022 |
03/15/2022 |
100,500 |
79,988 |
8,797 |
1,000 |
7,797 |
||
| Property Building Permit History | |||||||||||
|---|---|---|---|---|---|---|---|---|---|---|---|
| Issued | Permit # | Provided by | Bldg # | Description | Est Construction Cost | Status | |||||
| No Building Permit records returned. | |||||||||||
| Click button on building number to access detailed information: | ||||||
|---|---|---|---|---|---|---|
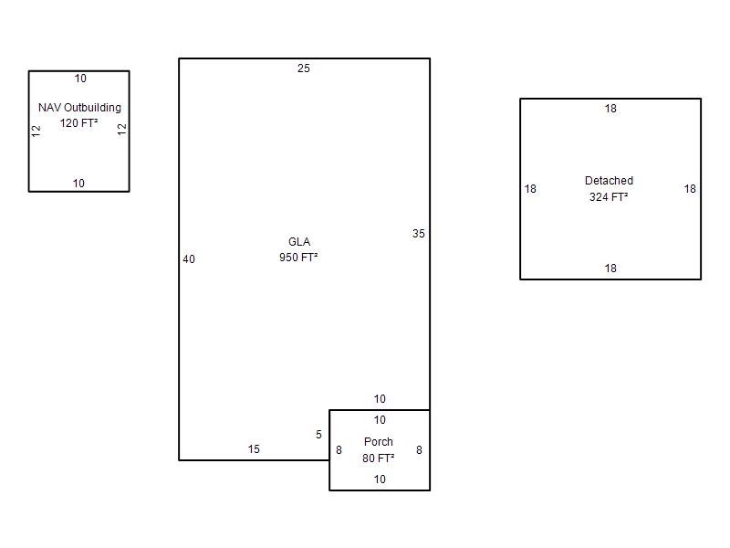
| Bldg # | Vacant/Improved Land | Bldg Description | Year Built | SqFt | # Stories | |
|
1 |
Improved |
Ranch 1 Story |
1928 |
950 |
1 Stories |
|