|
|
|
| Larry Stein Oklahoma County Assessor (405) 713-1200 - Public Access System |
|
|
|
|
|
|
| Real Property Display - Screen Produced 3/22/2026 6:31:36 AM | ||||
|---|---|---|---|---|
| Account: R063580640 | Type: Residential | Location: |
2765 NW 22ND ST |
|
| Building Name/Occupant: |
|
OKLAHOMA CITY |
||
| Owner Name 1: | LUNA-MOCTEZUMA J SERAFIN |
Parcel PIN#: |
2720-06-358-0640 |
|
| Owner Name 2: | LUNA RAMEY A | 1/4 section #: |
2720 |
|
| Owner Name 3: | Parent Acct: |
|
||
| Billing Address: | 2765 NW 22ND ST | Tax District: |
|
|
| City, State, Zip | OKLAHOMA CITY, OK 73107-3241 | School System: |
Oklahoma City #89 |
|
|
Country: (If noted) |
Land Size: |
0.1722 Acres |
||
|
Land Value: 35,250 |
|
|||
|
Sect 30-T12N-R3W Qtr NW |
CRESTWOOD ADDITION
Block
001
Lot
000
|
|||
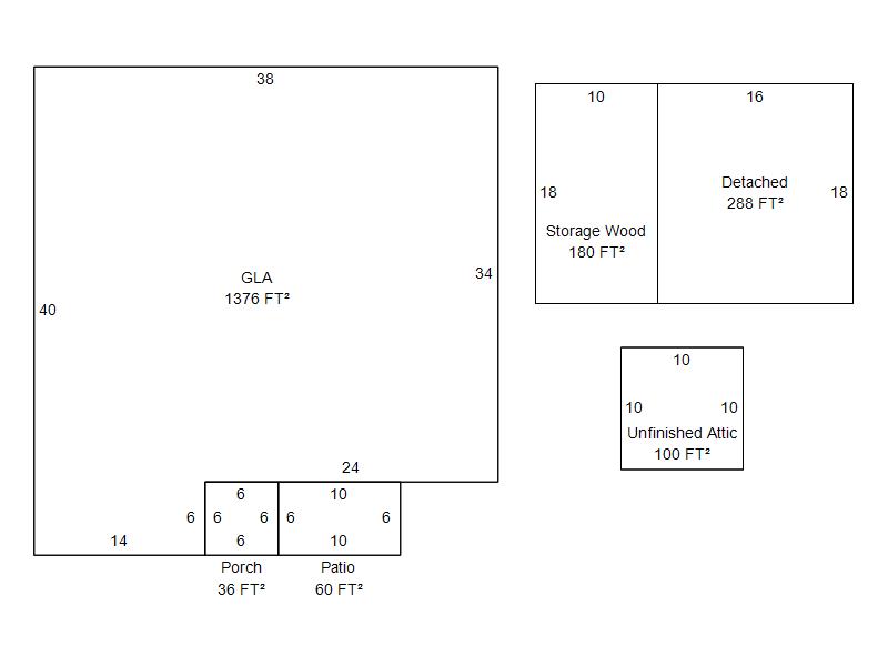
| Full Legal Description: CRESTWOOD ADDITION 001 000 LOTS 69 & 70 |
| Photo & Sketch (if available) | Comp Sales (ordered by relevancy) |
|
||||||||||||||||||
|
||||||||||||||||||||
| Value History (*The County Treasurer 405-713-1300 posts & collects actual tax amounts. Contact information HERE) | |||||||||||||
|---|---|---|---|---|---|---|---|---|---|---|---|---|---|
| Year | Market Value | Taxable Mkt Value | Gross Assessed | Exemption | Net Assessed | Millage | Est. Tax | Tax Savings | |||||
|
2025 |
169,000 |
128,044 |
14,084 |
0 |
14,084 |
122.90 |
$1,731 |
$554 |
|||||
|
2024 |
163,500 |
121,947 |
13,413 |
0 |
13,413 |
123.89 |
$1,662 |
$566 |
|||||
|
2023 |
162,500 |
116,140 |
12,775 |
0 |
12,775 |
122.82 |
$1,569 |
$626 |
|||||
|
2022 |
129,000 |
110,610 |
12,165 |
0 |
12,165 |
117.63 |
$1,431 |
$238 |
|||||
|
2021 |
115,500 |
105,343 |
11,586 |
0 |
11,586 |
117.70 |
$1,364 |
$132 |
|||||
| Property Account Status/Adjustments/Exemptions | ||
|---|---|---|
| Account # | Exemption Description | Amount |
|
R063580640 |
5% Capped Account |
0 |
| Property Deed Transaction History (Recorded in the County Clerk's Office) | |||||||
|---|---|---|---|---|---|---|---|
| Date | Type | Book | Page | Price | Grantor | Grantee | |
|
6/23/1995 |
|
Historical |
$45,000 |
WEBB RANDY L & PATSY L |
LUNA-MOCTEZUMA J SERAFIN |
||
|
11/1/1984 |
|
Historical |
$0 |
|
WEBB RANDY L & PATSY L |
||
| Last Mailed Notice of Value (N.O.V.) Information/History | ||||||||
|---|---|---|---|---|---|---|---|---|
| Year | Date | Market Value | Taxable Market Value | Gross Assessed | Exemption | Net Assessed | ||
|
2026 |
02/23/2026 |
173,000 |
134,446 |
14,788 |
0 |
14,788 |
||
|
2025 |
02/14/2025 |
169,000 |
128,044 |
14,084 |
0 |
14,084 |
||
|
2024 |
02/13/2024 |
163,500 |
121,947 |
13,413 |
0 |
13,413 |
||
|
2023 |
02/14/2023 |
162,500 |
116,140 |
12,775 |
0 |
12,775 |
||
|
2022 |
03/15/2022 |
129,000 |
110,610 |
12,165 |
0 |
12,165 |
||
| Property Building Permit History | |||||||||||
|---|---|---|---|---|---|---|---|---|---|---|---|
| Issued | Permit # | Provided by | Bldg # | Description | Est Construction Cost | Status | |||||
| No Building Permit records returned. | |||||||||||
| Click button on building number to access detailed information: | ||||||
|---|---|---|---|---|---|---|
| Bldg # | Vacant/Improved Land | Bldg Description | Year Built | SqFt | # Stories | |
|
1 |
Improved |
1½ Story Unfin |
1929 |
1,376 |
1.5 Stories |
|