|
|
|
| Larry Stein Oklahoma County Assessor (405) 713-1200 - Public Access System |
|
|
|
|
|
|
| Real Property Display - Screen Produced 3/22/2026 6:32:54 AM | ||||
|---|---|---|---|---|
| Account: R063580890 | Type: Residential | Location: |
2501 NW 22ND ST |
|
| Building Name/Occupant: |
|
OKLAHOMA CITY |
||
| Owner Name 1: | DAVIS KAREN D |
Parcel PIN#: |
2720-06-358-0890 |
|
| Owner Name 2: | 1/4 section #: |
2720 |
||
| Owner Name 3: | Parent Acct: |
|
||
| Billing Address: | 2501 NW 22ND ST | Tax District: |
|
|
| City, State, Zip | OKLAHOMA CITY, OK 73107-3205 | School System: |
Oklahoma City #89 |
|
|
Country: (If noted) |
Land Size: |
0.1446 Acres |
||
|
Land Value: 29,610 |
|
|||
|
Sect 30-T12N-R3W Qtr NW |
CRESTWOOD ADDITION
Block
002
Lot
032
|
|||
| Full Legal Description: CRESTWOOD ADDITION 002 032 |
| Photo & Sketch (if available) | Comp Sales (ordered by relevancy) |
|
||||||||||||||||||
|
||||||||||||||||||||
| Value History (*The County Treasurer 405-713-1300 posts & collects actual tax amounts. Contact information HERE) | |||||||||||||
|---|---|---|---|---|---|---|---|---|---|---|---|---|---|
| Year | Market Value | Taxable Mkt Value | Gross Assessed | Exemption | Net Assessed | Millage | Est. Tax | Tax Savings | |||||
|
2025 |
298,000 |
225,510 |
24,805 |
0 |
24,805 |
122.90 |
$3,049 |
$980 |
|||||
|
2024 |
284,500 |
214,772 |
23,623 |
0 |
23,623 |
123.89 |
$2,927 |
$950 |
|||||
|
2023 |
279,000 |
204,545 |
22,499 |
0 |
22,499 |
122.82 |
$2,763 |
$1,006 |
|||||
|
2022 |
236,500 |
194,805 |
21,427 |
0 |
21,427 |
117.63 |
$2,521 |
$540 |
|||||
|
2021 |
206,000 |
185,529 |
20,407 |
0 |
20,407 |
117.70 |
$2,402 |
$265 |
|||||
| Property Account Status/Adjustments/Exemptions | ||
|---|---|---|
| Account # | Exemption Description | Amount |
|
R063580890 |
5% Capped Account |
0 |
| Property Deed Transaction History (Recorded in the County Clerk's Office) | ||||||||||
|---|---|---|---|---|---|---|---|---|---|---|
| Date | Type | Book | Page | Price | Grantor | Grantee | ||||
|
7/21/2011 |
|
Deeds |
$154,500 |
COX ADRIENNE E |
DAVIS KAREN D |
|||||
|
12/22/2006 |
|
Deeds |
$145,000 |
NB PARTNERS LLC |
COX ADRIENNE E |
|||||
|
11/21/2005 |
|
Deeds |
$79,000 |
RODEN RICKEY D STEPHENS TERRY L |
NB PARTNERS LLC |
|||||
|
4/12/2002 |
|
Deeds |
$0 |
STEPHENS TERRY L RODEN RICKY D |
RODEN RICKEY D STEPHENS TERRY L |
|||||
|
2/8/2000 |
|
Deeds |
$63,500 |
SCHMOLDT FAYE L |
STEPHENS TERRY L RODEN RICKY D |
|||||
| Last Mailed Notice of Value (N.O.V.) Information/History | ||||||||
|---|---|---|---|---|---|---|---|---|
| Year | Date | Market Value | Taxable Market Value | Gross Assessed | Exemption | Net Assessed | ||
|
2026 |
02/23/2026 |
292,500 |
236,785 |
26,046 |
0 |
26,046 |
||
|
2025 |
02/14/2025 |
298,000 |
225,510 |
24,805 |
0 |
24,805 |
||
|
2024 |
02/13/2024 |
284,500 |
214,772 |
23,623 |
0 |
23,623 |
||
|
2023 |
02/14/2023 |
279,000 |
204,545 |
22,499 |
0 |
22,499 |
||
|
2022 |
03/15/2022 |
236,500 |
194,805 |
21,427 |
0 |
21,427 |
||
| Property Building Permit History | ||||||
|---|---|---|---|---|---|---|
| Issued | Permit # | Provided by | Bldg # | Description | Est Construction Cost | Status |
|
12/20/2022 |
|
|
1 |
Enclosure |
|
Inactive |
| Click button on building number to access detailed information: | ||||||
|---|---|---|---|---|---|---|
| Bldg # | Vacant/Improved Land | Bldg Description | Year Built | SqFt | # Stories | |
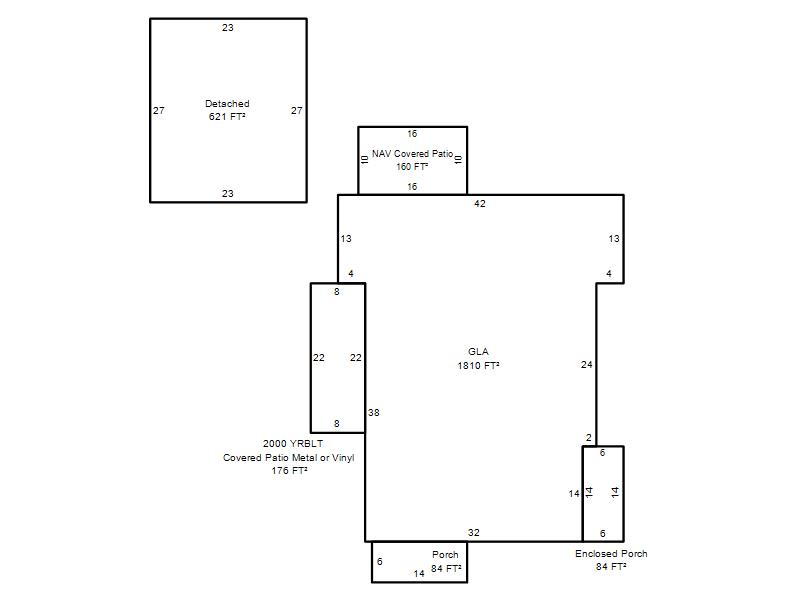
|
1 |
Improved |
Ranch 1 Story |
1929 |
1,810 |
1 Stories |
|