|
|
|
| Larry Stein Oklahoma County Assessor (405) 713-1200 - Public Access System |
|
|
|
|
|
|
| Real Property Display - Screen Produced 3/22/2026 6:38:32 AM | ||||
|---|---|---|---|---|
| Account: R063580910 | Type: Residential | Location: |
2509 NW 22ND ST |
|
| Building Name/Occupant: |
|
OKLAHOMA CITY |
||
| Owner Name 1: | LEGACY INVESTMENT HOLDINGS LLC |
Parcel PIN#: |
2720-06-358-0910 |
|
| Owner Name 2: | 1/4 section #: |
2720 |
||
| Owner Name 3: | Parent Acct: |
|
||
| Billing Address: | 6011 N ROBINSON AVE | Tax District: |
|
|
| City, State, Zip | OKLAHOMA CITY, OK 73118 | School System: |
Oklahoma City #89 |
|
|
Country: (If noted) |
Land Size: |
0.1607 Acres |
||
|
Land Value: 32,900 |
|
|||
|
Sect 30-T12N-R3W Qtr NW |
CRESTWOOD ADDITION
Block
002
Lot
000
|
|||
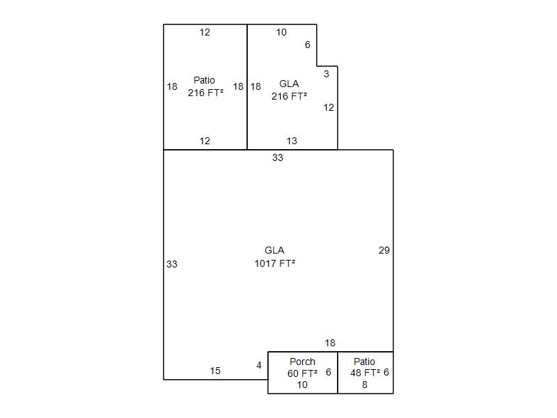
| Full Legal Description: CRESTWOOD ADDITION 002 000 LOTS 35 & 36 |
| Photo & Sketch (if available) | Comp Sales (ordered by relevancy) |
|
||||||||||||||||||
|
||||||||||||||||||||
| Value History (*The County Treasurer 405-713-1300 posts & collects actual tax amounts. Contact information HERE) | |||||||||||||
|---|---|---|---|---|---|---|---|---|---|---|---|---|---|
| Year | Market Value | Taxable Mkt Value | Gross Assessed | Exemption | Net Assessed | Millage | Est. Tax | Tax Savings | |||||
|
2025 |
150,500 |
150,500 |
16,555 |
0 |
16,555 |
122.90 |
$2,035 |
$0 |
|||||
|
2024 |
144,000 |
144,000 |
15,840 |
0 |
15,840 |
123.89 |
$1,962 |
$0 |
|||||
|
2023 |
141,500 |
141,500 |
15,565 |
0 |
15,565 |
122.82 |
$1,912 |
$0 |
|||||
|
2022 |
110,500 |
93,803 |
10,317 |
0 |
10,317 |
117.63 |
$1,214 |
$216 |
|||||
|
2021 |
99,500 |
89,337 |
9,826 |
0 |
9,826 |
117.70 |
$1,157 |
$132 |
|||||
| Property Account Status/Adjustments/Exemptions | ||
|---|---|---|
| Account # | Exemption Description | Amount |
|
R063580910 |
5% Capped Account |
0 |
| Property Deed Transaction History (Recorded in the County Clerk's Office) | ||||||||||
|---|---|---|---|---|---|---|---|---|---|---|
| Date | Type | Book | Page | Price | Grantor | Grantee | ||||
|
4/25/2022 |
|
Deeds |
$142,500 |
HOME AT LAST INC |
LEGACY INVESTMENT HOLDINGS LLC |
|||||
|
5/19/2003 |
|
Deeds |
$36,000 |
FEDERAL NATIONAL MORTGAGE ASSOCIATION |
HOME AT LAST INC |
|||||
|
2/27/2003 |
|
Hmstd Off & |
$0 |
SAYLORS ROMELDA M |
FEDERAL NATIONAL MORTGAGE ASSOCIATION |
|||||
|
10/23/1989 |
|
Historical |
$18,643 |
FIRST NATIONAL BANK |
SAYLORS ROMELDA M |
|||||
|
7/31/1989 |
|
Historical |
$0 |
CITICORP HOMEOWNERS INC |
FIRST NATIONAL BANK |
|||||
| Last Mailed Notice of Value (N.O.V.) Information/History | ||||||||
|---|---|---|---|---|---|---|---|---|
| Year | Date | Market Value | Taxable Market Value | Gross Assessed | Exemption | Net Assessed | ||
|
2026 |
02/23/2026 |
153,500 |
153,500 |
16,885 |
0 |
16,885 |
||
|
2025 |
02/14/2025 |
150,500 |
150,500 |
16,555 |
0 |
16,555 |
||
|
2024 |
02/13/2024 |
144,000 |
144,000 |
15,840 |
0 |
15,840 |
||
|
2023 |
02/14/2023 |
141,500 |
141,500 |
15,565 |
0 |
15,565 |
||
|
2022 |
03/15/2022 |
110,500 |
93,803 |
10,317 |
0 |
10,317 |
||
| Property Building Permit History | |||||||||||
|---|---|---|---|---|---|---|---|---|---|---|---|
| Issued | Permit # | Provided by | Bldg # | Description | Est Construction Cost | Status | |||||
| No Building Permit records returned. | |||||||||||
| Click button on building number to access detailed information: | ||||||
|---|---|---|---|---|---|---|
| Bldg # | Vacant/Improved Land | Bldg Description | Year Built | SqFt | # Stories | |
|
1 |
Improved |
Ranch 1 Story |
1934 |
1,233 |
1 Stories |
|