|
|
|
| Larry Stein Oklahoma County Assessor (405) 713-1200 - Public Access System |
|
|
|
|
|
|
| Real Property Display - Screen Produced 3/22/2026 6:32:34 AM | ||||
|---|---|---|---|---|
| Account: R063583000 | Type: Residential | Location: |
2800 NW 22ND ST |
|
| Building Name/Occupant: |
|
OKLAHOMA CITY |
||
| Owner Name 1: | KERRIGAN ERIN |
Parcel PIN#: |
2720-06-358-3000 |
|
| Owner Name 2: | ANQUOE MARK E | 1/4 section #: |
2720 |
|
| Owner Name 3: | Parent Acct: |
|
||
| Billing Address: | 2800 NW 22ND ST | Tax District: |
|
|
| City, State, Zip | OKLAHOMA CITY, OK 73107 | School System: |
Oklahoma City #89 |
|
|
Country: (If noted) |
Land Size: |
0.1722 Acres |
||
|
Land Value: 35,250 |
|
|||
|
Sect 30-T12N-R3W Qtr NW |
CRESTWOOD ADDITION
Block
003
Lot
000
|
|||
| Full Legal Description: CRESTWOOD ADDITION 003 000 LOTS 31 & 32 |
| Photo & Sketch (if available) | Comp Sales (ordered by relevancy) |
|
||||||||||||||||||
|
||||||||||||||||||||
| Value History (*The County Treasurer 405-713-1300 posts & collects actual tax amounts. Contact information HERE) | |||||||||||||
|---|---|---|---|---|---|---|---|---|---|---|---|---|---|
| Year | Market Value | Taxable Mkt Value | Gross Assessed | Exemption | Net Assessed | Millage | Est. Tax | Tax Savings | |||||
|
2025 |
297,500 |
204,771 |
22,524 |
1,000 |
21,524 |
122.90 |
$2,645 |
$1,377 |
|||||
|
2024 |
291,500 |
198,807 |
21,867 |
1,000 |
20,867 |
123.89 |
$2,585 |
$1,387 |
|||||
|
2023 |
282,000 |
193,017 |
21,231 |
1,000 |
20,231 |
122.82 |
$2,485 |
$1,325 |
|||||
|
2022 |
234,000 |
187,396 |
20,612 |
1,000 |
19,612 |
117.63 |
$2,307 |
$721 |
|||||
|
2021 |
201,000 |
181,938 |
20,012 |
1,000 |
19,012 |
117.70 |
$2,238 |
$364 |
|||||
| Property Account Status/Adjustments/Exemptions | ||
|---|---|---|
| Account # | Exemption Description | Amount |
|
R063583000 |
3% Cap Homestead |
0 |
|
R063583000 |
Homestead |
1,000 |
| Property Deed Transaction History (Recorded in the County Clerk's Office) | ||||||||||
|---|---|---|---|---|---|---|---|---|---|---|
| Date | Type | Book | Page | Price | Grantor | Grantee | ||||
|
12/29/2017 |
|
Deeds |
$168,000 |
SMITH DUSTIN |
KERRIGAN ERIN |
|||||
|
5/8/2015 |
|
Deeds |
$155,000 |
ASSEF DAVID TRUST |
SMITH DUSTIN |
|||||
|
2/27/2015 |
|
Deeds |
$110,000 |
GILLILAND JAMES S & NINA L |
ASSEF DAVID TRUST |
|||||
|
6/2/2005 |
|
Deeds |
$0 |
GILLILAND JAMES S & NINA L |
GILLILAND JAMES S & NINA L |
|||||
|
4/22/2005 |
|
Hmstd Off & |
$0 |
NANCE DAVID B & JODI M |
GILLILAND JAMES S & NINA L |
|||||
| Last Mailed Notice of Value (N.O.V.) Information/History | ||||||||
|---|---|---|---|---|---|---|---|---|
| Year | Date | Market Value | Taxable Market Value | Gross Assessed | Exemption | Net Assessed | ||
|
2026 |
02/23/2026 |
289,500 |
210,914 |
23,199 |
1,000 |
22,199 |
||
|
2025 |
02/14/2025 |
297,500 |
204,771 |
22,524 |
1,000 |
21,524 |
||
|
2024 |
02/13/2024 |
291,500 |
198,807 |
21,867 |
1,000 |
20,867 |
||
|
2023 |
02/14/2023 |
282,000 |
193,017 |
21,231 |
1,000 |
20,231 |
||
|
2022 |
03/15/2022 |
234,000 |
187,396 |
20,612 |
1,000 |
19,612 |
||
| Property Building Permit History | |||||||||||
|---|---|---|---|---|---|---|---|---|---|---|---|
| Issued | Permit # | Provided by | Bldg # | Description | Est Construction Cost | Status | |||||
| No Building Permit records returned. | |||||||||||
| Click button on building number to access detailed information: | ||||||
|---|---|---|---|---|---|---|
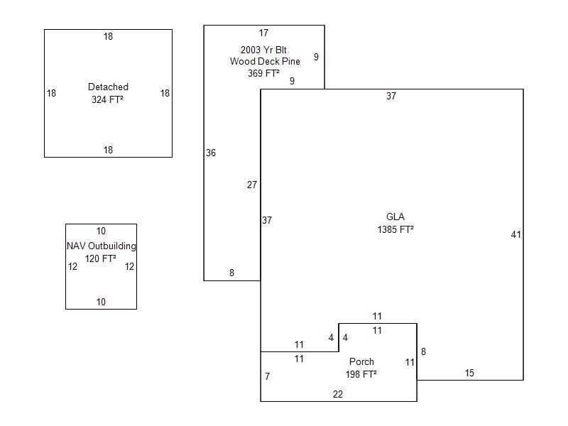
| Bldg # | Vacant/Improved Land | Bldg Description | Year Built | SqFt | # Stories | |
|
1 |
Improved |
Ranch 1 Story |
1928 |
1,385 |
1 Stories |
|