|
|
|
| Larry Stein Oklahoma County Assessor (405) 713-1200 - Public Access System |
|
|
|
|
|
|
| Real Property Display - Screen Produced 3/22/2026 6:38:32 AM | ||||
|---|---|---|---|---|
| Account: R063583060 | Type: Residential | Location: |
2821 NW 21ST ST |
|
| Building Name/Occupant: |
|
OKLAHOMA CITY |
||
| Owner Name 1: | HENDERSON ERIC SCOTT |
Parcel PIN#: |
2720-06-358-3060 |
|
| Owner Name 2: | KASIMOEN EVI MAHASTI | 1/4 section #: |
2720 |
|
| Owner Name 3: | Parent Acct: |
|
||
| Billing Address: | 2821 NW 21ST ST | Tax District: |
|
|
| City, State, Zip | OKLAHOMA CITY, OK 73107-3111 | School System: |
Oklahoma City #89 |
|
|
Country: (If noted) |
Land Size: |
0.1722 Acres |
||
|
Land Value: 35,250 |
|
|||
|
Sect 30-T12N-R3W Qtr NW |
CRESTWOOD ADDITION
Block
003
Lot
000
|
|||
| Full Legal Description: CRESTWOOD ADDITION 003 000 LOTS 43 & 44 |
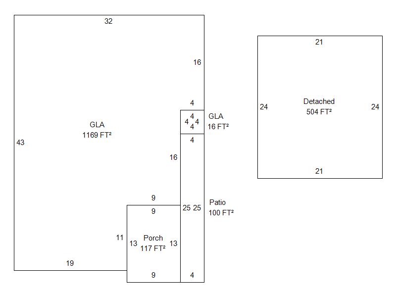
| Photo & Sketch (if available) | Comp Sales (ordered by relevancy) |
|
||||||||||||||||||
|
||||||||||||||||||||
| Value History (*The County Treasurer 405-713-1300 posts & collects actual tax amounts. Contact information HERE) | |||||||||||||
|---|---|---|---|---|---|---|---|---|---|---|---|---|---|
| Year | Market Value | Taxable Mkt Value | Gross Assessed | Exemption | Net Assessed | Millage | Est. Tax | Tax Savings | |||||
|
2025 |
180,000 |
113,760 |
12,513 |
1,000 |
11,513 |
122.90 |
$1,415 |
$1,018 |
|||||
|
2024 |
174,000 |
110,447 |
12,148 |
1,000 |
11,148 |
123.89 |
$1,381 |
$990 |
|||||
|
2023 |
167,500 |
107,231 |
11,794 |
1,000 |
10,794 |
122.82 |
$1,326 |
$937 |
|||||
|
2022 |
131,000 |
104,108 |
11,450 |
1,000 |
10,450 |
117.63 |
$1,229 |
$466 |
|||||
|
2021 |
120,500 |
101,076 |
11,117 |
1,000 |
10,117 |
117.70 |
$1,191 |
$369 |
|||||
| Property Account Status/Adjustments/Exemptions | ||
|---|---|---|
| Account # | Exemption Description | Amount |
|
R063583060 |
3% Cap Homestead |
0 |
|
R063583060 |
Homestead |
1,000 |
| Property Deed Transaction History (Recorded in the County Clerk's Office) | |||||||
|---|---|---|---|---|---|---|---|
| Date | Type | Book | Page | Price | Grantor | Grantee | |
|
8/27/2018 |
|
Deeds |
$0 |
HENDERSON ERIC SCOTT |
HENDERSON ERIC SCOTT |
||
|
11/24/2009 |
|
Deeds |
$0 |
HENDERSON ERIC S & LAURA R |
HENDERSON ERIC SCOTT |
||
|
11/24/1998 |
|
Historical |
$57,000 |
GRIFFIS RONALD E & ROSEMARY |
HENDERSON ERIC S & LAURA R |
||
|
9/14/1987 |
|
Historical |
$39,000 |
BUSENBARK JAMES L |
GRIFFIS RONALD E & ROSEMARY |
||
|
3/1/1983 |
|
Historical |
$0 |
|
BUSENBARK JAMES L |
||
| Last Mailed Notice of Value (N.O.V.) Information/History | ||||||||
|---|---|---|---|---|---|---|---|---|
| Year | Date | Market Value | Taxable Market Value | Gross Assessed | Exemption | Net Assessed | ||
|
2026 |
02/23/2026 |
179,000 |
117,172 |
12,888 |
1,000 |
11,888 |
||
|
2025 |
02/14/2025 |
180,000 |
113,760 |
12,513 |
1,000 |
11,513 |
||
|
2024 |
02/13/2024 |
174,000 |
110,447 |
12,148 |
1,000 |
11,148 |
||
|
2023 |
02/14/2023 |
167,500 |
107,231 |
11,794 |
1,000 |
10,794 |
||
|
2022 |
03/15/2022 |
131,000 |
104,108 |
11,450 |
1,000 |
10,450 |
||
| Property Building Permit History | |||||||||||
|---|---|---|---|---|---|---|---|---|---|---|---|
| Issued | Permit # | Provided by | Bldg # | Description | Est Construction Cost | Status | |||||
| No Building Permit records returned. | |||||||||||
| Click button on building number to access detailed information: | ||||||
|---|---|---|---|---|---|---|
| Bldg # | Vacant/Improved Land | Bldg Description | Year Built | SqFt | # Stories | |
|
1 |
Improved |
Ranch 1 Story |
1930 |
1,185 |
1 Stories |
|