|
|
|
| Larry Stein Oklahoma County Assessor (405) 713-1200 - Public Access System |
|
|
|
|
|
|
| Real Property Display - Screen Produced 4/5/2026 12:09:10 PM | ||||
|---|---|---|---|---|
| Account: R150510370 | Type: Residential | Location: |
548 E ROSE DR |
|
| Building Name/Occupant: |
|
MIDWEST CITY |
||
| Owner Name 1: | SFR WORKFORCE OWNER 2 LLC |
Parcel PIN#: |
1410-15-051-0370 |
|
| Owner Name 2: | 1/4 section #: |
1410 |
||
| Owner Name 3: | Parent Acct: |
|
||
| Billing Address: | PO BOX 4900 | Tax District: |
|
|
| City, State, Zip | SCOTTSDALE, AZ 85261 | School System: |
Mid-Del #52 |
|
|
Country: (If noted) |
UNITED STATES |
Land Size: |
0.2250 Acres |
|
|
Land Value: 27,930 |
|
|||
|
Sect 3-T11N-R2W Qtr SE |
COUNTRY ESTATES 4TH
Block
002
Lot
004
|
|||
| Full Legal Description: COUNTRY ESTATES 4TH 002 004 |
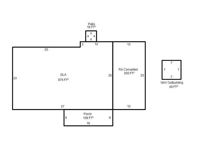
| Photo & Sketch (if available) | Comp Sales (ordered by relevancy) |
|
||||||||||||||||||
|
||||||||||||||||||||
| Value History (*The County Treasurer 405-713-1300 posts & collects actual tax amounts. Contact information HERE) | |||||||||||||
|---|---|---|---|---|---|---|---|---|---|---|---|---|---|
| Year | Market Value | Taxable Mkt Value | Gross Assessed | Exemption | Net Assessed | Millage | Est. Tax | Tax Savings | |||||
|
2026 |
139,000 |
117,498 |
12,924 |
0 |
12,924 |
119.58 |
$1,546 |
$283 |
|||||
|
2025 |
138,000 |
111,903 |
12,309 |
0 |
12,309 |
119.58 |
$1,472 |
$343 |
|||||
|
2024 |
129,000 |
106,575 |
11,723 |
0 |
11,723 |
122.51 |
$1,436 |
$302 |
|||||
|
2023 |
101,500 |
101,500 |
11,165 |
0 |
11,165 |
117.71 |
$1,314 |
$0 |
|||||
|
2022 |
81,000 |
69,457 |
7,639 |
0 |
7,639 |
116.64 |
$891 |
$148 |
|||||
| Property Account Status/Adjustments/Exemptions | ||
|---|---|---|
| Account # | Exemption Description | Amount |
|
R150510370 |
5% Capped Account |
0 |
| Property Deed Transaction History (Recorded in the County Clerk's Office) | ||||||||||
|---|---|---|---|---|---|---|---|---|---|---|
| Date | Type | Book | Page | Price | Grantor | Grantee | ||||
|
10/10/2023 |
|
Hmstd Off & |
$0 |
JKV WORKFORCE OWNER 2 LLC |
SFR WORKFORCE OWNER 2 LLC |
|||||
|
4/20/2023 |
|
Hmstd Off & |
$0 |
JKV WORKFORCE I LLC |
JKV WORKFORCE OWNER 2 LLC |
|||||
|
10/7/2022 |
|
Deeds |
$100,000 |
FELIX & ALLEN INC |
JKV WORKFORCE I LLC |
|||||
|
8/4/2016 |
|
Hmstd Off & |
$0 |
INNOVATIVE HOME RENONVATIONS INC |
FELIX & ALLEN INC |
|||||
|
10/24/2013 |
|
Deeds |
$42,000 |
RIDGE PATRICIA LEE |
INNOVATIVE HOME RENOVATIONS INC |
|||||
| Last Mailed Notice of Value (N.O.V.) Information/History | ||||||||
|---|---|---|---|---|---|---|---|---|
| Year | Date | Market Value | Taxable Market Value | Gross Assessed | Exemption | Net Assessed | ||
|
2026 |
02/06/2026 |
139,000 |
117,498 |
12,924 |
0 |
12,924 |
||
|
2025 |
01/31/2025 |
138,000 |
111,903 |
12,309 |
0 |
12,309 |
||
|
2024 |
01/22/2024 |
129,000 |
106,575 |
11,723 |
0 |
11,723 |
||
|
2023 |
01/23/2023 |
101,500 |
101,500 |
11,165 |
0 |
11,165 |
||
|
2022 |
02/22/2022 |
81,000 |
69,457 |
7,639 |
0 |
7,639 |
||
| Property Building Permit History | |||||||||||
|---|---|---|---|---|---|---|---|---|---|---|---|
| Issued | Permit # | Provided by | Bldg # | Description | Est Construction Cost | Status | |||||
| No Building Permit records returned. | |||||||||||
| Click button on building number to access detailed information: | ||||||
|---|---|---|---|---|---|---|
| Bldg # | Vacant/Improved Land | Bldg Description | Year Built | SqFt | # Stories | |
|
1 |
Improved |
Ranch 1 Story |
1951 |
875 |
1 Stories |
|