|
|
|
| Larry Stein Oklahoma County Assessor (405) 713-1200 - Public Access System |
|
|
|
|
|
|
| Real Property Display - Screen Produced 3/19/2026 4:00:02 AM | ||||
|---|---|---|---|---|
| Account: R016080675 | Type: Residential | Location: |
1633 NW 9TH ST |
|
| Building Name/Occupant: |
|
OKLAHOMA CITY |
||
| Owner Name 1: | AGUILAR ISABEL ANGEL |
Parcel PIN#: |
2725-01-608-0675 |
|
| Owner Name 2: | NUNEZ GUILLERMO ANGEL | 1/4 section #: |
2725 |
|
| Owner Name 3: | Parent Acct: |
|
||
| Billing Address: | 2460 NW 1ST TER | Tax District: |
|
|
| City, State, Zip | OKLAHOMA CITY, OK 73107-6930 | School System: |
Oklahoma City #89 |
|
|
Country: (If noted) |
Land Size: |
0.1575 Acres |
||
|
Land Value: 20,374 |
|
|||
|
Sect 32-T12N-R3W Qtr NE |
NEAS ADDITION
Block
003
Lot
000
|
|||
| Full Legal Description: NEAS ADDITION 003 000 LOTS 19 & 20 |
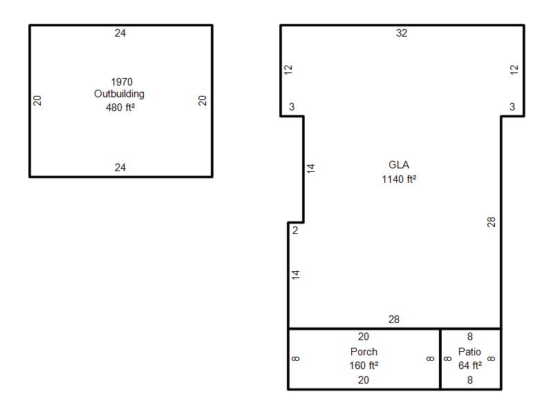
| Photo & Sketch (if available) | Comp Sales (ordered by relevancy) |
|
||||||||||||||||||
|
||||||||||||||||||||
| Value History (*The County Treasurer 405-713-1300 posts & collects actual tax amounts. Contact information HERE) | |||||||||||||
|---|---|---|---|---|---|---|---|---|---|---|---|---|---|
| Year | Market Value | Taxable Mkt Value | Gross Assessed | Exemption | Net Assessed | Millage | Est. Tax | Tax Savings | |||||
| No PropertyValuation records returned. | |||||||||||||
| Property Account Status/Adjustments/Exemptions | ||
|---|---|---|
| Account # | Exemption Description | Amount |
|
R016080675 |
5% Capped Account |
0 |
| Property Deed Transaction History (Recorded in the County Clerk's Office) | ||||||||||
|---|---|---|---|---|---|---|---|---|---|---|
| Date | Type | Book | Page | Price | Grantor | Grantee | ||||
|
5/27/2024 |
|
Hmstd Off & |
$0 |
ANGEL PEDRO |
AGUILAR ISABEL ANGEL |
|||||
|
11/4/2019 |
|
Hmstd Off & |
$0 |
ANGEL PEDRO & LILIA |
ANGEL PEDRO |
|||||
|
2/12/2001 |
|
Deeds |
$22,000 |
TAYLOR JAMES E & MARY M |
ANGEL PEDRO & LILIA |
|||||
|
9/9/1999 |
|
Deeds |
$0 |
TAYLOR J MARK |
TAYLOR JAMES E & MARY M |
|||||
|
12/20/1993 |
|
Historical |
$0 |
TAYLOR J MARK |
GUIJON ANTONIO |
|||||
| Last Mailed Notice of Value (N.O.V.) Information/History | ||||||||
|---|---|---|---|---|---|---|---|---|
| Year | Date | Market Value | Taxable Market Value | Gross Assessed | Exemption | Net Assessed | ||
| No Notice of Value N.O.V. records returned. | ||||||||
| Property Building Permit History | |||||||||||
|---|---|---|---|---|---|---|---|---|---|---|---|
| Issued | Permit # | Provided by | Bldg # | Description | Est Construction Cost | Status | |||||
| No Building Permit records returned. | |||||||||||
| Click button on building number to access detailed information: | ||||||
|---|---|---|---|---|---|---|
| Bldg # | Vacant/Improved Land | Bldg Description | Year Built | SqFt | # Stories | |
|
1 |
Improved |
Ranch 1 Story |
1910 |
1,140 |
1 Stories |
|