|
|
|
| Larry Stein Oklahoma County Assessor (405) 713-1200 - Public Access System |
|
|
|
|
|
|
| Real Property Display - Screen Produced 4/1/2026 7:39:37 AM | ||||
|---|---|---|---|---|
| Account: R150512570 | Type: Residential | Location: |
307 E KEY BLVD |
|
| Building Name/Occupant: |
|
MIDWEST CITY |
||
| Owner Name 1: | ANDERSON LINDA |
Parcel PIN#: |
1410-15-051-2570 |
|
| Owner Name 2: | 1/4 section #: |
1410 |
||
| Owner Name 3: | Parent Acct: |
|
||
| Billing Address: | 307 E KEY BLVD | Tax District: |
|
|
| City, State, Zip | MIDWEST CITY, OK 73110-5005 | School System: |
Mid-Del #52 |
|
|
Country: (If noted) |
Land Size: |
0.1607 Acres |
||
|
Land Value: 19,950 |
|
|||
|
Sect 3-T11N-R2W Qtr SE |
COUNTRY ESTATES 4TH
Block
008
Lot
028
|
|||
| Full Legal Description: COUNTRY ESTATES 4TH 008 028 |
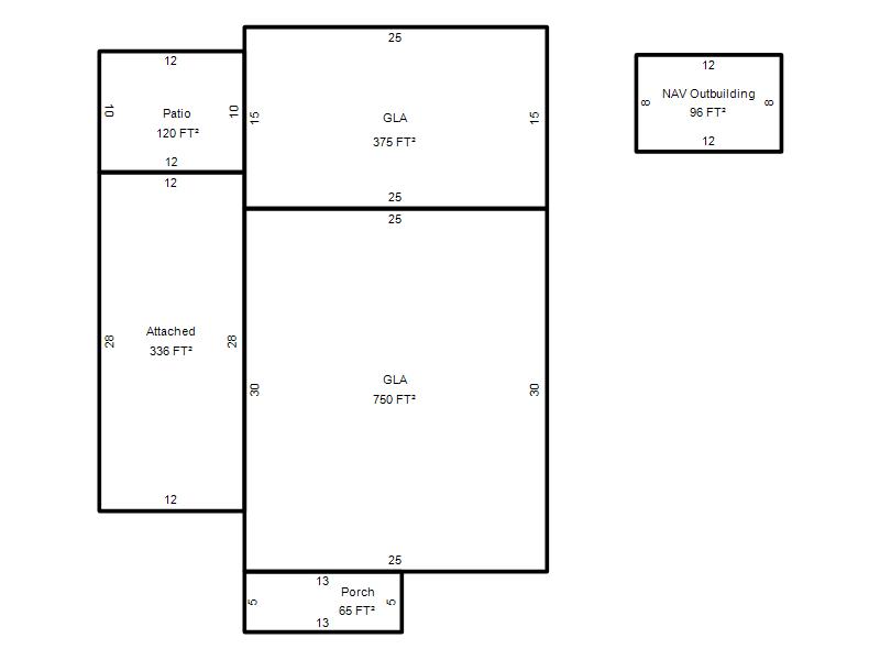
| Photo & Sketch (if available) | Comp Sales (ordered by relevancy) |
|
||||||||||||||||||
|
||||||||||||||||||||
| Value History (*The County Treasurer 405-713-1300 posts & collects actual tax amounts. Contact information HERE) | |||||||||||||
|---|---|---|---|---|---|---|---|---|---|---|---|---|---|
| Year | Market Value | Taxable Mkt Value | Gross Assessed | Exemption | Net Assessed | Millage | Est. Tax | Tax Savings | |||||
|
2026 |
160,500 |
78,500 |
8,635 |
1,000 |
7,635 |
119.58 |
$913 |
$1,198 |
|||||
|
2025 |
161,500 |
78,500 |
8,635 |
2,000 |
6,635 |
119.58 |
$793 |
$1,331 |
|||||
|
2024 |
152,000 |
78,500 |
8,635 |
2,000 |
6,635 |
122.51 |
$813 |
$1,236 |
|||||
|
2023 |
136,500 |
78,500 |
8,635 |
2,000 |
6,635 |
117.71 |
$781 |
$986 |
|||||
|
2022 |
78,500 |
78,500 |
8,635 |
2,000 |
6,635 |
116.64 |
$774 |
$233 |
|||||
| Property Account Status/Adjustments/Exemptions | ||
|---|---|---|
| Account # | Exemption Description | Amount |
|
R150512570 |
Freeze Senior Valuation |
0 |
|
R150512570 |
Homestead |
1,000 |
|
R150512570 |
3% Cap Homestead |
0 |
| Property Deed Transaction History (Recorded in the County Clerk's Office) | ||||||||||
|---|---|---|---|---|---|---|---|---|---|---|
| Date | Type | Book | Page | Price | Grantor | Grantee | ||||
|
2/26/2026 |
|
Deeds |
$0 |
HAMM CHARLES W SUCC TRS |
ANDERSON LINDA |
|||||
|
7/1/2022 |
|
Deeds |
$0 |
TURNER MILDRED F TRS |
HAMM CHARLES W SUCC TRS |
|||||
|
11/17/2020 |
|
Deeds |
$0 |
ANDERSON LINDA |
ANDERSON LINDA |
|||||
|
4/30/2019 |
|
Hmstd Off & |
$0 |
TURNER MILDRED F TRS |
HAMM CHARLES W SUC TRS |
|||||
|
4/20/2019 |
|
Deeds |
$78,000 |
HAMM CHARLES W SUC TRS |
ANDERSON LINDA |
|||||
| Last Mailed Notice of Value (N.O.V.) Information/History | ||||||||
|---|---|---|---|---|---|---|---|---|
| Year | Date | Market Value | Taxable Market Value | Gross Assessed | Exemption | Net Assessed | ||
|
2025 |
01/31/2025 |
161,500 |
78,500 |
8,635 |
2,000 |
6,635 |
||
|
2024 |
01/22/2024 |
152,000 |
78,500 |
8,635 |
2,000 |
6,635 |
||
|
2023 |
01/23/2023 |
136,500 |
78,500 |
8,635 |
2,000 |
6,635 |
||
|
2020 |
02/21/2020 |
78,500 |
78,500 |
8,635 |
0 |
8,635 |
||
|
2019 |
02/26/2019 |
65,500 |
65,500 |
7,205 |
0 |
7,205 |
||
| Property Building Permit History | |||||||||||
|---|---|---|---|---|---|---|---|---|---|---|---|
| Issued | Permit # | Provided by | Bldg # | Description | Est Construction Cost | Status | |||||
| No Building Permit records returned. | |||||||||||
| Click button on building number to access detailed information: | ||||||
|---|---|---|---|---|---|---|
| Bldg # | Vacant/Improved Land | Bldg Description | Year Built | SqFt | # Stories | |
|
1 |
Improved |
Ranch 1 Story |
1951 |
1,125 |
1 Stories |
|