|
|
|
| Larry Stein Oklahoma County Assessor (405) 713-1200 - Public Access System |
|
|
|
|
|
|
| Real Property Display - Screen Produced 4/2/2026 7:31:50 AM | ||||
|---|---|---|---|---|
| Account: R150171775 | Type: Residential | Location: |
209 W KERR DR |
|
| Building Name/Occupant: |
|
MIDWEST CITY |
||
| Owner Name 1: | ADAMS LARRY D & DEBBIE K |
Parcel PIN#: |
1412-15-017-1775 |
|
| Owner Name 2: | 1/4 section #: |
1412 |
||
| Owner Name 3: | Parent Acct: |
|
||
| Billing Address: | 209 W KERR DR | Tax District: |
|
|
| City, State, Zip | MIDWEST CITY, OK 73110-4531 | School System: |
Mid-Del #52 |
|
|
Country: (If noted) |
Land Size: |
0.1791 Acres |
||
|
Land Value: 26,520 |
|
|||
|
Sect 3-T11N-R2W Qtr NW |
COUNTRY ESTATES 7TH
Block
003
Lot
015
|
|||
| Full Legal Description: COUNTRY ESTATES 7TH 003 015 |
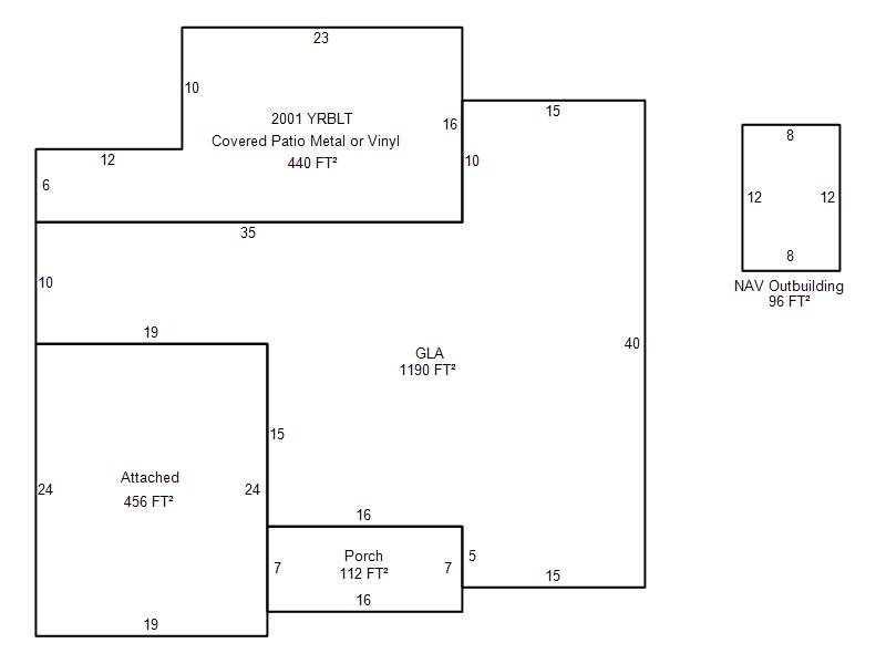
| Photo & Sketch (if available) | Comp Sales (ordered by relevancy) |
|
||||||||||||||||||
|
||||||||||||||||||||
| Value History (*The County Treasurer 405-713-1300 posts & collects actual tax amounts. Contact information HERE) | |||||||||||||
|---|---|---|---|---|---|---|---|---|---|---|---|---|---|
| Year | Market Value | Taxable Mkt Value | Gross Assessed | Exemption | Net Assessed | Millage | Est. Tax | Tax Savings | |||||
|
2026 |
174,500 |
122,985 |
13,528 |
1,000 |
12,528 |
119.58 |
$1,498 |
$797 |
|||||
|
2025 |
178,500 |
119,403 |
13,133 |
1,000 |
12,133 |
119.58 |
$1,451 |
$897 |
|||||
|
2024 |
171,000 |
115,926 |
12,751 |
1,000 |
11,751 |
122.51 |
$1,440 |
$865 |
|||||
|
2023 |
151,500 |
112,550 |
12,379 |
1,000 |
11,379 |
117.71 |
$1,340 |
$622 |
|||||
|
2022 |
135,500 |
109,272 |
12,019 |
1,000 |
11,019 |
116.64 |
$1,285 |
$453 |
|||||
| Property Account Status/Adjustments/Exemptions | ||
|---|---|---|
| Account # | Exemption Description | Amount |
|
R150171775 |
3% Cap Homestead |
0 |
|
R150171775 |
Homestead |
1,000 |
| Property Deed Transaction History (Recorded in the County Clerk's Office) | |||||||
|---|---|---|---|---|---|---|---|
| Date | Type | Book | Page | Price | Grantor | Grantee | |
|
4/23/2003 |
|
Deeds |
$80,000 |
REED KENNETH R REYNOLDS RAYMOND L & IRENE L |
ADAMS LARRY D & DEBBIE K |
||
|
5/30/2002 |
|
Deeds |
$73,000 |
SAXTON EDGAR D & VICTORIA L |
REED KENNETH R REYNOLDS RAYMOND L & IRENE L |
||
|
6/4/1996 |
|
Historical |
$53,000 |
MARTZ P E & CLAIRE S |
SAXTON EDGAR D & VICTORIA L |
||
|
11/11/1911 |
|
Historical |
$0 |
|
MARTZ P E & CLAIRE S |
||
| Last Mailed Notice of Value (N.O.V.) Information/History | ||||||||
|---|---|---|---|---|---|---|---|---|
| Year | Date | Market Value | Taxable Market Value | Gross Assessed | Exemption | Net Assessed | ||
|
2026 |
02/06/2026 |
174,500 |
122,985 |
13,528 |
1,000 |
12,528 |
||
|
2025 |
01/31/2025 |
178,500 |
119,403 |
13,133 |
1,000 |
12,133 |
||
|
2024 |
01/22/2024 |
171,000 |
115,926 |
12,751 |
1,000 |
11,751 |
||
|
2023 |
01/23/2023 |
151,500 |
112,550 |
12,379 |
1,000 |
11,379 |
||
|
2022 |
02/22/2022 |
135,500 |
109,272 |
12,019 |
1,000 |
11,019 |
||
| Property Building Permit History | ||||||
|---|---|---|---|---|---|---|
| Issued | Permit # | Provided by | Bldg # | Description | Est Construction Cost | Status |
|
8/30/2000 |
10245380 |
MIDWEST CITY |
1 |
Other |
21,000 |
Inactive |
| Click button on building number to access detailed information: | ||||||
|---|---|---|---|---|---|---|
| Bldg # | Vacant/Improved Land | Bldg Description | Year Built | SqFt | # Stories | |
|
1 |
Improved |
Ranch 1 Story |
1955 |
1,190 |
1 Stories |
|