|
|
|
| Larry Stein Oklahoma County Assessor (405) 713-1200 - Public Access System |
|
|
|
|
|
|
| Real Property Display - Screen Produced 4/5/2026 8:43:10 AM | ||||
|---|---|---|---|---|
| Account: R208600008 | Type: Residential | Location: |
0 UNKNOWN |
|
| Building Name/Occupant: |
|
OKLAHOMA CITY |
||
| Owner Name 1: | MCLEAN MARK & ELIZABETH |
Parcel PIN#: |
2736-20-860-0008 |
|
| Owner Name 2: | 1/4 section #: |
2736 |
||
| Owner Name 3: | Parent Acct: |
2736-02-014-8145 |
||
| Billing Address: | 1206 HICKORY ST | Tax District: |
|
|
| City, State, Zip | WEATHERFORD, OK 73096 | School System: |
Oklahoma City #89 |
|
|
Country: (If noted) |
Land Size: |
1.0000 Site |
||
|
Land Value: 29,867 |
|
|||
|
Sect 34-T12N-R3W Qtr NW |
BLOCK 42 CONDOS
Block
000
Lot
000
|
|||
| Full Legal Description: BLOCK 42 CONDOS 000 000 UNIT 8 |
| Photo & Sketch (if available) | Comp Sales (ordered by relevancy) |
|
||||||||||||||||||
|
||||||||||||||||||||
| Value History (*The County Treasurer 405-713-1300 posts & collects actual tax amounts. Contact information HERE) | |||||||||||||
|---|---|---|---|---|---|---|---|---|---|---|---|---|---|
| Year | Market Value | Taxable Mkt Value | Gross Assessed | Exemption | Net Assessed | Millage | Est. Tax | Tax Savings | |||||
|
2026 |
291,000 |
291,000 |
32,010 |
0 |
32,010 |
122.90 |
$3,934 |
$0 |
|||||
|
2025 |
294,500 |
294,500 |
32,395 |
0 |
32,395 |
122.90 |
$3,981 |
$0 |
|||||
|
2024 |
306,000 |
289,957 |
31,894 |
0 |
31,894 |
123.89 |
$3,952 |
$219 |
|||||
|
2023 |
293,500 |
276,150 |
30,376 |
0 |
30,376 |
122.82 |
$3,731 |
$234 |
|||||
|
2022 |
263,000 |
263,000 |
28,930 |
0 |
28,930 |
117.63 |
$3,403 |
$0 |
|||||
| Property Account Status/Adjustments/Exemptions | ||
|---|---|---|
| Account # | Exemption Description | Amount |
|
R208600008 |
5% Capped Account |
0 |
| Property Deed Transaction History (Recorded in the County Clerk's Office) | |||||||
|---|---|---|---|---|---|---|---|
| Date | Type | Book | Page | Price | Grantor | Grantee | |
|
2/6/2015 |
|
Deeds |
$225,000 |
TRUONG FAMILY LIVING TRUST |
MCLEAN MARK & ELIZABETH |
||
|
2/4/2015 |
|
Deeds |
$0 |
TRUONG TERESA H & STEVE H |
TRUONG FAMILY LIVING TRUST |
||
|
5/23/2014 |
|
Deeds |
$0 |
TRUONG TERESA |
TRUONG FAMILY LIVING TRUST |
||
|
12/16/2011 |
|
Deeds |
$0 |
NGUYEN TERESA |
TRUONG TERESA |
||
|
3/21/2008 |
|
Deeds |
$185,000 |
URBAN FORM LLC |
NGUYEN TERESA |
||
| Last Mailed Notice of Value (N.O.V.) Information/History | ||||||||
|---|---|---|---|---|---|---|---|---|
| Year | Date | Market Value | Taxable Market Value | Gross Assessed | Exemption | Net Assessed | ||
|
2025 |
02/14/2025 |
294,500 |
294,500 |
32,395 |
0 |
32,395 |
||
|
2024 |
02/13/2024 |
306,000 |
289,957 |
31,894 |
0 |
31,894 |
||
|
2023 |
02/14/2023 |
293,500 |
276,150 |
30,376 |
0 |
30,376 |
||
|
2022 |
03/15/2022 |
263,000 |
263,000 |
28,930 |
0 |
28,930 |
||
|
2021 |
03/19/2021 |
257,500 |
257,500 |
28,325 |
0 |
28,325 |
||
| Property Building Permit History | ||||||
|---|---|---|---|---|---|---|
| Issued | Permit # | Provided by | Bldg # | Description | Est Construction Cost | Status |
|
5/5/2008 |
10351667 |
OKLAHOMA CITY |
1 |
Main Dwellin |
0 |
Inactive |
| Click button on building number to access detailed information: | ||||||
|---|---|---|---|---|---|---|
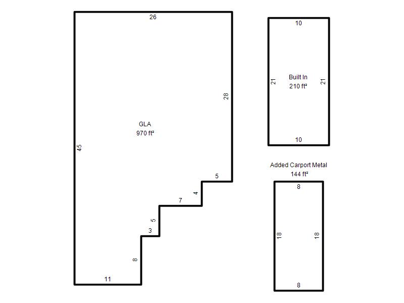
| Bldg # | Vacant/Improved Land | Bldg Description | Year Built | SqFt | # Stories | |
|
1 |
Improved |
Condo <= 3 Stories |
2008 |
970 |
1 Stories |
|