|
|
|
| Larry Stein Oklahoma County Assessor (405) 713-1200 - Public Access System |
|
|
|
|
|
|
| Real Property Display - Screen Produced 4/2/2026 1:37:14 AM | ||||
|---|---|---|---|---|
| Account: R112466040 | Type: Residential | Location: |
3120 NW GRAND BLVD |
|
| Building Name/Occupant: |
|
OKLAHOMA CITY |
||
| Owner Name 1: | DRABEK MEGAN M LIV TRUST |
Parcel PIN#: |
2801-11-246-6040 |
|
| Owner Name 2: | WILSON KOLBY LIV TRUST | 1/4 section #: |
2801 |
|
| Owner Name 3: | Parent Acct: |
|
||
| Billing Address: | 3120 NW GRAND BLVD | Tax District: |
|
|
| City, State, Zip | OKLAHOMA CITY, OK 73116-3020 | School System: |
Oklahoma City #89 |
|
|
Country: (If noted) |
Land Size: |
0.8494 Acres |
||
|
Land Value: 96,200 |
|
|||
|
Sect 1-T12N-R4W Qtr NE |
MAYVIEW ACRES ADD
Block
002
Lot
000
|
|||
| Full Legal Description: MAYVIEW ACRES ADD 002 000 A TRI TR IN SW/C OF LOT 6 BEING 15.2FT ON S & 1.5FT ON N & LOT 7 EX A TRI TR IN SW/C OF LOT 7 BEING 15.2FT ON S & 1.5FT ON N |
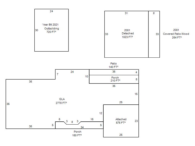
| Photo & Sketch (if available) | Comp Sales (ordered by relevancy) |
|
||||||||||||||||||
|
||||||||||||||||||||
| Value History (*The County Treasurer 405-713-1300 posts & collects actual tax amounts. Contact information HERE) | |||||||||||||
|---|---|---|---|---|---|---|---|---|---|---|---|---|---|
| Year | Market Value | Taxable Mkt Value | Gross Assessed | Exemption | Net Assessed | Millage | Est. Tax | Tax Savings | |||||
|
2026 |
535,000 |
419,640 |
46,159 |
1,000 |
45,159 |
122.90 |
$5,550 |
$1,682 |
|||||
|
2025 |
562,500 |
407,418 |
44,815 |
1,000 |
43,815 |
122.90 |
$5,385 |
$2,219 |
|||||
|
2024 |
564,500 |
395,552 |
43,510 |
1,000 |
42,510 |
123.89 |
$5,267 |
$2,426 |
|||||
|
2023 |
502,000 |
384,032 |
42,243 |
1,000 |
41,243 |
122.82 |
$5,066 |
$1,717 |
|||||
|
2022 |
381,500 |
317,022 |
34,871 |
1,000 |
33,871 |
117.63 |
$3,984 |
$952 |
|||||
| Property Account Status/Adjustments/Exemptions | ||
|---|---|---|
| Account # | Exemption Description | Amount |
|
R112466040 |
3% Cap Homestead |
0 |
|
R112466040 |
Homestead |
1,000 |
| Property Deed Transaction History (Recorded in the County Clerk's Office) | ||||||||||
|---|---|---|---|---|---|---|---|---|---|---|
| Date | Type | Book | Page | Price | Grantor | Grantee | ||||
|
2/4/2026 |
|
Deeds |
$0 |
DRABEK MEGAN M LIV TRUST |
DRABEK MEGAN M LIV TRUST |
|||||
|
12/11/2024 |
|
Deeds |
$0 |
DRABEK MEGAN M |
DRABEK MEGAN M TRS |
|||||
|
12/11/2024 |
|
Deeds |
$0 |
DRABEK MEGAN M TRS |
DRABEK MEGAN M LIV TRUST |
|||||
|
4/18/2023 |
|
Deeds |
$0 |
BRUMMELL JACKSON R & MEGAN M TRS |
DRABEK MEGAN M |
|||||
|
12/21/2020 |
|
Deeds |
$0 |
BRUMMELL JACKSON |
BRUMMELL JACKSON R & MEGAN M TRS |
|||||
| Last Mailed Notice of Value (N.O.V.) Information/History | ||||||||
|---|---|---|---|---|---|---|---|---|
| Year | Date | Market Value | Taxable Market Value | Gross Assessed | Exemption | Net Assessed | ||
|
2026 |
02/23/2026 |
535,000 |
419,640 |
46,159 |
1,000 |
45,159 |
||
|
2026 |
03/30/2026 |
535,000 |
419,640 |
46,159 |
1,000 |
45,159 |
||
|
2025 |
02/14/2025 |
562,500 |
407,418 |
44,815 |
1,000 |
43,815 |
||
|
2024 |
02/13/2024 |
564,500 |
395,552 |
43,510 |
1,000 |
42,510 |
||
|
2023 |
03/02/2023 |
502,000 |
384,032 |
42,243 |
1,000 |
41,243 |
||
| Property Building Permit History | ||||||
|---|---|---|---|---|---|---|
| Issued | Permit # | Provided by | Bldg # | Description | Est Construction Cost | Status |
|
1/7/2022 |
POOL-2021-00540 |
|
1 |
Swimming Pool |
|
Inactive |
|
8/30/2018 |
BLDR2018-01273 |
|
1 |
Remodeled |
35,000 |
Inactive |
|
2/24/1999 |
10204749 |
OKLAHOMA CITY |
1 |
Garage |
35,000 |
Inactive |
| Click button on building number to access detailed information: | ||||||
|---|---|---|---|---|---|---|
| Bldg # | Vacant/Improved Land | Bldg Description | Year Built | SqFt | # Stories | |
|
1 |
Improved |
Ranch 1 Story |
1967 |
2,778 |
1 Stories |
|