|
|
|
| Larry Stein Oklahoma County Assessor (405) 713-1200 - Public Access System |
|
|
|
|
|
|
| Real Property Display - Screen Produced 4/15/2026 2:47:36 PM | ||||
|---|---|---|---|---|
| Account: R071621010 | Type: Residential | Location: |
6425 BRANDYWINE LN |
|
| Building Name/Occupant: |
|
OKLAHOMA CITY |
||
| Owner Name 1: | OPITZ INC |
Parcel PIN#: |
2802-07-162-1010 |
|
| Owner Name 2: | 1/4 section #: |
2802 |
||
| Owner Name 3: | Parent Acct: |
|
||
| Billing Address: | 1777 W VANDAMENT AVE | Tax District: |
|
|
| City, State, Zip | YUKON, OK 73099-4544 | School System: |
Oklahoma City #89 |
|
|
Country: (If noted) |
Land Size: |
1.0000 Square Feet |
||
|
Land Value: 48,072 |
|
|||
|
Sect 1-T12N-R4W Qtr SE |
JAMESTOWN FIRST DEVELOPMENT
Block
000
Lot
000
|
|||
| Full Legal Description: JAMESTOWN FIRST DEVELOPMENT 000 000 UNIT 2 |
| Photo & Sketch (if available) | Comp Sales (ordered by relevancy) |
|
||||||||||||||||||
|
||||||||||||||||||||
| Value History (*The County Treasurer 405-713-1300 posts & collects actual tax amounts. Contact information HERE) | |||||||||||||
|---|---|---|---|---|---|---|---|---|---|---|---|---|---|
| Year | Market Value | Taxable Mkt Value | Gross Assessed | Exemption | Net Assessed | Millage | Est. Tax | Tax Savings | |||||
|
2026 |
288,500 |
242,555 |
26,680 |
0 |
26,680 |
122.90 |
$3,279 |
$621 |
|||||
|
2025 |
287,000 |
231,005 |
25,410 |
0 |
25,410 |
122.90 |
$3,123 |
$757 |
|||||
|
2024 |
293,000 |
220,005 |
24,200 |
0 |
24,200 |
123.89 |
$2,998 |
$995 |
|||||
|
2023 |
275,500 |
209,529 |
23,047 |
0 |
23,047 |
122.82 |
$2,831 |
$891 |
|||||
|
2022 |
221,000 |
199,552 |
21,950 |
0 |
21,950 |
117.63 |
$2,582 |
$278 |
|||||
| Property Account Status/Adjustments/Exemptions | ||
|---|---|---|
| Account # | Exemption Description | Amount |
|
R071621010 |
5% Capped Account |
0 |
| Property Deed Transaction History (Recorded in the County Clerk's Office) | ||||||||||
|---|---|---|---|---|---|---|---|---|---|---|
| Date | Type | Book | Page | Price | Grantor | Grantee | ||||
|
4/8/2015 |
|
Deeds |
$168,000 |
YOUNG JULIE CHAO LEE |
OPITZ INC |
|||||
|
10/15/2002 |
|
Deeds |
$0 |
MASSIE JULIE Y |
YOUNG JULIE CHAO LEE |
|||||
|
7/31/2002 |
|
Deeds |
$130,000 |
KARCHMER PIPE SUPPLY COMPANY INC |
MASSIE JULIE Y |
|||||
|
7/5/1996 |
|
Historical |
$0 |
TINSLEY CLETA M CO TRS |
TINSLEY CLETA M CO TRS |
|||||
|
11/14/1995 |
|
Historical |
$0 |
DAWSON GARY |
KARCHMER PIPE |
|||||
| Last Mailed Notice of Value (N.O.V.) Information/History | ||||||||
|---|---|---|---|---|---|---|---|---|
| Year | Date | Market Value | Taxable Market Value | Gross Assessed | Exemption | Net Assessed | ||
|
2026 |
02/23/2026 |
288,500 |
242,555 |
26,680 |
0 |
26,680 |
||
|
2025 |
02/14/2025 |
287,000 |
231,005 |
25,410 |
0 |
25,410 |
||
|
2024 |
02/13/2024 |
293,000 |
220,005 |
24,200 |
0 |
24,200 |
||
|
2023 |
02/14/2023 |
275,500 |
209,529 |
23,047 |
0 |
23,047 |
||
|
2022 |
03/15/2022 |
221,000 |
199,552 |
21,950 |
0 |
21,950 |
||
| Property Building Permit History | |||||||||||
|---|---|---|---|---|---|---|---|---|---|---|---|
| Issued | Permit # | Provided by | Bldg # | Description | Est Construction Cost | Status | |||||
| No Building Permit records returned. | |||||||||||
| Click button on building number to access detailed information: | ||||||
|---|---|---|---|---|---|---|
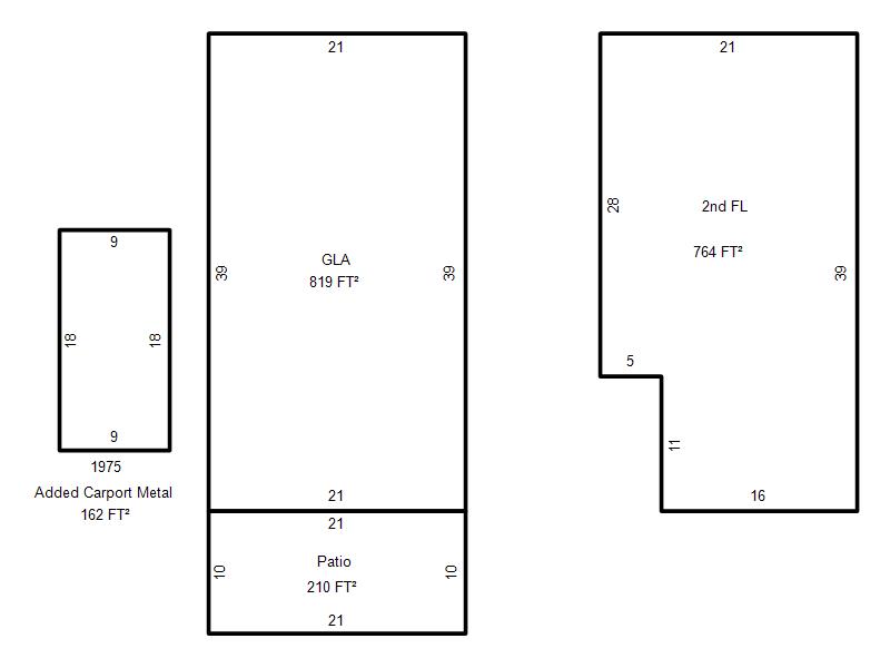
| Bldg # | Vacant/Improved Land | Bldg Description | Year Built | SqFt | # Stories | |
|
1 |
Improved |
Condo <= 3 Stories |
1975 |
1,583 |
2 Stories |
|