|
|
|
| Larry Stein Oklahoma County Assessor (405) 713-1200 - Public Access System |
|
|
|
|
|
|
| Real Property Display - Screen Produced 4/2/2026 7:03:25 AM | ||||
|---|---|---|---|---|
| Account: R112483045 | Type: Residential | Location: |
3117 NW 67TH ST |
|
| Building Name/Occupant: |
|
OKLAHOMA CITY |
||
| Owner Name 1: | KAHRS KATELYN |
Parcel PIN#: |
2802-11-248-3045 |
|
| Owner Name 2: | 1/4 section #: |
2802 |
||
| Owner Name 3: | Parent Acct: |
|
||
| Billing Address: | 3117 NW 67TH ST | Tax District: |
|
|
| City, State, Zip | OKLAHOMA CITY, OK 73116 | School System: |
Oklahoma City #89 |
|
|
Country: (If noted) |
Land Size: |
0.1540 Acres |
||
|
Land Value: 30,195 |
|
|||
|
Sect 1-T12N-R4W Qtr SE |
GRADY MUSGRAVE LAKESIDE
Block
007
Lot
032
|
|||
| Full Legal Description: GRADY MUSGRAVE LAKESIDE 007 032 |
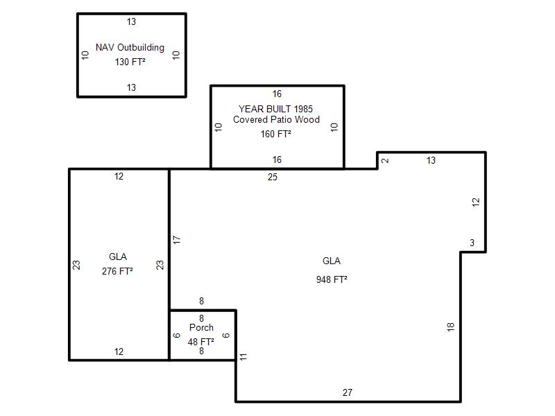
| Photo & Sketch (if available) | Comp Sales (ordered by relevancy) |
|
||||||||||||||||||
|
||||||||||||||||||||
| Value History (*The County Treasurer 405-713-1300 posts & collects actual tax amounts. Contact information HERE) | |||||||||||||
|---|---|---|---|---|---|---|---|---|---|---|---|---|---|
| Year | Market Value | Taxable Mkt Value | Gross Assessed | Exemption | Net Assessed | Millage | Est. Tax | Tax Savings | |||||
|
2026 |
219,500 |
219,500 |
24,145 |
0 |
24,145 |
122.90 |
$2,967 |
$0 |
|||||
|
2025 |
226,000 |
209,475 |
23,042 |
0 |
23,042 |
122.90 |
$2,832 |
$223 |
|||||
|
2024 |
226,000 |
199,500 |
21,945 |
0 |
21,945 |
123.89 |
$2,719 |
$361 |
|||||
|
2023 |
190,000 |
190,000 |
20,900 |
0 |
20,900 |
122.82 |
$2,567 |
$0 |
|||||
|
2022 |
192,000 |
172,725 |
18,999 |
0 |
18,999 |
117.63 |
$2,235 |
$249 |
|||||
| Property Account Status/Adjustments/Exemptions | ||
|---|---|---|
| Account # | Exemption Description | Amount |
|
R112483045 |
5% Capped Account |
0 |
| Property Deed Transaction History (Recorded in the County Clerk's Office) | ||||||||||
|---|---|---|---|---|---|---|---|---|---|---|
| Date | Type | Book | Page | Price | Grantor | Grantee | ||||
|
2/7/2022 |
|
Deeds |
$189,000 |
SERRANDO MELINDA PATRICIA |
KAHRS KATELYN |
|||||
|
7/9/2019 |
|
Deeds |
$162,500 |
KENNISH RILEY |
SERRANO MELINDA PATRICIA |
|||||
|
3/24/2014 |
|
Deeds |
$120,000 |
BECK MICHELE W |
KENNISH RILEY |
|||||
|
1/28/2010 |
|
Deeds |
$97,000 |
FELTON CHRISTINA J |
BECK MICHELE W |
|||||
|
6/17/2005 |
|
Deeds |
$77,000 |
HERNANDEZ ROSA M & SERGIO |
FELTON CHRISTINA J |
|||||
| Last Mailed Notice of Value (N.O.V.) Information/History | ||||||||
|---|---|---|---|---|---|---|---|---|
| Year | Date | Market Value | Taxable Market Value | Gross Assessed | Exemption | Net Assessed | ||
|
2026 |
02/23/2026 |
219,500 |
219,500 |
24,145 |
0 |
24,145 |
||
|
2025 |
02/14/2025 |
226,000 |
209,475 |
23,042 |
0 |
23,042 |
||
|
2024 |
02/13/2024 |
226,000 |
199,500 |
21,945 |
0 |
21,945 |
||
|
2023 |
02/14/2023 |
190,000 |
190,000 |
20,900 |
0 |
20,900 |
||
|
2022 |
03/15/2022 |
192,000 |
172,725 |
18,999 |
0 |
18,999 |
||
| Property Building Permit History | ||||||
|---|---|---|---|---|---|---|
| Issued | Permit # | Provided by | Bldg # | Description | Est Construction Cost | Status |
|
5/6/2002 |
10204808 |
OKLAHOMA CITY |
1 |
Storage Buil |
1,500 |
Inactive |
| Click button on building number to access detailed information: | ||||||
|---|---|---|---|---|---|---|
| Bldg # | Vacant/Improved Land | Bldg Description | Year Built | SqFt | # Stories | |
|
1 |
Improved |
Ranch 1 Story |
1953 |
1,224 |
1 Stories |
|