|
|
|
| Larry Stein Oklahoma County Assessor (405) 713-1200 - Public Access System |
|
|
|
|
|
|
| Real Property Display - Screen Produced 3/14/2026 8:09:45 AM | ||||
|---|---|---|---|---|
| Account: R267071300 | Type: Residential | Location: |
19301 TG NATION WAY |
|
| Building Name/Occupant: |
|
UNINCORPORATED |
||
| Owner Name 1: | MADONNA LEO T & GRACE N TRS |
Parcel PIN#: |
1039-26-707-1300 |
|
| Owner Name 2: | MADONNA FAMILY TRUST | 1/4 section #: |
1039 |
|
| Owner Name 3: | Parent Acct: |
|
||
| Billing Address: | 19301 TG NATION WAY | Tax District: |
|
|
| City, State, Zip | HARRAH, OK 73045-6352 | School System: |
Choctaw #4 |
|
|
Country: (If noted) |
Land Size: |
1.3800 Acres |
||
|
Land Value: 61,410 |
|
|||
|
Sect 10-T11N-R1E Qtr SW |
WOODBRIDGE ESTATES
Block
001
Lot
031
|
|||
| Full Legal Description: WOODBRIDGE ESTATES BLK 001 LOT 031 |
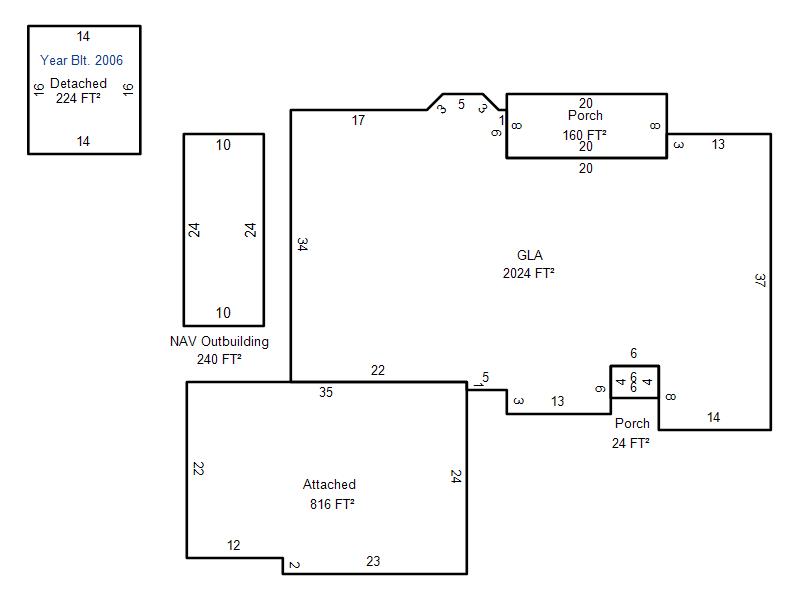
| Photo & Sketch (if available) | Comp Sales (ordered by relevancy) |
|
||||||||||||||||||
|
||||||||||||||||||||
| Value History (*The County Treasurer 405-713-1300 posts & collects actual tax amounts. Contact information HERE) | |||||||||||||
|---|---|---|---|---|---|---|---|---|---|---|---|---|---|
| Year | Market Value | Taxable Mkt Value | Gross Assessed | Exemption | Net Assessed | Millage | Est. Tax | Tax Savings | |||||
|
2025 |
342,000 |
279,383 |
30,732 |
1,000 |
29,732 |
117.21 |
$3,485 |
$925 |
|||||
|
2024 |
339,000 |
271,246 |
29,837 |
1,000 |
28,837 |
116.35 |
$3,355 |
$983 |
|||||
|
2023 |
333,000 |
263,346 |
28,967 |
1,000 |
27,967 |
117.10 |
$3,275 |
$1,014 |
|||||
|
2022 |
278,500 |
255,676 |
28,124 |
1,000 |
27,124 |
115.17 |
$3,124 |
$404 |
|||||
|
2021 |
255,500 |
248,230 |
27,305 |
1,000 |
26,305 |
115.06 |
$3,027 |
$207 |
|||||
| Property Account Status/Adjustments/Exemptions | ||
|---|---|---|
| Account # | Exemption Description | Amount |
|
R267071300 |
3% Cap Homestead |
0 |
|
R267071300 |
Homestead |
1,000 |
| Property Deed Transaction History (Recorded in the County Clerk's Office) | ||||||||||
|---|---|---|---|---|---|---|---|---|---|---|
| Date | Type | Book | Page | Price | Grantor | Grantee | ||||
|
12/18/2014 |
|
Deeds |
$0 |
MADONNA LEO T & GRACE N |
MADONNA LEO T & GRACE N TRS |
|||||
|
4/15/2013 |
|
Deeds |
$216,000 |
HENRY RICHARD H JR & CIRIA |
MADONNA LEO T & GRACE N |
|||||
|
5/18/2012 |
|
Deeds |
$0 |
HENRY RICHARD HOWARD |
HENRY RICHARD H JR & CIRIA |
|||||
|
9/19/2011 |
|
Deeds |
$215,000 |
JONES TOMMIE & LINDA C |
HENRY RICHARD HOWARD |
|||||
|
5/12/2000 |
|
Deeds |
$167,000 |
SWM & SONS INC |
JONES TOMMIE & LINDA C |
|||||
| Last Mailed Notice of Value (N.O.V.) Information/History | ||||||||
|---|---|---|---|---|---|---|---|---|
| Year | Date | Market Value | Taxable Market Value | Gross Assessed | Exemption | Net Assessed | ||
|
2026 |
02/06/2026 |
356,000 |
287,764 |
31,653 |
1,000 |
30,653 |
||
|
2025 |
01/31/2025 |
342,000 |
279,383 |
30,732 |
1,000 |
29,732 |
||
|
2024 |
01/22/2024 |
339,000 |
271,246 |
29,837 |
1,000 |
28,837 |
||
|
2023 |
01/23/2023 |
333,000 |
263,346 |
28,967 |
1,000 |
27,967 |
||
|
2022 |
02/22/2022 |
278,500 |
255,676 |
28,124 |
1,000 |
27,124 |
||
| Property Building Permit History | ||||||
|---|---|---|---|---|---|---|
| Issued | Permit # | Provided by | Bldg # | Description | Est Construction Cost | Status |
|
11/12/1999 |
10278541 |
COUNTY |
1 |
Main Dwellin |
102,725 |
Inactive |
| Click button on building number to access detailed information: | ||||||
|---|---|---|---|---|---|---|
| Bldg # | Vacant/Improved Land | Bldg Description | Year Built | SqFt | # Stories | |
|
1 |
Improved |
Ranch 1 Story |
2000 |
2,024 |
1 Stories |
|