|
|
|
| Larry Stein Oklahoma County Assessor (405) 713-1200 - Public Access System |
|
|
|
|
|
|
| Real Property Display - Screen Produced 3/24/2026 5:31:19 AM | ||||
|---|---|---|---|---|
| Account: R142241400 | Type: Residential | Location: |
6705 N SHAWNEE AVE |
|
| Building Name/Occupant: |
|
OKLAHOMA CITY |
||
| Owner Name 1: | IRWIN JAMES ELY TRS |
Parcel PIN#: |
2806-14-224-1400 |
|
| Owner Name 2: | IRWIN MARY ELLEN LIV TRUST | 1/4 section #: |
2806 |
|
| Owner Name 3: | Parent Acct: |
|
||
| Billing Address: | 6705 N SHAWNEE AVE | Tax District: |
|
|
| City, State, Zip | OKLAHOMA CITY, OK 73116-1802 | School System: |
Putnam City #1 |
|
|
Country: (If noted) |
Land Size: |
0.2066 Acres |
||
|
Land Value: 50,400 |
|
|||
|
Sect 2-T12N-R4W Qtr SE |
EDGEWATER 4TH
Block
010
Lot
013
|
|||
| Full Legal Description: EDGEWATER 4TH 010 013 |
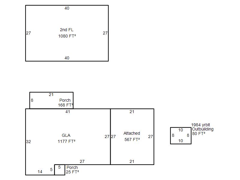
| Photo & Sketch (if available) | Comp Sales (ordered by relevancy) |
|
||||||||||||||||||
|
||||||||||||||||||||
| Value History (*The County Treasurer 405-713-1300 posts & collects actual tax amounts. Contact information HERE) | |||||||||||||
|---|---|---|---|---|---|---|---|---|---|---|---|---|---|
| Year | Market Value | Taxable Mkt Value | Gross Assessed | Exemption | Net Assessed | Millage | Est. Tax | Tax Savings | |||||
|
2025 |
293,000 |
247,196 |
27,190 |
0 |
27,190 |
123.17 |
$3,349 |
$621 |
|||||
|
2024 |
292,000 |
235,425 |
25,896 |
0 |
25,896 |
122.30 |
$3,167 |
$761 |
|||||
|
2023 |
280,000 |
224,215 |
24,663 |
0 |
24,663 |
121.91 |
$3,007 |
$748 |
|||||
|
2022 |
254,500 |
213,539 |
23,488 |
0 |
23,488 |
123.41 |
$2,899 |
$556 |
|||||
|
2021 |
217,000 |
203,371 |
22,370 |
0 |
22,370 |
122.23 |
$2,734 |
$183 |
|||||
| Property Account Status/Adjustments/Exemptions | ||
|---|---|---|
| Account # | Exemption Description | Amount |
|
R142241400 |
5% Capped Account |
0 |
| Property Deed Transaction History (Recorded in the County Clerk's Office) | |||||||
|---|---|---|---|---|---|---|---|
| Date | Type | Book | Page | Price | Grantor | Grantee | |
|
3/25/2025 |
|
Hmstd Off & |
$0 |
IRWIN MARY ELLEN TRS |
IRWIN JAMES ELY TRS |
||
|
1/22/2018 |
|
Hmstd Off & |
$0 |
IRWIN JAMES H LIVING TRUST |
IRWIN MARY ELLEN TRS |
||
|
2/24/1994 |
|
Historical |
$0 |
IRWIN JAMES H & MARY E |
IRWIN JAMES H LIVING TRUST |
||
|
11/11/1911 |
|
Historical |
$0 |
|
IRWIN JAMES H & MARY E |
||
| Last Mailed Notice of Value (N.O.V.) Information/History | ||||||||
|---|---|---|---|---|---|---|---|---|
| Year | Date | Market Value | Taxable Market Value | Gross Assessed | Exemption | Net Assessed | ||
|
2026 |
02/23/2026 |
284,500 |
259,555 |
28,550 |
0 |
28,550 |
||
|
2025 |
02/14/2025 |
293,000 |
247,196 |
27,190 |
0 |
27,190 |
||
|
2024 |
02/13/2024 |
292,000 |
235,425 |
25,896 |
0 |
25,896 |
||
|
2023 |
02/14/2023 |
280,000 |
224,215 |
24,663 |
0 |
24,663 |
||
|
2022 |
03/15/2022 |
254,500 |
213,539 |
23,488 |
0 |
23,488 |
||
| Property Building Permit History | ||||||
|---|---|---|---|---|---|---|
| Issued | Permit # | Provided by | Bldg # | Description | Est Construction Cost | Status |
|
9/10/2001 |
10235784 |
OKLAHOMA CITY |
1 |
Fire Remodel |
65,000 |
Inactive |
|
8/30/2001 |
10235785 |
OKLAHOMA CITY |
1 |
Burn - Trip |
70,000 |
Inactive |
| Click button on building number to access detailed information: | ||||||
|---|---|---|---|---|---|---|
| Bldg # | Vacant/Improved Land | Bldg Description | Year Built | SqFt | # Stories | |
|
1 |
Improved |
2 Story |
1963 |
2,257 |
2 Stories |
|