|
|
|
| Larry Stein Oklahoma County Assessor (405) 713-1200 - Public Access System |
|
|
|
|
|
|
| Real Property Display - Screen Produced 3/20/2026 4:20:08 AM | ||||
|---|---|---|---|---|
| Account: R142431530 | Type: Residential | Location: |
3825 NW 68TH ST |
|
| Building Name/Occupant: |
|
OKLAHOMA CITY |
||
| Owner Name 1: | LEWIS SHARON A REV LIV TRUST |
Parcel PIN#: |
2806-14-243-1530 |
|
| Owner Name 2: | 1/4 section #: |
2806 |
||
| Owner Name 3: | Parent Acct: |
|
||
| Billing Address: | 3825 NW 68TH ST | Tax District: |
|
|
| City, State, Zip | OKLAHOMA CITY, OK 73116-1816 | School System: |
Putnam City #1 |
|
|
Country: (If noted) |
Land Size: |
0.2204 Acres |
||
|
Land Value: 53,760 |
|
|||
|
Sect 2-T12N-R4W Qtr SE |
EDGEWATER 5TH
Block
013
Lot
040
|
|||
| Full Legal Description: EDGEWATER 5TH 013 040 |
| Photo & Sketch (if available) | Comp Sales (ordered by relevancy) |
|
||||||||||||||||||
|
||||||||||||||||||||
| Value History (*The County Treasurer 405-713-1300 posts & collects actual tax amounts. Contact information HERE) | |||||||||||||
|---|---|---|---|---|---|---|---|---|---|---|---|---|---|
| Year | Market Value | Taxable Mkt Value | Gross Assessed | Exemption | Net Assessed | Millage | Est. Tax | Tax Savings | |||||
|
2025 |
278,000 |
213,994 |
23,538 |
1,000 |
22,538 |
123.17 |
$2,776 |
$990 |
|||||
|
2024 |
278,000 |
207,762 |
22,853 |
1,000 |
21,853 |
122.30 |
$2,673 |
$1,067 |
|||||
|
2023 |
268,500 |
201,711 |
22,187 |
1,000 |
21,187 |
121.91 |
$2,583 |
$1,018 |
|||||
|
2022 |
242,500 |
195,836 |
21,541 |
1,000 |
20,541 |
123.41 |
$2,535 |
$757 |
|||||
|
2021 |
207,000 |
190,133 |
20,914 |
1,000 |
19,914 |
122.23 |
$2,434 |
$349 |
|||||
| Property Account Status/Adjustments/Exemptions | ||
|---|---|---|
| Account # | Exemption Description | Amount |
|
R142431530 |
3% Cap Homestead |
0 |
|
R142431530 |
Homestead |
1,000 |
| Property Deed Transaction History (Recorded in the County Clerk's Office) | ||||||||||
|---|---|---|---|---|---|---|---|---|---|---|
| Date | Type | Book | Page | Price | Grantor | Grantee | ||||
|
10/3/2003 |
|
Deeds |
$0 |
LEWIS SHARON A |
LEWIS SHARON A REV LIV TRUST |
|||||
|
10/2/2003 |
|
Deeds |
$0 |
LEWIS SHARON A TRS LEWIS SHARON A REV TRUST |
LEWIS SHARON A |
|||||
|
4/29/2003 |
|
Deeds |
$0 |
LEWIS DALE K & SHARON A |
LEWIS SHARON A |
|||||
|
4/29/2003 |
|
Deeds |
$0 |
LEWIS SHARON A |
LEWIS SHARON A TRS LEWIS SHARON A REV TRUST |
|||||
|
12/13/1999 |
|
Deeds |
$0 |
LEWIS DALE K |
LEWIS SHARON A |
|||||
| Last Mailed Notice of Value (N.O.V.) Information/History | ||||||||
|---|---|---|---|---|---|---|---|---|
| Year | Date | Market Value | Taxable Market Value | Gross Assessed | Exemption | Net Assessed | ||
|
2026 |
02/23/2026 |
271,000 |
220,413 |
24,245 |
1,000 |
23,245 |
||
|
2025 |
02/14/2025 |
278,000 |
213,994 |
23,538 |
1,000 |
22,538 |
||
|
2024 |
02/13/2024 |
278,000 |
207,762 |
22,853 |
1,000 |
21,853 |
||
|
2023 |
02/14/2023 |
268,500 |
201,711 |
22,187 |
1,000 |
21,187 |
||
|
2022 |
03/15/2022 |
242,500 |
195,836 |
21,541 |
1,000 |
20,541 |
||
| Property Building Permit History | ||||||
|---|---|---|---|---|---|---|
| Issued | Permit # | Provided by | Bldg # | Description | Est Construction Cost | Status |
|
6/3/1997 |
10236168 |
OKLAHOMA CITY |
1 |
Add On |
5,840 |
Inactive |
| Click button on building number to access detailed information: | ||||||
|---|---|---|---|---|---|---|
| Bldg # | Vacant/Improved Land | Bldg Description | Year Built | SqFt | # Stories | |
|
1 |
Improved |
Ranch 1 Story |
1964 |
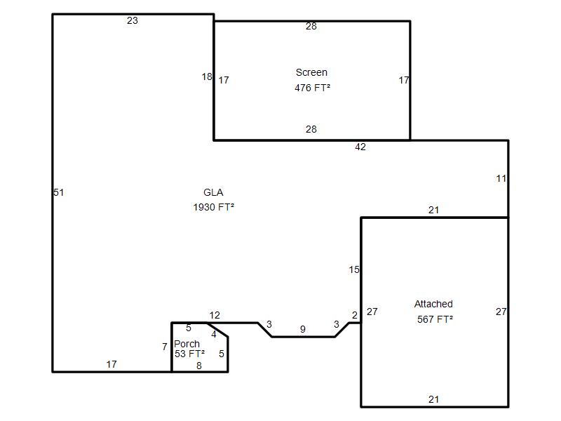
1,930 |
1 Stories |
|