|
|
|
| Larry Stein Oklahoma County Assessor (405) 713-1200 - Public Access System |
|
|
|
|
|
|
| Real Property Display - Screen Produced 4/4/2026 5:42:53 AM | ||||
|---|---|---|---|---|
| Account: R140181360 | Type: Residential | Location: |
4708 NW 74TH ST |
|
| Building Name/Occupant: |
|
OKLAHOMA CITY |
||
| Owner Name 1: | GRAY MICHAEL & APRIL |
Parcel PIN#: |
2809-14-018-1360 |
|
| Owner Name 2: | 1/4 section #: |
2809 |
||
| Owner Name 3: | Parent Acct: |
|
||
| Billing Address: | 4708 NW 74TH ST | Tax District: |
|
|
| City, State, Zip | OKLAHOMA CITY, OK 73132-5309 | School System: |
Putnam City #1 |
|
|
Country: (If noted) |
Land Size: |
0.2439 Acres |
||
|
Land Value: 58,443 |
|
|||
|
Sect 3-T12N-R4W Qtr NE |
EDGEWATER PARK ADD
Block
004
Lot
000
|
|||
| Full Legal Description: EDGEWATER PARK ADD 004 000 ALL OF LOT 11 & W1FT OF LOT 12 |
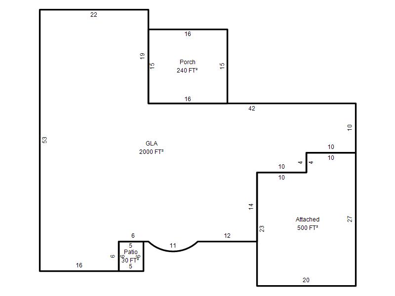
| Photo & Sketch (if available) | Comp Sales (ordered by relevancy) |
|
||||||||||||||||||
|
||||||||||||||||||||
| Value History (*The County Treasurer 405-713-1300 posts & collects actual tax amounts. Contact information HERE) | |||||||||||||
|---|---|---|---|---|---|---|---|---|---|---|---|---|---|
| Year | Market Value | Taxable Mkt Value | Gross Assessed | Exemption | Net Assessed | Millage | Est. Tax | Tax Savings | |||||
|
2026 |
252,500 |
193,179 |
21,248 |
1,000 |
20,248 |
123.17 |
$2,494 |
$927 |
|||||
|
2025 |
253,500 |
187,553 |
20,630 |
1,000 |
19,630 |
123.17 |
$2,418 |
$1,017 |
|||||
|
2024 |
252,000 |
182,091 |
20,029 |
1,000 |
19,029 |
122.30 |
$2,327 |
$1,063 |
|||||
|
2023 |
230,500 |
176,788 |
19,446 |
1,000 |
18,446 |
121.91 |
$2,249 |
$842 |
|||||
|
2022 |
207,500 |
171,639 |
18,878 |
1,000 |
17,878 |
123.41 |
$2,207 |
$610 |
|||||
| Property Account Status/Adjustments/Exemptions | ||
|---|---|---|
| Account # | Exemption Description | Amount |
|
R140181360 |
3% Cap Homestead |
0 |
|
R140181360 |
Homestead |
1,000 |
| Property Deed Transaction History (Recorded in the County Clerk's Office) | ||||||||||
|---|---|---|---|---|---|---|---|---|---|---|
| Date | Type | Book | Page | Price | Grantor | Grantee | ||||
|
7/18/2016 |
|
Deeds |
$0 |
TEETER CLARENCE R & BEULAH E LIV TRUST |
HUDGINS ROBERT JAY SUC TRS ETAL |
|||||
|
7/18/2016 |
|
Deeds |
$52,000 |
HUDGINS ROBERT JAY SUC TRS ETAL TEETER CLARENCE R & BEULAH E |
GRAY MICHAEL & APRIL |
|||||
|
7/18/2016 |
|
Deeds |
$52,000 |
MCLAUGHLIN CLARICE ANN & ROBERT D |
GRAY MICHAEL & APRIL |
|||||
|
7/18/2016 |
|
Deeds |
$52,000 |
SCOTT WILSON R JR |
GRAY MICHAEL & APRIL |
|||||
|
5/16/2016 |
|
Hmstd Off & |
$0 |
TEETER CLARENCE R & BEULAH E TRS ETAL TEETER CLARENCE R & BE |
HUDGINS ROBERT JAY SUC TRS ETAL TEETER CLARENCE R & BEULAH E |
|||||
| Last Mailed Notice of Value (N.O.V.) Information/History | ||||||||
|---|---|---|---|---|---|---|---|---|
| Year | Date | Market Value | Taxable Market Value | Gross Assessed | Exemption | Net Assessed | ||
|
2026 |
02/23/2026 |
252,500 |
193,179 |
21,248 |
1,000 |
20,248 |
||
|
2025 |
02/14/2025 |
253,500 |
187,553 |
20,630 |
1,000 |
19,630 |
||
|
2024 |
02/13/2024 |
252,000 |
182,091 |
20,029 |
1,000 |
19,029 |
||
|
2023 |
02/14/2023 |
230,500 |
176,788 |
19,446 |
1,000 |
18,446 |
||
|
2022 |
03/15/2022 |
207,500 |
171,639 |
18,878 |
1,000 |
17,878 |
||
| Property Building Permit History | |||||||||||
|---|---|---|---|---|---|---|---|---|---|---|---|
| Issued | Permit # | Provided by | Bldg # | Description | Est Construction Cost | Status | |||||
| No Building Permit records returned. | |||||||||||
| Click button on building number to access detailed information: | ||||||
|---|---|---|---|---|---|---|
| Bldg # | Vacant/Improved Land | Bldg Description | Year Built | SqFt | # Stories | |
|
1 |
Improved |
Ranch 1 Story |
1968 |
2,000 |
1 Stories |
|