|
|
|
| Larry Stein Oklahoma County Assessor (405) 713-1200 - Public Access System |
|
|
|
|
|
|
| Real Property Display - Screen Produced 2/27/2026 9:45:15 PM | ||||
|---|---|---|---|---|
| Account: R140143585 | Type: Residential | Location: |
6204 GREENWOOD LN |
|
| Building Name/Occupant: |
|
OKLAHOMA CITY |
||
| Owner Name 1: | BOTKIN STEVEN W & JILL L |
Parcel PIN#: |
2813-14-014-3585 |
|
| Owner Name 2: | 1/4 section #: |
2813 |
||
| Owner Name 3: | Parent Acct: |
|
||
| Billing Address: | 6204 GREENWOOD LN | Tax District: |
|
|
| City, State, Zip | OKLAHOMA CITY, OK 73132-5629 | School System: |
Putnam City #1 |
|
|
Country: (If noted) |
Land Size: |
0.2844 Acres |
||
|
Land Value: 51,934 |
|
|||
|
Sect 4-T12N-R4W Qtr NE |
BROOKHAVEN ESTATES
Block
010
Lot
009
|
|||
| Full Legal Description: BROOKHAVEN ESTATES 010 009 |
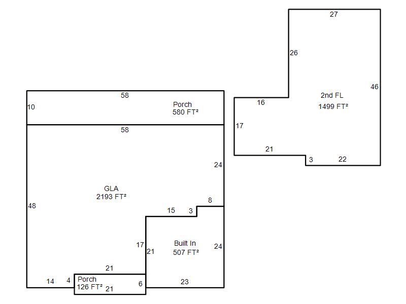
| Photo & Sketch (if available) | Comp Sales (ordered by relevancy) |
|
||||||||||||||||||
|
||||||||||||||||||||
| Value History (*The County Treasurer 405-713-1300 posts & collects actual tax amounts. Contact information HERE) | |||||||||||||
|---|---|---|---|---|---|---|---|---|---|---|---|---|---|
| Year | Market Value | Taxable Mkt Value | Gross Assessed | Exemption | Net Assessed | Millage | Est. Tax | Tax Savings | |||||
|
2025 |
424,500 |
318,202 |
35,001 |
1,000 |
34,001 |
123.17 |
$4,188 |
$1,563 |
|||||
|
2024 |
433,500 |
308,934 |
33,981 |
1,000 |
32,981 |
122.30 |
$4,034 |
$1,798 |
|||||
|
2023 |
402,500 |
299,936 |
32,992 |
1,000 |
31,992 |
121.91 |
$3,900 |
$1,497 |
|||||
|
2022 |
354,500 |
291,200 |
32,030 |
1,000 |
31,030 |
123.41 |
$3,830 |
$983 |
|||||
|
2021 |
303,000 |
282,719 |
31,098 |
1,000 |
30,098 |
122.23 |
$3,679 |
$395 |
|||||
| Property Account Status/Adjustments/Exemptions | ||
|---|---|---|
| Account # | Exemption Description | Amount |
|
R140143585 |
Homestead |
1,000 |
|
R140143585 |
3% Cap Homestead |
0 |
| Property Deed Transaction History (Recorded in the County Clerk's Office) | |||||||
|---|---|---|---|---|---|---|---|
| Date | Type | Book | Page | Price | Grantor | Grantee | |
|
5/16/2005 |
|
Deeds |
$38,500 |
BILODEAU DAVID L TRS BILODEAU DAVID L LIVING TRUST |
BOTKIN STEVEN W & JILL L |
||
|
7/16/2004 |
|
Deeds |
$0 |
BILODEAU DAVID |
BILODEAU DAVID L TRS BILODEAU DAVID L LIVING TRUST |
||
|
11/24/2003 |
|
Deeds |
$30,000 |
HEMRY LINDA A |
BILODEAU DAVID |
||
|
4/27/1988 |
|
Historical |
$0 |
|
HEMRY LINDA A |
||
| Last Mailed Notice of Value (N.O.V.) Information/History | ||||||||
|---|---|---|---|---|---|---|---|---|
| Year | Date | Market Value | Taxable Market Value | Gross Assessed | Exemption | Net Assessed | ||
|
2026 |
02/23/2026 |
418,000 |
327,748 |
36,052 |
1,000 |
35,052 |
||
|
2025 |
02/14/2025 |
424,500 |
318,202 |
35,001 |
1,000 |
34,001 |
||
|
2024 |
02/13/2024 |
433,500 |
308,934 |
33,981 |
1,000 |
32,981 |
||
|
2023 |
02/14/2023 |
402,500 |
299,936 |
32,992 |
1,000 |
31,992 |
||
|
2022 |
03/15/2022 |
354,500 |
291,200 |
32,030 |
1,000 |
31,030 |
||
| Property Building Permit History | ||||||
|---|---|---|---|---|---|---|
| Issued | Permit # | Provided by | Bldg # | Description | Est Construction Cost | Status |
|
1/11/2007 |
10331659 |
OKLAHOMA CITY |
1 |
Main Dwellin |
308,280 |
Inactive |
| Click button on building number to access detailed information: | ||||||
|---|---|---|---|---|---|---|
| Bldg # | Vacant/Improved Land | Bldg Description | Year Built | SqFt | # Stories | |
|
1 |
Improved |
2 Story |
2007 |
3,692 |
2 Stories |
|