|
|
|
| Larry Stein Oklahoma County Assessor (405) 713-1200 - Public Access System |
|
|
|
|
|
|
| Real Property Display - Screen Produced 2/28/2026 2:55:13 AM | ||||
|---|---|---|---|---|
| Account: R140481010 | Type: Residential | Location: |
7800 BROOKSIDE DR |
|
| Building Name/Occupant: |
|
OKLAHOMA CITY |
||
| Owner Name 1: | SATHY SON REV TRIST |
Parcel PIN#: |
2813-14-048-1010 |
|
| Owner Name 2: | NGUYEN THUY REV TRUST | 1/4 section #: |
2813 |
|
| Owner Name 3: | Parent Acct: |
|
||
| Billing Address: | 7800 BROOKSIDE DR | Tax District: |
|
|
| City, State, Zip | OKLAHOMA CITY, OK 73132-5645 | School System: |
Putnam City #1 |
|
|
Country: (If noted) |
Land Size: |
0.1928 Acres |
||
|
Land Value: 40,320 |
|
|||
|
Sect 4-T12N-R4W Qtr NE |
ROBERTS BROOKHAVEN
Block
001
Lot
002
|
|||
| Full Legal Description: ROBERTS BROOKHAVEN 001 002 |
| Photo & Sketch (if available) | Comp Sales (ordered by relevancy) |
|
||||||||||||||||||
|
||||||||||||||||||||
| Value History (*The County Treasurer 405-713-1300 posts & collects actual tax amounts. Contact information HERE) | |||||||||||||
|---|---|---|---|---|---|---|---|---|---|---|---|---|---|
| Year | Market Value | Taxable Mkt Value | Gross Assessed | Exemption | Net Assessed | Millage | Est. Tax | Tax Savings | |||||
|
2025 |
248,000 |
181,239 |
19,935 |
1,000 |
18,935 |
123.17 |
$2,332 |
$1,028 |
|||||
|
2024 |
246,000 |
175,961 |
19,354 |
1,000 |
18,354 |
122.30 |
$2,245 |
$1,065 |
|||||
|
2023 |
231,000 |
170,836 |
18,791 |
1,000 |
17,791 |
121.91 |
$2,169 |
$929 |
|||||
|
2022 |
204,000 |
165,861 |
18,243 |
1,000 |
17,243 |
123.41 |
$2,128 |
$641 |
|||||
|
2021 |
176,500 |
161,031 |
17,712 |
1,000 |
16,712 |
122.23 |
$2,043 |
$330 |
|||||
| Property Account Status/Adjustments/Exemptions | ||
|---|---|---|
| Account # | Exemption Description | Amount |
|
R140481010 |
3% Cap Homestead |
0 |
|
R140481010 |
Homestead |
1,000 |
| Property Deed Transaction History (Recorded in the County Clerk's Office) | |||||||
|---|---|---|---|---|---|---|---|
| Date | Type | Book | Page | Price | Grantor | Grantee | |
|
9/11/2025 |
|
Deeds |
$0 |
SON SATHY |
SATHY SON REV TRIST |
||
|
12/20/2004 |
|
Deeds |
$105,000 |
SHUPE DEBORAH K & ERIC E |
SON SATHY |
||
|
2/24/2003 |
|
Deeds |
$105,000 |
RANNEY RALPH G & SHIRLEY |
SHUPE DEBORAH K & ERIC E |
||
|
10/1/1984 |
|
Historical |
$87,000 |
|
RANNEY RALPH G & SHIRLEY |
||
| Last Mailed Notice of Value (N.O.V.) Information/History | ||||||||
|---|---|---|---|---|---|---|---|---|
| Year | Date | Market Value | Taxable Market Value | Gross Assessed | Exemption | Net Assessed | ||
|
2026 |
02/23/2026 |
241,000 |
186,676 |
20,534 |
1,000 |
19,534 |
||
|
2025 |
02/14/2025 |
248,000 |
181,239 |
19,935 |
1,000 |
18,935 |
||
|
2024 |
02/13/2024 |
246,000 |
175,961 |
19,354 |
1,000 |
18,354 |
||
|
2023 |
02/14/2023 |
231,000 |
170,836 |
18,791 |
1,000 |
17,791 |
||
|
2022 |
03/15/2022 |
204,000 |
165,861 |
18,243 |
1,000 |
17,243 |
||
| Property Building Permit History | |||||||||||
|---|---|---|---|---|---|---|---|---|---|---|---|
| Issued | Permit # | Provided by | Bldg # | Description | Est Construction Cost | Status | |||||
| No Building Permit records returned. | |||||||||||
| Click button on building number to access detailed information: | ||||||
|---|---|---|---|---|---|---|
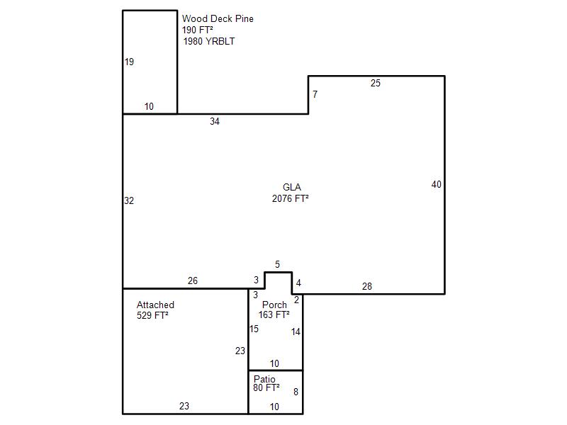
| Bldg # | Vacant/Improved Land | Bldg Description | Year Built | SqFt | # Stories | |
|
1 |
Improved |
Ranch 1 Story |
1977 |
2,076 |
1 Stories |
|