|
|
|
| Larry Stein Oklahoma County Assessor (405) 713-1200 - Public Access System |
|
|
|
|
|
|
| Real Property Display - Screen Produced 2/28/2026 2:55:14 AM | ||||
|---|---|---|---|---|
| Account: R140481080 | Type: Residential | Location: |
7604 BROOKSIDE DR |
|
| Building Name/Occupant: |
|
OKLAHOMA CITY |
||
| Owner Name 1: | ALLEN TERRY LEE TRS |
Parcel PIN#: |
2813-14-048-1080 |
|
| Owner Name 2: | ALLEN TERRY L REV TRUST | 1/4 section #: |
2813 |
|
| Owner Name 3: | Parent Acct: |
|
||
| Billing Address: | 5100 CARRINGTON PL | Tax District: |
|
|
| City, State, Zip | OKLAHOMA CITY, OK 73131 | School System: |
Putnam City #1 |
|
|
Country: (If noted) |
Land Size: |
0.1928 Acres |
||
|
Land Value: 40,320 |
|
|||
|
Sect 4-T12N-R4W Qtr NE |
ROBERTS BROOKHAVEN
Block
001
Lot
009
|
|||
| Full Legal Description: ROBERTS BROOKHAVEN 001 009 |
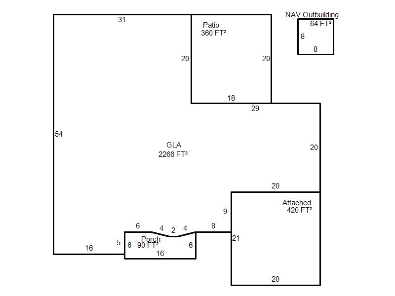
| Photo & Sketch (if available) | Comp Sales (ordered by relevancy) |
|
||||||||||||||||||
|
||||||||||||||||||||
| Value History (*The County Treasurer 405-713-1300 posts & collects actual tax amounts. Contact information HERE) | |||||||||||||
|---|---|---|---|---|---|---|---|---|---|---|---|---|---|
| Year | Market Value | Taxable Mkt Value | Gross Assessed | Exemption | Net Assessed | Millage | Est. Tax | Tax Savings | |||||
|
2025 |
244,500 |
206,117 |
22,672 |
0 |
22,672 |
123.17 |
$2,793 |
$520 |
|||||
|
2024 |
241,500 |
196,302 |
21,593 |
0 |
21,593 |
122.30 |
$2,641 |
$608 |
|||||
|
2023 |
227,000 |
186,955 |
20,564 |
0 |
20,564 |
121.91 |
$2,507 |
$537 |
|||||
|
2022 |
199,500 |
178,053 |
19,585 |
0 |
19,585 |
123.41 |
$2,417 |
$291 |
|||||
|
2021 |
172,500 |
169,575 |
18,653 |
0 |
18,653 |
122.23 |
$2,280 |
$39 |
|||||
| Property Account Status/Adjustments/Exemptions | ||||||
|---|---|---|---|---|---|---|
| Account # | Exemption Description | Amount | ||||
| No adjustment/exemption records returned. | ||||||
| Property Deed Transaction History (Recorded in the County Clerk's Office) | ||||||||||
|---|---|---|---|---|---|---|---|---|---|---|
| Date | Type | Book | Page | Price | Grantor | Grantee | ||||
|
3/24/2021 |
|
Hmstd Off & |
$ |
ALLEN TERRY |
ALLEN TERRY LEE TRS |
|||||
|
5/3/2019 |
|
Deeds |
$163,000 |
OPENE INVESTMENT SOLUTIONS LLC |
ALLEN TERRY |
|||||
|
10/2/2018 |
|
Deeds |
$73,000 |
NATIONSTAR MORTGAGE LLC |
OPENE INVESTMENT SOLUTIONS LLC |
|||||
|
8/27/2018 |
|
Hmstd Off & |
$0 |
ORCUTT JAMES A JR & MARY E TRS |
NATIONSTAR MORTGAGE LLC |
|||||
|
4/29/2014 |
|
Hmstd Off & |
$0 |
ORCUTT JAMES ALDEN JR ORCUTT MARY EVELYN |
ORCUTT JAMES A JR & MARY E TRS |
|||||
| Last Mailed Notice of Value (N.O.V.) Information/History | ||||||||
|---|---|---|---|---|---|---|---|---|
| Year | Date | Market Value | Taxable Market Value | Gross Assessed | Exemption | Net Assessed | ||
|
2026 |
02/23/2026 |
237,000 |
216,422 |
23,805 |
0 |
23,805 |
||
|
2025 |
02/14/2025 |
244,500 |
206,117 |
22,672 |
0 |
22,672 |
||
|
2024 |
02/13/2024 |
241,500 |
196,302 |
21,593 |
0 |
21,593 |
||
|
2023 |
02/14/2023 |
227,000 |
186,955 |
20,564 |
0 |
20,564 |
||
|
2022 |
03/15/2022 |
199,500 |
178,053 |
19,585 |
0 |
19,585 |
||
| Property Building Permit History | |||||||||||
|---|---|---|---|---|---|---|---|---|---|---|---|
| Issued | Permit # | Provided by | Bldg # | Description | Est Construction Cost | Status | |||||
| No Building Permit records returned. | |||||||||||
| Click button on building number to access detailed information: | ||||||
|---|---|---|---|---|---|---|
| Bldg # | Vacant/Improved Land | Bldg Description | Year Built | SqFt | # Stories | |
|
1 |
Improved |
Ranch 1 Story |
1971 |
2,266 |
1 Stories |
|