|
|
|
| Larry Stein Oklahoma County Assessor (405) 713-1200 - Public Access System |
|
|
|
|
|
|
| Real Property Display - Screen Produced 2/28/2026 2:53:51 AM | ||||
|---|---|---|---|---|
| Account: R140481210 | Type: Residential | Location: |
7609 BROOKSIDE DR |
|
| Building Name/Occupant: |
|
OKLAHOMA CITY |
||
| Owner Name 1: | PHAN COT M |
Parcel PIN#: |
2813-14-048-1210 |
|
| Owner Name 2: | BICH LAN THI | 1/4 section #: |
2813 |
|
| Owner Name 3: | Parent Acct: |
|
||
| Billing Address: | 7609 BROOKSIDE DR | Tax District: |
|
|
| City, State, Zip | OKLAHOMA CITY, OK 73132-5642 | School System: |
Putnam City #1 |
|
|
Country: (If noted) |
Land Size: |
0.2066 Acres |
||
|
Land Value: 43,200 |
|
|||
|
Sect 4-T12N-R4W Qtr NE |
ROBERTS BROOKHAVEN
Block
002
Lot
001
|
|||
| Full Legal Description: ROBERTS BROOKHAVEN 002 001 |
| Photo & Sketch (if available) | Comp Sales (ordered by relevancy) |
|
||||||||||||||||||
|
||||||||||||||||||||
| Value History (*The County Treasurer 405-713-1300 posts & collects actual tax amounts. Contact information HERE) | |||||||||||||
|---|---|---|---|---|---|---|---|---|---|---|---|---|---|
| Year | Market Value | Taxable Mkt Value | Gross Assessed | Exemption | Net Assessed | Millage | Est. Tax | Tax Savings | |||||
|
2025 |
265,500 |
224,625 |
24,708 |
0 |
24,708 |
123.17 |
$3,043 |
$554 |
|||||
|
2024 |
264,500 |
213,929 |
23,531 |
0 |
23,531 |
122.30 |
$2,878 |
$680 |
|||||
|
2023 |
250,000 |
203,742 |
22,411 |
0 |
22,411 |
121.91 |
$2,732 |
$620 |
|||||
|
2022 |
219,000 |
194,040 |
21,344 |
0 |
21,344 |
123.41 |
$2,634 |
$339 |
|||||
|
2021 |
188,000 |
184,800 |
20,328 |
0 |
20,328 |
122.23 |
$2,485 |
$43 |
|||||
| Property Account Status/Adjustments/Exemptions | ||
|---|---|---|
| Account # | Exemption Description | Amount |
|
R140481210 |
5% Capped Account |
0 |
| Property Deed Transaction History (Recorded in the County Clerk's Office) | ||||||||||
|---|---|---|---|---|---|---|---|---|---|---|
| Date | Type | Book | Page | Price | Grantor | Grantee | ||||
|
12/31/2012 |
|
Deeds |
$136,000 |
WILLIAMS BLANCA |
PHAN COT M |
|||||
|
12/31/2012 |
|
Deeds |
$0 |
PHAN COT M |
PHAN COT M |
|||||
|
5/27/2004 |
|
Deeds |
$138,500 |
CLINTON BETTY I |
WILLIAMS BLANCA |
|||||
|
3/10/1998 |
|
Historical |
$0 |
CLINTON HARVEY L & BETTY I |
CLINTON BETTY I |
|||||
|
10/29/1992 |
|
Historical |
$102,000 |
CARROLL ENTERPRISES INC |
CLINTON HARVEY L & BETTY I |
|||||
| Last Mailed Notice of Value (N.O.V.) Information/History | ||||||||
|---|---|---|---|---|---|---|---|---|
| Year | Date | Market Value | Taxable Market Value | Gross Assessed | Exemption | Net Assessed | ||
|
2026 |
02/23/2026 |
258,500 |
235,856 |
25,943 |
0 |
25,943 |
||
|
2025 |
02/14/2025 |
265,500 |
224,625 |
24,708 |
0 |
24,708 |
||
|
2024 |
02/13/2024 |
264,500 |
213,929 |
23,531 |
0 |
23,531 |
||
|
2023 |
02/14/2023 |
250,000 |
203,742 |
22,411 |
0 |
22,411 |
||
|
2022 |
03/15/2022 |
219,000 |
194,040 |
21,344 |
0 |
21,344 |
||
| Property Building Permit History | |||||||||||
|---|---|---|---|---|---|---|---|---|---|---|---|
| Issued | Permit # | Provided by | Bldg # | Description | Est Construction Cost | Status | |||||
| No Building Permit records returned. | |||||||||||
| Click button on building number to access detailed information: | ||||||
|---|---|---|---|---|---|---|
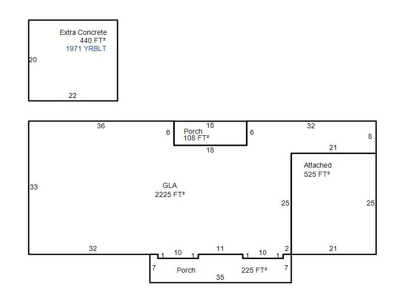
| Bldg # | Vacant/Improved Land | Bldg Description | Year Built | SqFt | # Stories | |
|
1 |
Improved |
Ranch 1 Story |
1971 |
2,225 |
1 Stories |
|