|
|
|
| Larry Stein Oklahoma County Assessor (405) 713-1200 - Public Access System |
|
|
|
|
|
|
| Real Property Display - Screen Produced 2/28/2026 2:55:13 AM | ||||
|---|---|---|---|---|
| Account: R140481300 | Type: Residential | Location: |
6205 NW 75TH ST |
|
| Building Name/Occupant: |
|
OKLAHOMA CITY |
||
| Owner Name 1: | SIMMONS INVESTMENTS LLC |
Parcel PIN#: |
2813-14-048-1300 |
|
| Owner Name 2: | 1/4 section #: |
2813 |
||
| Owner Name 3: | Parent Acct: |
|
||
| Billing Address: | PO BOX 7681 | Tax District: |
|
|
| City, State, Zip | MOORE, OK 73153 | School System: |
Putnam City #1 |
|
|
Country: (If noted) |
Land Size: |
0.1928 Acres |
||
|
Land Value: 40,320 |
|
|||
|
Sect 4-T12N-R4W Qtr NE |
ROBERTS BROOKHAVEN
Block
002
Lot
010
|
|||
| Full Legal Description: ROBERTS BROOKHAVEN 002 010 |
| Photo & Sketch (if available) | Comp Sales (ordered by relevancy) |
|
||||||||||||||||||
|
||||||||||||||||||||
| Value History (*The County Treasurer 405-713-1300 posts & collects actual tax amounts. Contact information HERE) | |||||||||||||
|---|---|---|---|---|---|---|---|---|---|---|---|---|---|
| Year | Market Value | Taxable Mkt Value | Gross Assessed | Exemption | Net Assessed | Millage | Est. Tax | Tax Savings | |||||
|
2025 |
229,000 |
191,441 |
21,057 |
0 |
21,057 |
123.17 |
$2,594 |
$509 |
|||||
|
2024 |
226,500 |
182,325 |
20,055 |
0 |
20,055 |
122.30 |
$2,453 |
$594 |
|||||
|
2023 |
213,500 |
173,643 |
19,100 |
0 |
19,100 |
121.91 |
$2,329 |
$534 |
|||||
|
2022 |
187,500 |
165,375 |
18,191 |
0 |
18,191 |
123.41 |
$2,245 |
$300 |
|||||
|
2021 |
161,000 |
157,500 |
17,325 |
0 |
17,325 |
122.23 |
$2,118 |
$47 |
|||||
| Property Account Status/Adjustments/Exemptions | ||
|---|---|---|
| Account # | Exemption Description | Amount |
|
R140481300 |
5% Capped Account |
0 |
| Property Deed Transaction History (Recorded in the County Clerk's Office) | |||||||
|---|---|---|---|---|---|---|---|
| Date | Type | Book | Page | Price | Grantor | Grantee | |
|
10/15/2018 |
|
Deeds |
$80,000 |
MYERS BARBARA ANN |
SIMMONS INVESTMENTS LLC |
||
|
9/13/2001 |
|
Deeds |
$117,500 |
LONGACRE CHESTER W & CAROL A |
MYERS BARBARA ANN |
||
|
9/27/1996 |
|
Historical |
$67,500 |
GUNTER BETTY J |
LONGACRE CHESTER W & CAROL A |
||
|
11/1/1982 |
|
Historical |
$0 |
|
GUNTER BETTY J |
||
| Last Mailed Notice of Value (N.O.V.) Information/History | ||||||||
|---|---|---|---|---|---|---|---|---|
| Year | Date | Market Value | Taxable Market Value | Gross Assessed | Exemption | Net Assessed | ||
|
2026 |
02/23/2026 |
222,500 |
201,013 |
22,110 |
0 |
22,110 |
||
|
2025 |
02/14/2025 |
229,000 |
191,441 |
21,057 |
0 |
21,057 |
||
|
2024 |
02/13/2024 |
226,500 |
182,325 |
20,055 |
0 |
20,055 |
||
|
2023 |
02/14/2023 |
213,500 |
173,643 |
19,100 |
0 |
19,100 |
||
|
2022 |
03/15/2022 |
187,500 |
165,375 |
18,191 |
0 |
18,191 |
||
| Property Building Permit History | |||||||||||
|---|---|---|---|---|---|---|---|---|---|---|---|
| Issued | Permit # | Provided by | Bldg # | Description | Est Construction Cost | Status | |||||
| No Building Permit records returned. | |||||||||||
| Click button on building number to access detailed information: | ||||||
|---|---|---|---|---|---|---|
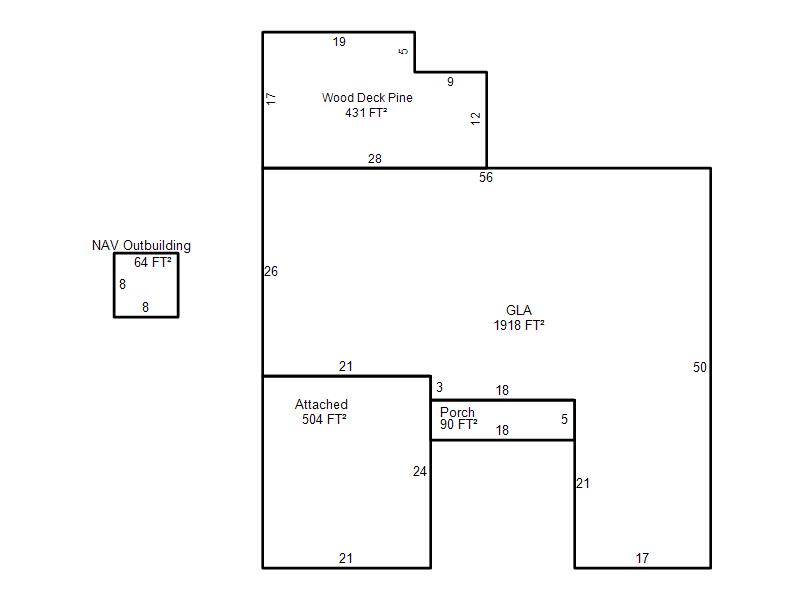
| Bldg # | Vacant/Improved Land | Bldg Description | Year Built | SqFt | # Stories | |
|
1 |
Improved |
Ranch 1 Story |
1973 |
1,918 |
1 Stories |
|