|
|
|
| Larry Stein Oklahoma County Assessor (405) 713-1200 - Public Access System |
|
|
|
|
|
|
| Real Property Display - Screen Produced 4/6/2026 4:07:27 AM | ||||
|---|---|---|---|---|
| Account: R189071350 | Type: Residential | Location: |
6026 NW EXPRESSWAY ST, Unit A |
|
| Building Name/Occupant: |
|
WARR ACRES |
||
| Owner Name 1: | KING TROY GLYNN JR |
Parcel PIN#: |
2813-18-907-1350 |
|
| Owner Name 2: | 1/4 section #: |
2813 |
||
| Owner Name 3: | Parent Acct: |
|
||
| Billing Address: | 6026 NW EXPRESSWAY, Unit A | Tax District: |
|
|
| City, State, Zip | OKLAHOMA CITY, OK 73132-5115 | School System: |
Putnam City #1 |
|
|
Country: (If noted) |
Land Size: |
1.0000 Square Feet |
||
|
Land Value: 6,300 |
|
|||
|
Sect 4-T12N-R4W Qtr NE |
CEDAR LAKE ESTATES
Block
000
Lot
000
|
|||
| Full Legal Description: CEDAR LAKE ESTATES 000 000 UNIT 6026 A |
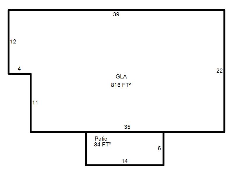
| Photo & Sketch (if available) | Comp Sales (ordered by relevancy) |
|
||||||||||||||||||
|
||||||||||||||||||||
| Value History (*The County Treasurer 405-713-1300 posts & collects actual tax amounts. Contact information HERE) | |||||||||||||
|---|---|---|---|---|---|---|---|---|---|---|---|---|---|
| Year | Market Value | Taxable Mkt Value | Gross Assessed | Exemption | Net Assessed | Millage | Est. Tax | Tax Savings | |||||
|
2026 |
50,000 |
42,116 |
4,632 |
0 |
4,632 |
115.77 |
$536 |
$100 |
|||||
|
2025 |
50,500 |
40,111 |
4,412 |
0 |
4,412 |
115.77 |
$511 |
$132 |
|||||
|
2024 |
51,000 |
38,201 |
4,202 |
0 |
4,202 |
114.25 |
$480 |
$161 |
|||||
|
2023 |
47,000 |
36,382 |
4,001 |
0 |
4,001 |
117.84 |
$472 |
$138 |
|||||
|
2022 |
39,500 |
34,650 |
3,811 |
0 |
3,811 |
120.40 |
$459 |
$64 |
|||||
| Property Account Status/Adjustments/Exemptions | ||
|---|---|---|
| Account # | Exemption Description | Amount |
|
R189071350 |
5% Capped Account |
0 |
| Property Deed Transaction History (Recorded in the County Clerk's Office) | |||||||
|---|---|---|---|---|---|---|---|
| Date | Type | Book | Page | Price | Grantor | Grantee | |
|
3/23/2026 |
|
Hmstd Off & |
$0 |
KING GLYNN & HAZLE LIV TRUST |
KING TROY GLYNN JR |
||
|
9/12/1997 |
|
Historical |
$17,500 |
BRYANT DOROTHA L |
KING GLYNN & HAZLE LIV TRUST |
||
|
6/1/1978 |
|
Historical |
$0 |
|
BRYANT DOROTHA L |
||
| Last Mailed Notice of Value (N.O.V.) Information/History | ||||||||
|---|---|---|---|---|---|---|---|---|
| Year | Date | Market Value | Taxable Market Value | Gross Assessed | Exemption | Net Assessed | ||
|
2026 |
02/23/2026 |
50,000 |
42,116 |
4,632 |
0 |
4,632 |
||
|
2025 |
02/14/2025 |
50,500 |
40,111 |
4,412 |
0 |
4,412 |
||
|
2024 |
02/13/2024 |
51,000 |
38,201 |
4,202 |
0 |
4,202 |
||
|
2023 |
02/14/2023 |
47,000 |
36,382 |
4,001 |
0 |
4,001 |
||
|
2022 |
03/15/2022 |
39,500 |
34,650 |
3,811 |
0 |
3,811 |
||
| Property Building Permit History | |||||||||||
|---|---|---|---|---|---|---|---|---|---|---|---|
| Issued | Permit # | Provided by | Bldg # | Description | Est Construction Cost | Status | |||||
| No Building Permit records returned. | |||||||||||
| Click button on building number to access detailed information: | ||||||
|---|---|---|---|---|---|---|
| Bldg # | Vacant/Improved Land | Bldg Description | Year Built | SqFt | # Stories | |
|
1 |
Improved |
Condo <= 3 Stories |
1979 |
816 |
1 Stories |
|