|
|
|
| Larry Stein Oklahoma County Assessor (405) 713-1200 - Public Access System |
|
|
|
|
|
|
| Real Property Display - Screen Produced 4/1/2026 9:14:40 PM | ||||
|---|---|---|---|---|
| Account: R189071460 | Type: Residential | Location: |
6030 NW EXPRESSWAY ST, Unit D |
|
| Building Name/Occupant: |
|
WARR ACRES |
||
| Owner Name 1: | TRACTION RENTALS LLC |
Parcel PIN#: |
2813-18-907-1460 |
|
| Owner Name 2: | 1/4 section #: |
2813 |
||
| Owner Name 3: | Parent Acct: |
|
||
| Billing Address: | 5030 N MAY AVE, Unit PMB 460 | Tax District: |
|
|
| City, State, Zip | OKLAHOMA CITY, OK 73112 | School System: |
Putnam City #1 |
|
|
Country: (If noted) |
Land Size: |
1.0000 Square Feet |
||
|
Land Value: 6,300 |
|
|||
|
Sect 4-T12N-R4W Qtr NE |
CEDAR LAKE ESTATES
Block
000
Lot
000
|
|||
| Full Legal Description: CEDAR LAKE ESTATES 000 000 UNIT 6030 D |
| Photo & Sketch (if available) | Comp Sales (ordered by relevancy) |
|
||||||||||||||||||
|
||||||||||||||||||||
| Value History (*The County Treasurer 405-713-1300 posts & collects actual tax amounts. Contact information HERE) | |||||||||||||
|---|---|---|---|---|---|---|---|---|---|---|---|---|---|
| Year | Market Value | Taxable Mkt Value | Gross Assessed | Exemption | Net Assessed | Millage | Est. Tax | Tax Savings | |||||
|
2026 |
50,000 |
50,000 |
5,500 |
0 |
5,500 |
115.77 |
$637 |
$0 |
|||||
|
2025 |
50,500 |
50,500 |
5,555 |
0 |
5,555 |
115.77 |
$643 |
$0 |
|||||
|
2024 |
51,000 |
51,000 |
5,610 |
0 |
5,610 |
114.25 |
$641 |
$0 |
|||||
|
2023 |
47,000 |
39,375 |
4,331 |
0 |
4,331 |
117.84 |
$510 |
$99 |
|||||
|
2022 |
37,500 |
37,500 |
4,125 |
0 |
4,125 |
120.40 |
$497 |
$0 |
|||||
| Property Account Status/Adjustments/Exemptions | ||
|---|---|---|
| Account # | Exemption Description | Amount |
|
R189071460 |
5% Capped Account |
0 |
| Property Deed Transaction History (Recorded in the County Clerk's Office) | ||||||||||
|---|---|---|---|---|---|---|---|---|---|---|
| Date | Type | Book | Page | Price | Grantor | Grantee | ||||
|
2/28/2023 |
|
Deeds |
$44,000 |
NGUYEN PHUONG HOANG ETAL |
TRACTION RENTALS LLC |
|||||
|
8/26/2020 |
|
Deeds |
$38,000 |
XIE HARRY HAI BAO & XIAO JUN WANG |
NGUYEN PHUONG HOANG ETAL |
|||||
|
3/24/2006 |
|
Deeds |
$28,000 |
A OK LANDLORD HELPER LC |
XIE HARRY HAI BAO & XIAO JUN WANG |
|||||
|
3/4/2003 |
|
Other |
$0 |
MAHLBERG SANDRA A |
A OK LANDLORD HELPER LC |
|||||
|
7/13/1995 |
|
Historical |
$16,000 |
DERRICK WILL & MARY LOU |
MAHLBERG SANDRA A |
|||||
| Last Mailed Notice of Value (N.O.V.) Information/History | ||||||||
|---|---|---|---|---|---|---|---|---|
| Year | Date | Market Value | Taxable Market Value | Gross Assessed | Exemption | Net Assessed | ||
|
2024 |
02/13/2024 |
51,000 |
51,000 |
5,610 |
0 |
5,610 |
||
|
2023 |
02/14/2023 |
47,000 |
39,375 |
4,331 |
0 |
4,331 |
||
|
2021 |
03/19/2021 |
37,500 |
37,500 |
4,125 |
0 |
4,125 |
||
|
2020 |
03/10/2020 |
31,500 |
31,500 |
3,465 |
0 |
3,465 |
||
|
2018 |
04/16/2018 |
31,500 |
31,500 |
3,465 |
0 |
3,465 |
||
| Property Building Permit History | |||||||||||
|---|---|---|---|---|---|---|---|---|---|---|---|
| Issued | Permit # | Provided by | Bldg # | Description | Est Construction Cost | Status | |||||
| No Building Permit records returned. | |||||||||||
| Click button on building number to access detailed information: | ||||||
|---|---|---|---|---|---|---|
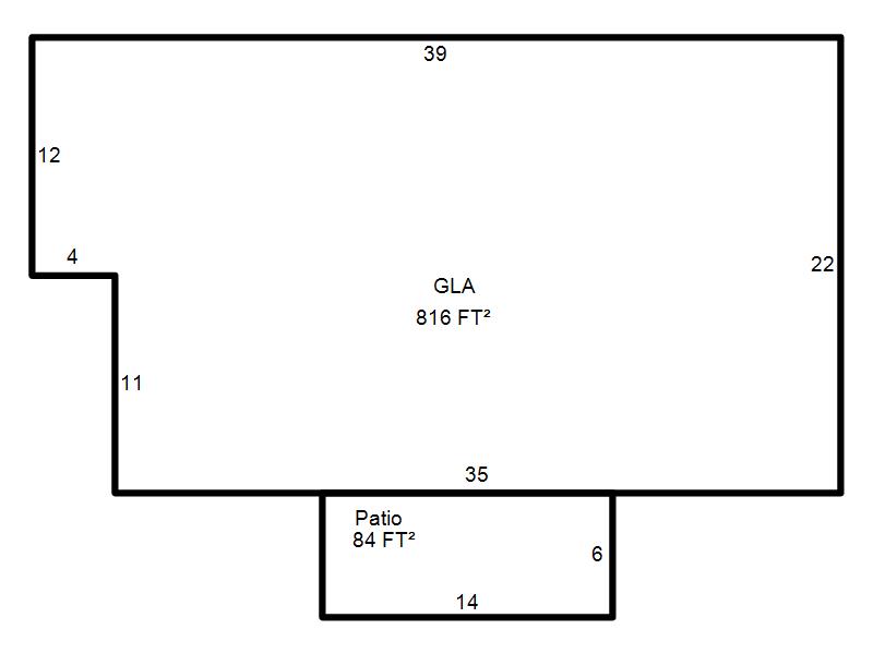
| Bldg # | Vacant/Improved Land | Bldg Description | Year Built | SqFt | # Stories | |
|
1 |
Improved |
Condo <= 3 Stories |
1979 |
816 |
1 Stories |
|