|
|
|
| Larry Stein Oklahoma County Assessor (405) 713-1200 - Public Access System |
|
|
|
|
|
|
| Real Property Display - Screen Produced 4/5/2026 3:50:07 AM | ||||
|---|---|---|---|---|
| Account: R100112000 | Type: Residential | Location: |
6113 W GUN HILL WAY |
|
| Building Name/Occupant: |
|
WARR ACRES |
||
| Owner Name 1: | CASTLEBERRY NANCY E |
Parcel PIN#: |
2814-10-011-2000 |
|
| Owner Name 2: | 1/4 section #: |
2814 |
||
| Owner Name 3: | Parent Acct: |
|
||
| Billing Address: | 6113 W GUN HILL WAY | Tax District: |
|
|
| City, State, Zip | WARR ACRES, OK 73132-6409 | School System: |
Putnam City #1 |
|
|
Country: (If noted) |
Land Size: |
0.2112 Acres |
||
|
Land Value: 45,080 |
|
|||
|
Sect 4-T12N-R4W Qtr SE |
TWIN LAKES GUN CLUB ADD
Block
007
Lot
013
|
|||
| Full Legal Description: TWIN LAKES GUN CLUB ADD 007 013 |
| Photo & Sketch (if available) | Comp Sales (ordered by relevancy) |
|
||||||||||||||||||
|
||||||||||||||||||||
| Value History (*The County Treasurer 405-713-1300 posts & collects actual tax amounts. Contact information HERE) | |||||||||||||
|---|---|---|---|---|---|---|---|---|---|---|---|---|---|
| Year | Market Value | Taxable Mkt Value | Gross Assessed | Exemption | Net Assessed | Millage | Est. Tax | Tax Savings | |||||
|
2026 |
253,000 |
138,913 |
15,280 |
1,000 |
14,280 |
115.77 |
$1,653 |
$1,569 |
|||||
|
2025 |
261,000 |
138,913 |
15,280 |
1,000 |
14,280 |
115.77 |
$1,653 |
$1,671 |
|||||
|
2024 |
265,000 |
138,913 |
15,280 |
1,000 |
14,280 |
114.25 |
$1,632 |
$1,699 |
|||||
|
2023 |
253,500 |
138,913 |
15,280 |
1,000 |
14,280 |
117.84 |
$1,683 |
$1,603 |
|||||
|
2022 |
226,000 |
138,913 |
15,280 |
1,000 |
14,280 |
120.40 |
$1,719 |
$1,274 |
|||||
| Property Account Status/Adjustments/Exemptions | ||
|---|---|---|
| Account # | Exemption Description | Amount |
|
R100112000 |
Freeze Senior Valuation |
0 |
|
R100112000 |
3% Cap Homestead |
0 |
|
R100112000 |
Homestead |
1,000 |
| Property Deed Transaction History (Recorded in the County Clerk's Office) | ||||||||||
|---|---|---|---|---|---|---|---|---|---|---|
| Date | Type | Book | Page | Price | Grantor | Grantee | ||||
|
6/15/2006 |
|
Deeds |
$0 |
GRIMES PAT MARIE |
CASTLEBERRY NANCY E |
|||||
|
6/15/2004 |
|
Deeds |
$0 |
GRIMES PAT MARIE |
CASTLEBERRY NANCY E |
|||||
|
4/25/2001 |
|
Deeds |
$0 |
CASTLEBERRY NANCY E GRIMES PAT MARIE |
CASTLEBERRY NANCY E |
|||||
|
9/29/2000 |
|
Deeds |
$125,000 |
MCCREDIE PRISCILLA K & A J TRS MCCREDIE PRISCILLA K REV TRUS |
CASTLEBERRY NANCY E GRIMES PAT MARIE |
|||||
|
3/30/1993 |
|
Historical |
$0 |
MCCREDIE A J & PRISCILLA K TRS |
MCCREDIE PRISCILLA K & A J TRS |
|||||
| Last Mailed Notice of Value (N.O.V.) Information/History | ||||||||
|---|---|---|---|---|---|---|---|---|
| Year | Date | Market Value | Taxable Market Value | Gross Assessed | Exemption | Net Assessed | ||
|
2024 |
02/13/2024 |
265,000 |
138,913 |
15,280 |
1,000 |
14,280 |
||
|
2023 |
02/14/2023 |
253,500 |
138,913 |
15,280 |
1,000 |
14,280 |
||
|
2022 |
03/15/2022 |
226,000 |
138,913 |
15,280 |
1,000 |
14,280 |
||
|
2021 |
03/19/2021 |
184,500 |
138,913 |
15,280 |
1,000 |
14,280 |
||
|
2020 |
03/10/2020 |
181,000 |
138,913 |
15,280 |
1,000 |
14,280 |
||
| Property Building Permit History | |||||||||||
|---|---|---|---|---|---|---|---|---|---|---|---|
| Issued | Permit # | Provided by | Bldg # | Description | Est Construction Cost | Status | |||||
| No Building Permit records returned. | |||||||||||
| Click button on building number to access detailed information: | ||||||
|---|---|---|---|---|---|---|
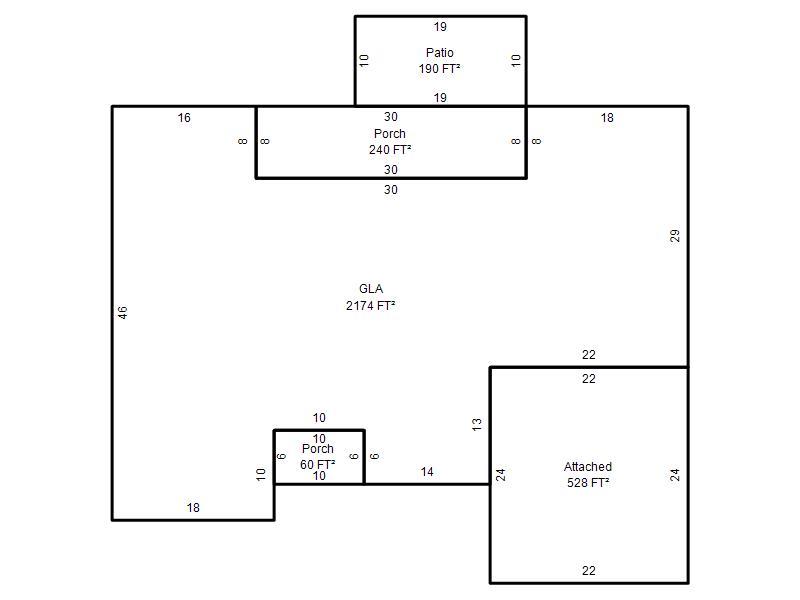
| Bldg # | Vacant/Improved Land | Bldg Description | Year Built | SqFt | # Stories | |
|
1 |
Improved |
Ranch 1 Story |
1981 |
2,174 |
1 Stories |
|