|
|
|
| Larry Stein Oklahoma County Assessor (405) 713-1200 - Public Access System |
|
|
|
|
|
|
| Real Property Display - Screen Produced 4/5/2026 1:13:06 AM | ||||
|---|---|---|---|---|
| Account: R144671700 | Type: Residential | Location: |
6840 WOODLAKE DR |
|
| Building Name/Occupant: |
|
OKLAHOMA CITY |
||
| Owner Name 1: | ANTHEM RESOURCES LLC |
Parcel PIN#: |
2815-14-467-1700 |
|
| Owner Name 2: | 1/4 section #: |
2815 |
||
| Owner Name 3: | Parent Acct: |
|
||
| Billing Address: | 6608 N WESTERN AVE STE 339 | Tax District: |
|
|
| City, State, Zip | OKLAHOMA CITY, OK 73116 | School System: |
Putnam City #1 |
|
|
Country: (If noted) |
Land Size: |
0.2066 Acres |
||
|
Land Value: 32,400 |
|
|||
|
Sect 4-T12N-R4W Qtr SW |
WOODLAKE AMENDED
Block
006
Lot
008
|
|||
| Full Legal Description: WOODLAKE AMENDED 006 008 |
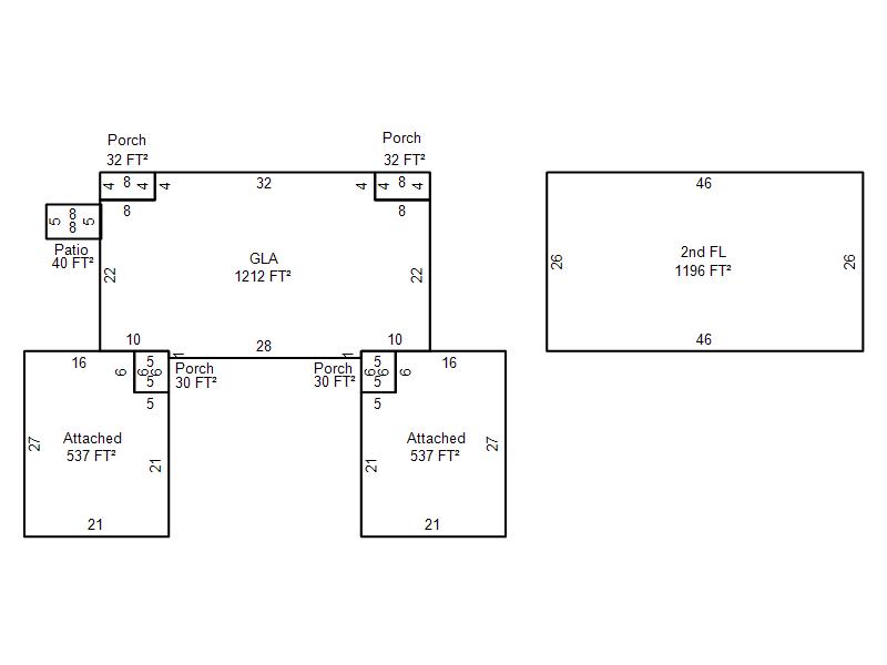
| Photo & Sketch (if available) | Comp Sales (ordered by relevancy) |
|
||||||||||||||||||
|
||||||||||||||||||||
| Value History (*The County Treasurer 405-713-1300 posts & collects actual tax amounts. Contact information HERE) | |||||||||||||
|---|---|---|---|---|---|---|---|---|---|---|---|---|---|
| Year | Market Value | Taxable Mkt Value | Gross Assessed | Exemption | Net Assessed | Millage | Est. Tax | Tax Savings | |||||
|
2026 |
244,000 |
232,160 |
25,537 |
0 |
25,537 |
123.17 |
$3,145 |
$160 |
|||||
|
2025 |
241,000 |
221,105 |
24,321 |
0 |
24,321 |
123.17 |
$2,996 |
$270 |
|||||
|
2024 |
234,000 |
210,577 |
23,163 |
0 |
23,163 |
122.30 |
$2,833 |
$315 |
|||||
|
2023 |
216,000 |
200,550 |
22,060 |
0 |
22,060 |
121.91 |
$2,689 |
$207 |
|||||
|
2022 |
191,000 |
191,000 |
21,010 |
0 |
21,010 |
123.41 |
$2,593 |
$0 |
|||||
| Property Account Status/Adjustments/Exemptions | ||
|---|---|---|
| Account # | Exemption Description | Amount |
|
R144671700 |
5% Capped Account |
0 |
| Property Deed Transaction History (Recorded in the County Clerk's Office) | |||||||
|---|---|---|---|---|---|---|---|
| Date | Type | Book | Page | Price | Grantor | Grantee | |
|
11/29/2021 |
|
Mult Parcel |
$1,700,000 |
WOODSON JAN TRS |
ANTHEM RESOURCES LLC |
||
|
12/15/2015 |
|
Hmstd Off & |
$0 |
WOODSON THOMAS TRS ETAL |
WOODSON JAN TRS |
||
|
11/22/1999 |
|
Deeds |
$0 |
WOODSON DAN E TRS WOODSON DAN EARL TRUST |
WOODSON THOMAS TRS ETAL |
||
|
3/9/1993 |
|
Historical |
$0 |
WOODSON DAN E & JAN R |
WOODSON DAN EARL TRS |
||
|
6/1/1984 |
|
Historical |
$0 |
|
WOODSON DAN E & JAN R |
||
| Last Mailed Notice of Value (N.O.V.) Information/History | ||||||||
|---|---|---|---|---|---|---|---|---|
| Year | Date | Market Value | Taxable Market Value | Gross Assessed | Exemption | Net Assessed | ||
|
2026 |
02/23/2026 |
244,000 |
232,160 |
25,537 |
0 |
25,537 |
||
|
2025 |
02/14/2025 |
241,000 |
221,105 |
24,321 |
0 |
24,321 |
||
|
2024 |
02/13/2024 |
234,000 |
210,577 |
23,163 |
0 |
23,163 |
||
|
2023 |
02/14/2023 |
216,000 |
200,550 |
22,060 |
0 |
22,060 |
||
|
2022 |
03/15/2022 |
191,000 |
191,000 |
21,010 |
0 |
21,010 |
||
| Property Building Permit History | |||||||||||
|---|---|---|---|---|---|---|---|---|---|---|---|
| Issued | Permit # | Provided by | Bldg # | Description | Est Construction Cost | Status | |||||
| No Building Permit records returned. | |||||||||||
| Click button on building number to access detailed information: | ||||||
|---|---|---|---|---|---|---|
| Bldg # | Vacant/Improved Land | Bldg Description | Year Built | SqFt | # Stories | |
|
1 |
Improved |
Duplex Two Story |
1976 |
2,408 |
2 Stories |
|