|
|
|
| Larry Stein Oklahoma County Assessor (405) 713-1200 - Public Access System |
|
|
|
|
|
|
| Real Property Display - Screen Produced 2/27/2026 9:34:01 PM | ||||
|---|---|---|---|---|
| Account: R148791030 | Type: Residential | Location: |
6440 N COLLEGE AVE |
|
| Building Name/Occupant: |
|
OKLAHOMA CITY |
||
| Owner Name 1: | LANGLEY ZILLAH |
Parcel PIN#: |
2815-14-879-1030 |
|
| Owner Name 2: | LANGLEY PATSY | 1/4 section #: |
2815 |
|
| Owner Name 3: | Parent Acct: |
|
||
| Billing Address: | 6440 N COLLEGE AVE | Tax District: |
|
|
| City, State, Zip | OKLAHOMA CITY, OK 73132-7208 | School System: |
Putnam City #1 |
|
|
Country: (If noted) |
Land Size: |
0.1928 Acres |
||
|
Land Value: 32,760 |
|
|||
|
Sect 4-T12N-R4W Qtr SW |
GALAXIE DEVE 4 SEASONS SEC 1
Block
001
Lot
004
|
|||
| Full Legal Description: GALAXIE DEVE 4 SEASONS SEC 1 001 004 |
| Photo & Sketch (if available) | Comp Sales (ordered by relevancy) |
|
||||||||||||||||||
|
||||||||||||||||||||
| Value History (*The County Treasurer 405-713-1300 posts & collects actual tax amounts. Contact information HERE) | |||||||||||||
|---|---|---|---|---|---|---|---|---|---|---|---|---|---|
| Year | Market Value | Taxable Mkt Value | Gross Assessed | Exemption | Net Assessed | Millage | Est. Tax | Tax Savings | |||||
|
2025 |
203,000 |
203,000 |
22,330 |
0 |
22,330 |
123.17 |
$2,750 |
$0 |
|||||
|
2024 |
196,000 |
150,041 |
16,503 |
1,000 |
15,503 |
122.30 |
$1,896 |
$741 |
|||||
|
2023 |
179,500 |
145,671 |
16,023 |
1,000 |
15,023 |
121.91 |
$1,832 |
$576 |
|||||
|
2022 |
162,500 |
141,429 |
15,556 |
1,000 |
14,556 |
123.41 |
$1,797 |
$409 |
|||||
|
2021 |
150,500 |
137,310 |
15,103 |
1,000 |
14,103 |
122.23 |
$1,724 |
$300 |
|||||
| Property Account Status/Adjustments/Exemptions | ||
|---|---|---|
| Account # | Exemption Description | Amount |
|
R148791030 |
5% Capped Account |
0 |
| Property Deed Transaction History (Recorded in the County Clerk's Office) | ||||||||||
|---|---|---|---|---|---|---|---|---|---|---|
| Date | Type | Book | Page | Price | Grantor | Grantee | ||||
|
2/21/2024 |
|
Deeds |
$245,000 |
HANSARD JEROME C DAN & DELAWNDA L |
LANGLEY ZILLAH |
|||||
|
2/29/2008 |
|
Deeds |
$0 |
BANKER JO ALLEN |
BANKER LUCILLE A |
|||||
|
2/29/2008 |
|
Deeds |
$117,000 |
BANKER LUCILLE A |
HANSARD JEROME C DAN & DELAWNDA L |
|||||
|
5/24/2004 |
|
Deeds |
$0 |
BANKER JOE A & LUCILLE A |
BANKER LUCILLE A |
|||||
|
9/13/1996 |
|
Historical |
$79,500 |
RICHARDSON RUSSELL G & BETTY G |
BANKER JOE A & LUCILLE A |
|||||
| Last Mailed Notice of Value (N.O.V.) Information/History | ||||||||
|---|---|---|---|---|---|---|---|---|
| Year | Date | Market Value | Taxable Market Value | Gross Assessed | Exemption | Net Assessed | ||
|
2026 |
02/23/2026 |
204,500 |
204,500 |
22,495 |
0 |
22,495 |
||
|
2025 |
02/14/2025 |
203,000 |
203,000 |
22,330 |
0 |
22,330 |
||
|
2024 |
02/13/2024 |
196,000 |
150,041 |
16,503 |
1,000 |
15,503 |
||
|
2024 |
04/05/2024 |
196,000 |
150,041 |
16,503 |
1,000 |
15,503 |
||
|
2023 |
02/14/2023 |
179,500 |
145,671 |
16,023 |
1,000 |
15,023 |
||
| Property Building Permit History | |||||||||||
|---|---|---|---|---|---|---|---|---|---|---|---|
| Issued | Permit # | Provided by | Bldg # | Description | Est Construction Cost | Status | |||||
| No Building Permit records returned. | |||||||||||
| Click button on building number to access detailed information: | ||||||
|---|---|---|---|---|---|---|
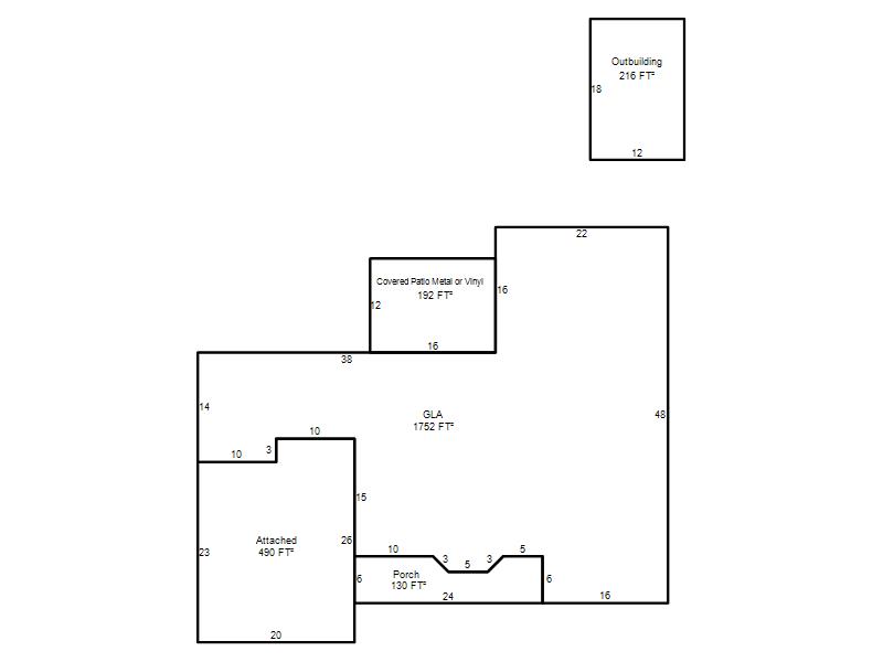
| Bldg # | Vacant/Improved Land | Bldg Description | Year Built | SqFt | # Stories | |
|
1 |
Improved |
Ranch 1 Story |
1969 |
1,752 |
1 Stories |
|