|
|
|
| Larry Stein Oklahoma County Assessor (405) 713-1200 - Public Access System |
|
|
|
|
|
|
| Real Property Display - Screen Produced 2/27/2026 9:34:01 PM | ||||
|---|---|---|---|---|
| Account: R148791260 | Type: Residential | Location: |
6436 GALAXIE DR |
|
| Building Name/Occupant: |
|
OKLAHOMA CITY |
||
| Owner Name 1: | WINBORN ADAM R |
Parcel PIN#: |
2815-14-879-1260 |
|
| Owner Name 2: | 1/4 section #: |
2815 |
||
| Owner Name 3: | Parent Acct: |
|
||
| Billing Address: | 8405 COYOTE RDG | Tax District: |
|
|
| City, State, Zip | ARCADIA, OK 73007-4501 | School System: |
Putnam City #1 |
|
|
Country: (If noted) |
Land Size: |
0.1508 Acres |
||
|
Land Value: 26,937 |
|
|||
|
Sect 4-T12N-R4W Qtr SW |
GALAXIE DEVE 4 SEASONS SEC 1
Block
002
Lot
000
|
|||
| Full Legal Description: GALAXIE DEVE 4 SEASONS SEC 1 002 000 PT OF LOT 2 BEG 142.10FT E & 54.18FT S OF NW/C LT 2 TH S42.65FT SW12.90FT NWLY149.02FT NELY ON A CURVE 35.60FT SELY144.88FT TO BEG |
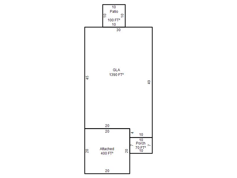
| Photo & Sketch (if available) | Comp Sales (ordered by relevancy) |
|
||||||||||||||||||
|
||||||||||||||||||||
| Value History (*The County Treasurer 405-713-1300 posts & collects actual tax amounts. Contact information HERE) | |||||||||||||
|---|---|---|---|---|---|---|---|---|---|---|---|---|---|
| Year | Market Value | Taxable Mkt Value | Gross Assessed | Exemption | Net Assessed | Millage | Est. Tax | Tax Savings | |||||
|
2025 |
185,500 |
139,300 |
15,322 |
0 |
15,322 |
123.17 |
$1,887 |
$626 |
|||||
|
2024 |
185,500 |
132,667 |
14,592 |
0 |
14,592 |
122.30 |
$1,785 |
$711 |
|||||
|
2023 |
157,000 |
126,350 |
13,897 |
0 |
13,897 |
121.91 |
$1,694 |
$411 |
|||||
|
2022 |
148,000 |
120,334 |
13,236 |
0 |
13,236 |
123.41 |
$1,634 |
$376 |
|||||
|
2021 |
121,000 |
114,604 |
12,606 |
0 |
12,606 |
122.23 |
$1,541 |
$86 |
|||||
| Property Account Status/Adjustments/Exemptions | ||
|---|---|---|
| Account # | Exemption Description | Amount |
|
R148791260 |
5% Capped Account |
0 |
| Property Deed Transaction History (Recorded in the County Clerk's Office) | |||||||
|---|---|---|---|---|---|---|---|
| Date | Type | Book | Page | Price | Grantor | Grantee | |
|
9/19/2008 |
|
Deeds |
$125,000 |
BITTER CREEK HOMES LLC |
WINBORN ADAM R |
||
|
4/9/2008 |
|
Deeds |
$30,000 |
WOODY THOMAS WARREN TRUSTEE WOODY THOMAS WARREN LIVING TRUST |
BITTER CREEK HOMES LLC |
||
|
8/30/2007 |
|
Hmstd Off & |
$0 |
WOODY THOMAS W |
WOODY THOMAS WARREN TRUSTEE WOODY THOMAS WARREN LIVING TRUST |
||
|
5/1/1978 |
|
Historical |
$0 |
|
WOODY THOMAS W |
||
| Last Mailed Notice of Value (N.O.V.) Information/History | ||||||||
|---|---|---|---|---|---|---|---|---|
| Year | Date | Market Value | Taxable Market Value | Gross Assessed | Exemption | Net Assessed | ||
|
2026 |
02/23/2026 |
195,000 |
146,265 |
16,089 |
0 |
16,089 |
||
|
2025 |
02/14/2025 |
185,500 |
139,300 |
15,322 |
0 |
15,322 |
||
|
2024 |
02/13/2024 |
185,500 |
132,667 |
14,592 |
0 |
14,592 |
||
|
2023 |
02/14/2023 |
157,000 |
126,350 |
13,897 |
0 |
13,897 |
||
|
2022 |
03/15/2022 |
148,000 |
120,334 |
13,236 |
0 |
13,236 |
||
| Property Building Permit History | ||||||
|---|---|---|---|---|---|---|
| Issued | Permit # | Provided by | Bldg # | Description | Est Construction Cost | Status |
|
4/8/2008 |
10352899 |
OKLAHOMA CITY |
1 |
Main Dwellin |
190,000 |
Inactive |
|
3/4/2005 |
10304649 |
OKLAHOMA CITY |
1 |
Demolish |
0 |
Inactive |
| Click button on building number to access detailed information: | ||||||
|---|---|---|---|---|---|---|
| Bldg # | Vacant/Improved Land | Bldg Description | Year Built | SqFt | # Stories | |
|
1 |
Improved |
Duplex One Story |
2008 |
1,390 |
1 Stories |
|