|
|
|
| Larry Stein Oklahoma County Assessor (405) 713-1200 - Public Access System |
|
|
|
|
|
|
| Real Property Display - Screen Produced 3/14/2026 8:09:45 AM | ||||
|---|---|---|---|---|
| Account: R267071660 | Type: Residential | Location: |
2617 INDIAN SPRINGS DR |
|
| Building Name/Occupant: |
|
UNINCORPORATED |
||
| Owner Name 1: | LUBA STEVEN A & SHEILA J |
Parcel PIN#: |
1039-26-707-1660 |
|
| Owner Name 2: | 1/4 section #: |
1039 |
||
| Owner Name 3: | Parent Acct: |
|
||
| Billing Address: | 2617 INDIAN SPRINGS DR | Tax District: |
|
|
| City, State, Zip | HARRAH, OK 73045-6349 | School System: |
Choctaw #4 |
|
|
Country: (If noted) |
Land Size: |
1.0100 Acres |
||
|
Land Value: 44,945 |
|
|||
|
Sect 10-T11N-R1E Qtr SW |
WOODBRIDGE ESTATES
Block
005
Lot
002
|
|||
| Full Legal Description: WOODBRIDGE ESTATES BLK 005 LOT 002 |
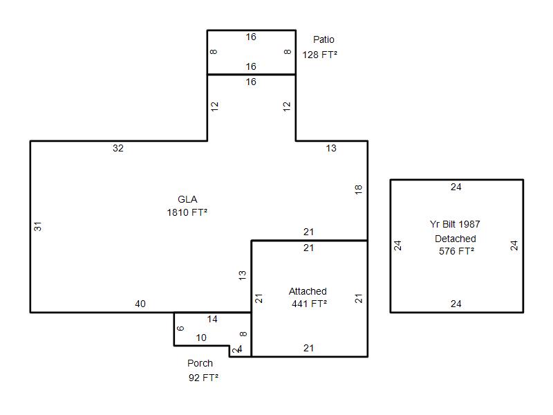
| Photo & Sketch (if available) | Comp Sales (ordered by relevancy) |
|
||||||||||||||||||
|
||||||||||||||||||||
| Value History (*The County Treasurer 405-713-1300 posts & collects actual tax amounts. Contact information HERE) | |||||||||||||
|---|---|---|---|---|---|---|---|---|---|---|---|---|---|
| Year | Market Value | Taxable Mkt Value | Gross Assessed | Exemption | Net Assessed | Millage | Est. Tax | Tax Savings | |||||
|
2025 |
285,000 |
227,794 |
25,056 |
1,000 |
24,056 |
117.21 |
$2,820 |
$855 |
|||||
|
2024 |
282,000 |
221,160 |
24,327 |
1,000 |
23,327 |
116.35 |
$2,714 |
$895 |
|||||
|
2023 |
271,000 |
214,719 |
23,618 |
1,000 |
22,618 |
117.10 |
$2,649 |
$842 |
|||||
|
2022 |
228,000 |
208,466 |
22,930 |
1,000 |
21,930 |
115.17 |
$2,526 |
$363 |
|||||
|
2021 |
209,500 |
202,395 |
22,263 |
1,000 |
21,263 |
115.06 |
$2,447 |
$205 |
|||||
| Property Account Status/Adjustments/Exemptions | ||
|---|---|---|
| Account # | Exemption Description | Amount |
|
R267071660 |
3% Cap Homestead |
0 |
|
R267071660 |
Homestead |
1,000 |
| Property Deed Transaction History (Recorded in the County Clerk's Office) | |||||||
|---|---|---|---|---|---|---|---|
| Date | Type | Book | Page | Price | Grantor | Grantee | |
|
5/14/1997 |
|
Historical |
$115,000 |
KOPENHAFER JAMES F & LINDA M |
LUBA STEVEN A & SHEILA J |
||
|
3/28/1990 |
|
Historical |
$76,500 |
HILL DANNY T & JUDY D |
KOPENHAFER JAMES F & LINDA M |
||
|
8/7/1987 |
|
Historical |
$80,500 |
TELEPHONE TECHNOLOGY CORP |
HILL DANNY T & JUDY D |
||
|
11/11/1911 |
|
Historical |
$0 |
|
TELEPHONE TECHNOLOGY CORP |
||
| Last Mailed Notice of Value (N.O.V.) Information/History | ||||||||
|---|---|---|---|---|---|---|---|---|
| Year | Date | Market Value | Taxable Market Value | Gross Assessed | Exemption | Net Assessed | ||
|
2026 |
02/06/2026 |
294,000 |
234,627 |
25,808 |
1,000 |
24,808 |
||
|
2025 |
01/31/2025 |
285,000 |
227,794 |
25,056 |
1,000 |
24,056 |
||
|
2024 |
01/22/2024 |
282,000 |
221,160 |
24,327 |
1,000 |
23,327 |
||
|
2023 |
01/23/2023 |
271,000 |
214,719 |
23,618 |
1,000 |
22,618 |
||
|
2022 |
02/22/2022 |
228,000 |
208,466 |
22,930 |
1,000 |
21,930 |
||
| Property Building Permit History | |||||||||||
|---|---|---|---|---|---|---|---|---|---|---|---|
| Issued | Permit # | Provided by | Bldg # | Description | Est Construction Cost | Status | |||||
| No Building Permit records returned. | |||||||||||
| Click button on building number to access detailed information: | ||||||
|---|---|---|---|---|---|---|
| Bldg # | Vacant/Improved Land | Bldg Description | Year Built | SqFt | # Stories | |
|
1 |
Improved |
Ranch 1 Story |
1987 |
1,810 |
1 Stories |
|