|
|
|
| Larry Stein Oklahoma County Assessor (405) 713-1200 - Public Access System |
|
|
|
|
|
|
| Real Property Display - Screen Produced 4/10/2026 4:06:57 PM | ||||
|---|---|---|---|---|
| Account: R127651100 | Type: Residential | Location: |
6201 WOODCREEK CT |
|
| Building Name/Occupant: |
|
WARR ACRES |
||
| Owner Name 1: | MCCOLLUM BRYTNEE A & JAMES F |
Parcel PIN#: |
2833-12-765-1100 |
|
| Owner Name 2: | 1/4 section #: |
2833 |
||
| Owner Name 3: | Parent Acct: |
|
||
| Billing Address: | 6201 WOODCREEK CT | Tax District: |
|
|
| City, State, Zip | WARR ACRES, OK 73122 | School System: |
Putnam City #1 |
|
|
Country: (If noted) |
Land Size: |
0.2724 Acres |
||
|
Land Value: 51,782 |
|
|||
|
Sect 9-T12N-R4W Qtr NE |
WOODCREEK ADDN TO WARR ACRES
Block
001
Lot
011
|
|||
| Full Legal Description: WOODCREEK ADDN TO WARR ACRES 001 011 |
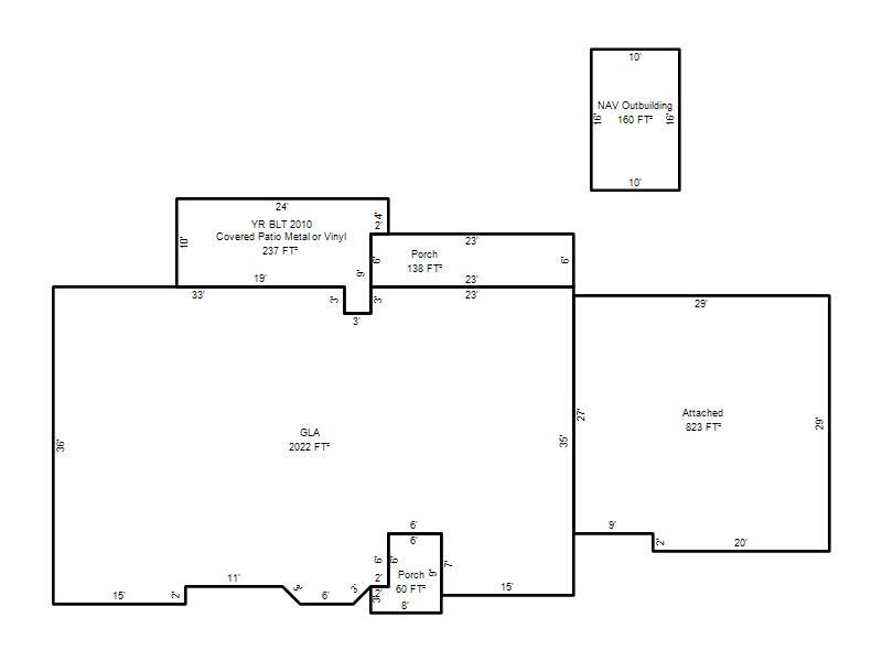
| Photo & Sketch (if available) | Comp Sales (ordered by relevancy) |
|
||||||||||||||||||
|
||||||||||||||||||||
| Value History (*The County Treasurer 405-713-1300 posts & collects actual tax amounts. Contact information HERE) | |||||||||||||
|---|---|---|---|---|---|---|---|---|---|---|---|---|---|
| Year | Market Value | Taxable Mkt Value | Gross Assessed | Exemption | Net Assessed | Millage | Est. Tax | Tax Savings | |||||
|
2026 |
280,000 |
280,000 |
30,800 |
0 |
30,800 |
115.77 |
$3,566 |
$0 |
|||||
|
2025 |
284,500 |
284,500 |
31,295 |
0 |
31,295 |
115.77 |
$3,623 |
$0 |
|||||
|
2024 |
299,000 |
215,524 |
23,707 |
1,000 |
22,707 |
114.25 |
$2,594 |
$1,163 |
|||||
|
2023 |
252,500 |
209,247 |
23,016 |
1,000 |
22,016 |
117.84 |
$2,595 |
$679 |
|||||
|
2022 |
231,500 |
203,153 |
22,345 |
1,000 |
21,345 |
120.40 |
$2,570 |
$496 |
|||||
| Property Account Status/Adjustments/Exemptions | ||
|---|---|---|
| Account # | Exemption Description | Amount |
|
R127651100 |
5% Capped Account |
0 |
| Property Deed Transaction History (Recorded in the County Clerk's Office) | ||||||||||
|---|---|---|---|---|---|---|---|---|---|---|
| Date | Type | Book | Page | Price | Grantor | Grantee | ||||
|
7/29/2024 |
|
Deeds |
$0 |
PRADO VANDERLEI & PRISCILA |
PRADO VANDERLEI |
|||||
|
7/29/2024 |
|
Deeds |
$285,000 |
PRADO VANDERLEI |
MCCOLLUM BRYTNEE A & JAMES F |
|||||
|
3/17/2014 |
|
Deeds |
$0 |
PRADO VANDERLEI |
PRADO VANDERLEI & PRISCILA |
|||||
|
12/31/2009 |
|
Mult Parcel |
$200,000 |
BOSTON JOE FRED JR |
PRADO VANDERLEI |
|||||
|
7/31/2007 |
|
Deeds |
$168,000 |
BYNUM JOHN P |
BOSTON JOE FRED JR |
|||||
| Last Mailed Notice of Value (N.O.V.) Information/History | ||||||||
|---|---|---|---|---|---|---|---|---|
| Year | Date | Market Value | Taxable Market Value | Gross Assessed | Exemption | Net Assessed | ||
|
2025 |
02/14/2025 |
284,500 |
284,500 |
31,295 |
0 |
31,295 |
||
|
2024 |
02/13/2024 |
299,000 |
215,524 |
23,707 |
1,000 |
22,707 |
||
|
2023 |
02/14/2023 |
252,500 |
209,247 |
23,016 |
1,000 |
22,016 |
||
|
2022 |
03/15/2022 |
231,500 |
203,153 |
22,345 |
1,000 |
21,345 |
||
|
2021 |
03/19/2021 |
217,500 |
197,236 |
21,695 |
1,000 |
20,695 |
||
| Property Building Permit History | ||||||
|---|---|---|---|---|---|---|
| Issued | Permit # | Provided by | Bldg # | Description | Est Construction Cost | Status |
|
9/17/1997 |
10218821 |
WARR ACRES |
1 |
Main Dwellin |
140,000 |
Inactive |
| Click button on building number to access detailed information: | ||||||
|---|---|---|---|---|---|---|
| Bldg # | Vacant/Improved Land | Bldg Description | Year Built | SqFt | # Stories | |
|
1 |
Improved |
Ranch 1 Story |
1998 |
2,022 |
1 Stories |
|