|
|
|
| Larry Stein Oklahoma County Assessor (405) 713-1200 - Public Access System |
|
|
|
|
|
|
| Real Property Display - Screen Produced 4/1/2026 2:11:36 AM | ||||
|---|---|---|---|---|
| Account: R150071000 | Type: Residential | Location: |
1711 THOMPSON DR |
|
| Building Name/Occupant: |
|
MIDWEST CITY |
||
| Owner Name 1: | WILSON LINDA J |
Parcel PIN#: |
1414-15-007-1000 |
|
| Owner Name 2: | 1/4 section #: |
1414 |
||
| Owner Name 3: | Parent Acct: |
|
||
| Billing Address: | 1711 THOMPSON DR | Tax District: |
|
|
| City, State, Zip | MIDWEST CITY, OK 73110-2540 | School System: |
Mid-Del #52 |
|
|
Country: (If noted) |
Land Size: |
0.1940 Acres |
||
|
Land Value: 22,393 |
|
|||
|
Sect 4-T11N-R2W Qtr SE |
BILL ATKINSONS RANCHETS REPLAT
Block
003
Lot
000
|
|||
| Full Legal Description: BILL ATKINSON RANCHETS B3-11 003 000 S15FT LOT 9 & N35FT LOT 10 |
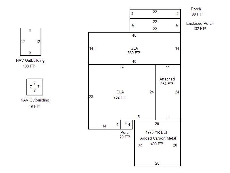
| Photo & Sketch (if available) | Comp Sales (ordered by relevancy) |
|
||||||||||||||||||
|
||||||||||||||||||||
| Value History (*The County Treasurer 405-713-1300 posts & collects actual tax amounts. Contact information HERE) | |||||||||||||
|---|---|---|---|---|---|---|---|---|---|---|---|---|---|
| Year | Market Value | Taxable Mkt Value | Gross Assessed | Exemption | Net Assessed | Millage | Est. Tax | Tax Savings | |||||
|
2026 |
147,500 |
64,323 |
7,075 |
1,000 |
6,075 |
119.58 |
$727 |
$1,214 |
|||||
|
2025 |
148,500 |
64,323 |
7,075 |
1,000 |
6,075 |
119.58 |
$727 |
$1,227 |
|||||
|
2024 |
136,500 |
64,323 |
7,075 |
1,000 |
6,075 |
122.51 |
$744 |
$1,095 |
|||||
|
2023 |
117,500 |
64,323 |
7,075 |
1,000 |
6,075 |
117.71 |
$715 |
$806 |
|||||
|
2022 |
102,500 |
64,323 |
7,075 |
1,000 |
6,075 |
116.64 |
$709 |
$606 |
|||||
| Property Account Status/Adjustments/Exemptions | ||
|---|---|---|
| Account # | Exemption Description | Amount |
|
R150071000 |
Freeze Senior Valuation |
0 |
|
R150071000 |
3% Cap Homestead |
0 |
|
R150071000 |
Homestead |
1,000 |
| Property Deed Transaction History (Recorded in the County Clerk's Office) | |||||||
|---|---|---|---|---|---|---|---|
| Date | Type | Book | Page | Price | Grantor | Grantee | |
|
3/7/2013 |
|
Deeds |
$0 |
WILSON DON K & LINDA J |
WILSON LINDA J |
||
|
9/15/1988 |
|
Historical |
$0 |
BROWN LINDA |
WILSON DON K & LINDA J |
||
|
11/11/1911 |
|
Historical |
$0 |
|
BROWN LINDA |
||
| Last Mailed Notice of Value (N.O.V.) Information/History | ||||||||
|---|---|---|---|---|---|---|---|---|
| Year | Date | Market Value | Taxable Market Value | Gross Assessed | Exemption | Net Assessed | ||
|
2025 |
01/31/2025 |
148,500 |
64,323 |
7,075 |
1,000 |
6,075 |
||
|
2024 |
01/22/2024 |
136,500 |
64,323 |
7,075 |
1,000 |
6,075 |
||
|
2023 |
01/23/2023 |
117,500 |
64,323 |
7,075 |
1,000 |
6,075 |
||
|
2022 |
02/22/2022 |
102,500 |
64,323 |
7,075 |
1,000 |
6,075 |
||
|
2021 |
02/24/2021 |
88,000 |
64,323 |
7,075 |
1,000 |
6,075 |
||
| Property Building Permit History | |||||||||||
|---|---|---|---|---|---|---|---|---|---|---|---|
| Issued | Permit # | Provided by | Bldg # | Description | Est Construction Cost | Status | |||||
| No Building Permit records returned. | |||||||||||
| Click button on building number to access detailed information: | ||||||
|---|---|---|---|---|---|---|
| Bldg # | Vacant/Improved Land | Bldg Description | Year Built | SqFt | # Stories | |
|
1 |
Improved |
Ranch 1 Story |
1949 |
1,312 |
1 Stories |
|