|
|
|
| Larry Stein Oklahoma County Assessor (405) 713-1200 - Public Access System |
|
|
|
|
|
|
| Real Property Display - Screen Produced 4/10/2026 4:06:56 PM | ||||
|---|---|---|---|---|
| Account: R127651240 | Type: Residential | Location: |
6204 WOODCREEK CT |
|
| Building Name/Occupant: |
|
WARR ACRES |
||
| Owner Name 1: | CORY PATRICK D & MARYE E |
Parcel PIN#: |
2833-12-765-1240 |
|
| Owner Name 2: | 1/4 section #: |
2833 |
||
| Owner Name 3: | Parent Acct: |
|
||
| Billing Address: | 6204 WOODCREEK CT | Tax District: |
|
|
| City, State, Zip | WARR ACRES, OK 73122 | School System: |
Putnam City #1 |
|
|
Country: (If noted) |
UNITED STATES |
Land Size: |
0.1855 Acres |
|
|
Land Value: 37,976 |
|
|||
|
Sect 9-T12N-R4W Qtr NE |
WOODCREEK ADDN TO WARR ACRES
Block
003
Lot
004
|
|||
| Full Legal Description: WOODCREEK ADDN TO WARR ACRES 003 004 |
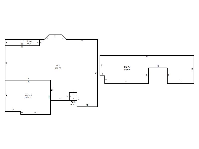
| Photo & Sketch (if available) | Comp Sales (ordered by relevancy) |
|
||||||||||||||||||
|
||||||||||||||||||||
| Value History (*The County Treasurer 405-713-1300 posts & collects actual tax amounts. Contact information HERE) | |||||||||||||
|---|---|---|---|---|---|---|---|---|---|---|---|---|---|
| Year | Market Value | Taxable Mkt Value | Gross Assessed | Exemption | Net Assessed | Millage | Est. Tax | Tax Savings | |||||
|
2026 |
313,500 |
302,731 |
33,299 |
1,000 |
32,299 |
115.77 |
$3,739 |
$253 |
|||||
|
2025 |
318,000 |
293,914 |
32,329 |
1,000 |
31,329 |
115.77 |
$3,627 |
$422 |
|||||
|
2024 |
333,000 |
285,354 |
31,388 |
0 |
31,388 |
114.25 |
$3,586 |
$599 |
|||||
|
2023 |
284,500 |
271,766 |
29,893 |
0 |
29,893 |
117.84 |
$3,523 |
$165 |
|||||
|
2022 |
262,000 |
258,825 |
28,470 |
0 |
28,470 |
120.40 |
$3,428 |
$42 |
|||||
| Property Account Status/Adjustments/Exemptions | ||
|---|---|---|
| Account # | Exemption Description | Amount |
|
R127651240 |
Homestead |
1,000 |
|
R127651240 |
3% Cap Homestead |
0 |
| Property Deed Transaction History (Recorded in the County Clerk's Office) | ||||||||||
|---|---|---|---|---|---|---|---|---|---|---|
| Date | Type | Book | Page | Price | Grantor | Grantee | ||||
|
9/30/2020 |
|
Deeds |
$248,500 |
JACKSON NANCY A |
CORY PATRICK D & MARYE E |
|||||
|
6/4/2020 |
|
Deeds |
$0 |
JACKSON NANCY A & RICHARD D |
JACKSON NANCY A |
|||||
|
12/13/2006 |
|
Deeds |
$0 |
SITTON NANCY |
JACKSON NANCY A & RICHARD D |
|||||
|
12/4/2006 |
|
Deeds |
$0 |
MOLINA NANCY & ROBERT J |
SITTON NANCY |
|||||
|
6/8/2005 |
|
Deeds |
$0 |
MCMAHON NANCY |
MOLINA NANCY & ROBERT J |
|||||
| Last Mailed Notice of Value (N.O.V.) Information/History | ||||||||
|---|---|---|---|---|---|---|---|---|
| Year | Date | Market Value | Taxable Market Value | Gross Assessed | Exemption | Net Assessed | ||
|
2026 |
02/23/2026 |
313,500 |
302,731 |
33,299 |
1,000 |
32,299 |
||
|
2025 |
02/14/2025 |
318,000 |
293,914 |
32,329 |
1,000 |
31,329 |
||
|
2024 |
02/13/2024 |
333,000 |
285,354 |
31,388 |
0 |
31,388 |
||
|
2023 |
02/14/2023 |
284,500 |
271,766 |
29,893 |
0 |
29,893 |
||
|
2022 |
03/15/2022 |
262,000 |
258,825 |
28,470 |
0 |
28,470 |
||
| Property Building Permit History | ||||||
|---|---|---|---|---|---|---|
| Issued | Permit # | Provided by | Bldg # | Description | Est Construction Cost | Status |
|
8/1/1996 |
10218842 |
WARR ACRES |
1 |
Main Dwellin |
150,000 |
Inactive |
| Click button on building number to access detailed information: | ||||||
|---|---|---|---|---|---|---|
| Bldg # | Vacant/Improved Land | Bldg Description | Year Built | SqFt | # Stories | |
|
1 |
Improved |
1½ Story Fin |
1996 |
2,841 |
1.5 Stories |
|