|
|
|
| Larry Stein Oklahoma County Assessor (405) 713-1200 - Public Access System |
|
|
|
|
|
|
| Real Property Display - Screen Produced 4/10/2026 4:06:43 PM | ||||
|---|---|---|---|---|
| Account: R127651250 | Type: Residential | Location: |
6200 WOODCREEK CT |
|
| Building Name/Occupant: |
|
WARR ACRES |
||
| Owner Name 1: | FOLTZ BRIAN G |
Parcel PIN#: |
2833-12-765-1250 |
|
| Owner Name 2: | SADLER CONNIE & ALLEN | 1/4 section #: |
2833 |
|
| Owner Name 3: | Parent Acct: |
|
||
| Billing Address: | 6200 WOODCREEK CT | Tax District: |
|
|
| City, State, Zip | WARR ACRES, OK 73122 | School System: |
Putnam City #1 |
|
|
Country: (If noted) |
Land Size: |
0.2724 Acres |
||
|
Land Value: 55,770 |
|
|||
|
Sect 9-T12N-R4W Qtr NE |
WOODCREEK ADDN TO WARR ACRES
Block
003
Lot
005
|
|||
| Full Legal Description: WOODCREEK ADDN TO WARR ACRES 003 005 |
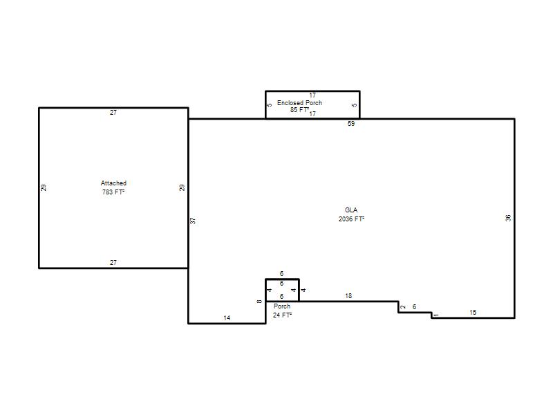
| Photo & Sketch (if available) | Comp Sales (ordered by relevancy) |
|
||||||||||||||||||
|
||||||||||||||||||||
| Value History (*The County Treasurer 405-713-1300 posts & collects actual tax amounts. Contact information HERE) | |||||||||||||
|---|---|---|---|---|---|---|---|---|---|---|---|---|---|
| Year | Market Value | Taxable Mkt Value | Gross Assessed | Exemption | Net Assessed | Millage | Est. Tax | Tax Savings | |||||
|
2026 |
283,500 |
270,369 |
29,740 |
0 |
29,740 |
115.77 |
$3,443 |
$167 |
|||||
|
2025 |
284,000 |
257,495 |
28,323 |
0 |
28,323 |
115.77 |
$3,279 |
$338 |
|||||
|
2024 |
297,500 |
245,234 |
26,975 |
0 |
26,975 |
114.25 |
$3,082 |
$657 |
|||||
|
2023 |
252,500 |
233,557 |
25,690 |
0 |
25,690 |
117.84 |
$3,027 |
$246 |
|||||
|
2022 |
231,500 |
222,436 |
24,467 |
0 |
24,467 |
120.40 |
$2,946 |
$120 |
|||||
| Property Account Status/Adjustments/Exemptions | ||||||
|---|---|---|---|---|---|---|
| Account # | Exemption Description | Amount | ||||
| No adjustment/exemption records returned. | ||||||
| Property Deed Transaction History (Recorded in the County Clerk's Office) | ||||||||||
|---|---|---|---|---|---|---|---|---|---|---|
| Date | Type | Book | Page | Price | Grantor | Grantee | ||||
|
11/1/2021 |
|
Hmstd Off & |
$0 |
FOLTZ BRIAN G & CYNTHIA D |
FOLTZ BRIAN G |
|||||
|
8/30/2021 |
|
Hmstd Off & |
$0 |
FOLTZ BRIAN G & CYNTHIA D |
FOLTZ BRIAN G & CYNTHIA D |
|||||
|
7/27/2015 |
|
Deeds |
$168,000 |
HILGENBERG YVONNE TRS HILGENBERG YVONNE REV TRUST |
FOLTZ BRIAN G & CYNTHIA D |
|||||
|
5/30/2000 |
|
Deeds |
$0 |
HOLLINGSHEAD YVONNE HILGENBERG |
HILGENBERG YVONNE TRS HILGENBERG YVONNE REV TRUST |
|||||
|
8/6/1997 |
|
Historical |
$140,000 |
WITT CONSTRUCTION INC |
HOLLINGSHEAD YVONNE HILGENBERG |
|||||
| Last Mailed Notice of Value (N.O.V.) Information/History | ||||||||
|---|---|---|---|---|---|---|---|---|
| Year | Date | Market Value | Taxable Market Value | Gross Assessed | Exemption | Net Assessed | ||
|
2026 |
02/23/2026 |
283,500 |
270,369 |
29,740 |
0 |
29,740 |
||
|
2025 |
02/14/2025 |
284,000 |
257,495 |
28,323 |
0 |
28,323 |
||
|
2024 |
02/13/2024 |
297,500 |
245,234 |
26,975 |
0 |
26,975 |
||
|
2023 |
02/14/2023 |
252,500 |
233,557 |
25,690 |
0 |
25,690 |
||
|
2022 |
03/15/2022 |
231,500 |
222,436 |
24,467 |
0 |
24,467 |
||
| Property Building Permit History | ||||||
|---|---|---|---|---|---|---|
| Issued | Permit # | Provided by | Bldg # | Description | Est Construction Cost | Status |
|
7/14/1998 |
10218844 |
WARR ACRES |
1 |
Add On |
14,000 |
Inactive |
|
12/2/1996 |
10218843 |
WARR ACRES |
1 |
Main Dwellin |
150,000 |
Inactive |
| Click button on building number to access detailed information: | ||||||
|---|---|---|---|---|---|---|
| Bldg # | Vacant/Improved Land | Bldg Description | Year Built | SqFt | # Stories | |
|
1 |
Improved |
Ranch 1 Story |
1997 |
2,036 |
1 Stories |
|