|
|
|
| Larry Stein Oklahoma County Assessor (405) 713-1200 - Public Access System |
|
|
|
|
|
|
| Real Property Display - Screen Produced 4/1/2026 2:11:36 AM | ||||
|---|---|---|---|---|
| Account: R150073800 | Type: Residential | Location: |
1817 SANDRA DR |
|
| Building Name/Occupant: |
|
MIDWEST CITY |
||
| Owner Name 1: | EVDO PROPERTIES LLC |
Parcel PIN#: |
1414-15-007-3800 |
|
| Owner Name 2: | 1/4 section #: |
1414 |
||
| Owner Name 3: | Parent Acct: |
|
||
| Billing Address: | 1720 TERRACE HEIGHTS LN | Tax District: |
|
|
| City, State, Zip | RENO, NV 89523 | School System: |
Mid-Del #52 |
|
|
Country: (If noted) |
Land Size: |
0.1791 Acres |
||
|
Land Value: 20,670 |
|
|||
|
Sect 4-T11N-R2W Qtr SE |
BILL ATKINSONS RANCHETS REPLAT
Block
004
Lot
002
|
|||
| Full Legal Description: BILL ATKINSON RANCHETS B3-11 004 002 |
| Photo & Sketch (if available) | Comp Sales (ordered by relevancy) |
|
||||||||||||||||||
|
||||||||||||||||||||
| Value History (*The County Treasurer 405-713-1300 posts & collects actual tax amounts. Contact information HERE) | |||||||||||||
|---|---|---|---|---|---|---|---|---|---|---|---|---|---|
| Year | Market Value | Taxable Mkt Value | Gross Assessed | Exemption | Net Assessed | Millage | Est. Tax | Tax Savings | |||||
|
2026 |
123,000 |
99,548 |
10,949 |
0 |
10,949 |
119.58 |
$1,309 |
$308 |
|||||
|
2025 |
126,000 |
94,808 |
10,428 |
0 |
10,428 |
119.58 |
$1,247 |
$410 |
|||||
|
2024 |
118,000 |
90,294 |
9,931 |
0 |
9,931 |
122.51 |
$1,217 |
$373 |
|||||
|
2023 |
104,000 |
85,995 |
9,459 |
0 |
9,459 |
117.71 |
$1,113 |
$233 |
|||||
|
2022 |
91,500 |
81,900 |
9,009 |
0 |
9,009 |
116.64 |
$1,051 |
$123 |
|||||
| Property Account Status/Adjustments/Exemptions | ||
|---|---|---|
| Account # | Exemption Description | Amount |
|
R150073800 |
5% Capped Account |
0 |
| Property Deed Transaction History (Recorded in the County Clerk's Office) | ||||||||||
|---|---|---|---|---|---|---|---|---|---|---|
| Date | Type | Book | Page | Price | Grantor | Grantee | ||||
|
10/20/2020 |
|
Deeds |
$75,000 |
ESTEP ANGELA LYNN |
EVDO PROPERTIES LLC |
|||||
|
6/10/2013 |
|
Deeds |
$0 |
HALE ANGELA L |
ESTEP ANGELA LYNN |
|||||
|
5/12/2011 |
|
Deeds |
$0 |
HALE DONALD JOE |
HALE ANGELA L |
|||||
|
2/4/1994 |
|
Historical |
$32,000 |
HALE DONALD J & ANGELA L |
HALE ANGELA L |
|||||
|
3/30/1992 |
|
Historical |
$15,000 |
CALDWELL MARK S & C DIANE |
HALE DONALD J & ANGELA L |
|||||
| Last Mailed Notice of Value (N.O.V.) Information/History | ||||||||
|---|---|---|---|---|---|---|---|---|
| Year | Date | Market Value | Taxable Market Value | Gross Assessed | Exemption | Net Assessed | ||
|
2026 |
02/06/2026 |
123,000 |
99,548 |
10,949 |
0 |
10,949 |
||
|
2025 |
01/31/2025 |
126,000 |
94,808 |
10,428 |
0 |
10,428 |
||
|
2024 |
01/22/2024 |
118,000 |
90,294 |
9,931 |
0 |
9,931 |
||
|
2023 |
01/23/2023 |
104,000 |
85,995 |
9,459 |
0 |
9,459 |
||
|
2022 |
02/22/2022 |
91,500 |
81,900 |
9,009 |
0 |
9,009 |
||
| Property Building Permit History | |||||||||||
|---|---|---|---|---|---|---|---|---|---|---|---|
| Issued | Permit # | Provided by | Bldg # | Description | Est Construction Cost | Status | |||||
| No Building Permit records returned. | |||||||||||
| Click button on building number to access detailed information: | ||||||
|---|---|---|---|---|---|---|
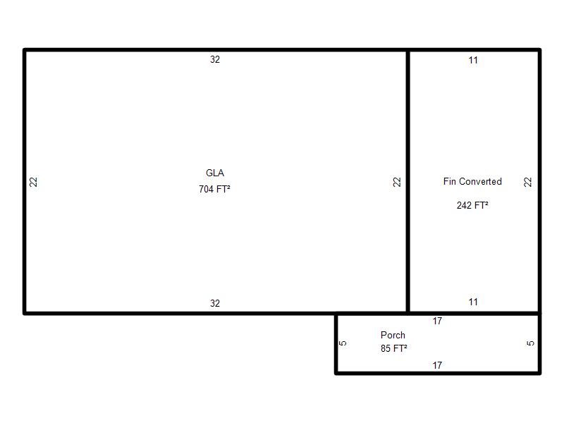
| Bldg # | Vacant/Improved Land | Bldg Description | Year Built | SqFt | # Stories | |
|
1 |
Improved |
Ranch 1 Story |
1949 |
704 |
1 Stories |
|