|
|
|
| Larry Stein Oklahoma County Assessor (405) 713-1200 - Public Access System |
|
|
|
|
|
|
| Real Property Display - Screen Produced 4/1/2026 1:57:31 AM | ||||
|---|---|---|---|---|
| Account: R150076070 | Type: Residential | Location: |
817 ASKEW DR |
|
| Building Name/Occupant: |
|
MIDWEST CITY |
||
| Owner Name 1: | REEDER EUGENE |
Parcel PIN#: |
1414-15-007-6070 |
|
| Owner Name 2: | 1/4 section #: |
1414 |
||
| Owner Name 3: | Parent Acct: |
|
||
| Billing Address: | 817 ASKEW DR | Tax District: |
|
|
| City, State, Zip | OKLAHOMA CITY, OK 73110 | School System: |
Mid-Del #52 |
|
|
Country: (If noted) |
UNITED STATES |
Land Size: |
0.1928 Acres |
|
|
Land Value: 22,260 |
|
|||
|
Sect 4-T11N-R2W Qtr SE |
BILL ATKINSONS RANCHETS REPLAT
Block
006
Lot
020
|
|||
| Full Legal Description: BILL ATKINSON RANCHETS B3-11 006 020 |
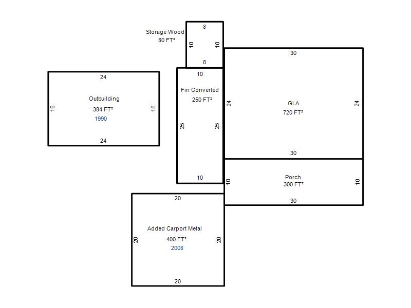
| Photo & Sketch (if available) | Comp Sales (ordered by relevancy) |
|
||||||||||||||||||
|
||||||||||||||||||||
| Value History (*The County Treasurer 405-713-1300 posts & collects actual tax amounts. Contact information HERE) | |||||||||||||
|---|---|---|---|---|---|---|---|---|---|---|---|---|---|
| Year | Market Value | Taxable Mkt Value | Gross Assessed | Exemption | Net Assessed | Millage | Est. Tax | Tax Savings | |||||
|
2026 |
186,500 |
186,500 |
20,515 |
1,000 |
19,515 |
119.58 |
$2,334 |
$120 |
|||||
|
2025 |
192,000 |
192,000 |
21,120 |
0 |
21,120 |
119.58 |
$2,526 |
$0 |
|||||
|
2024 |
102,000 |
102,000 |
11,220 |
0 |
11,220 |
122.51 |
$1,375 |
$0 |
|||||
|
2023 |
86,000 |
64,827 |
7,130 |
0 |
7,130 |
117.71 |
$839 |
$274 |
|||||
|
2022 |
75,500 |
61,740 |
6,791 |
0 |
6,791 |
116.64 |
$792 |
$177 |
|||||
| Property Account Status/Adjustments/Exemptions | ||
|---|---|---|
| Account # | Exemption Description | Amount |
|
R150076070 |
3% Cap Homestead |
0 |
|
R150076070 |
Homestead |
1,000 |
| Property Deed Transaction History (Recorded in the County Clerk's Office) | ||||||||||
|---|---|---|---|---|---|---|---|---|---|---|
| Date | Type | Book | Page | Price | Grantor | Grantee | ||||
|
7/8/2024 |
|
Deeds |
$175,000 |
PALAVRA INVESTMENTS LLC |
REEDER EUGENE |
|||||
|
10/24/2023 |
|
Sheriff's/Ma |
$56,000 |
HILL MICHAEL S |
PALAVRA INVESTMENTS LLC |
|||||
|
5/3/1999 |
|
Deeds |
$0 |
HILL MICHAEL S |
HILL MICHAEL S |
|||||
|
6/2/1998 |
|
Historical |
$0 |
HILL MICHAEL S |
HILL MICHAEL S |
|||||
|
5/2/1996 |
|
Deeds |
$0 |
HILL MICHAEL S & BEVERLY R |
HILL MICHAEL S |
|||||
| Last Mailed Notice of Value (N.O.V.) Information/History | ||||||||
|---|---|---|---|---|---|---|---|---|
| Year | Date | Market Value | Taxable Market Value | Gross Assessed | Exemption | Net Assessed | ||
|
2025 |
01/31/2025 |
192,000 |
192,000 |
21,120 |
0 |
21,120 |
||
|
2024 |
01/22/2024 |
102,000 |
68,068 |
7,486 |
0 |
7,486 |
||
|
2024 |
03/01/2024 |
102,000 |
102,000 |
11,220 |
0 |
11,220 |
||
|
2023 |
01/23/2023 |
86,000 |
64,827 |
7,130 |
0 |
7,130 |
||
|
2022 |
02/22/2022 |
75,500 |
61,740 |
6,791 |
0 |
6,791 |
||
| Property Building Permit History | |||||||||||
|---|---|---|---|---|---|---|---|---|---|---|---|
| Issued | Permit # | Provided by | Bldg # | Description | Est Construction Cost | Status | |||||
| No Building Permit records returned. | |||||||||||
| Click button on building number to access detailed information: | ||||||
|---|---|---|---|---|---|---|
| Bldg # | Vacant/Improved Land | Bldg Description | Year Built | SqFt | # Stories | |
|
1 |
Improved |
Ranch 1 Story |
1950 |
720 |
1 Stories |
|