|
|
|
| Larry Stein Oklahoma County Assessor (405) 713-1200 - Public Access System |
|
|
|
|
|
|
| Real Property Display - Screen Produced 2/27/2026 9:41:03 PM | ||||
|---|---|---|---|---|
| Account: R181701060 | Type: Residential | Location: |
6312 N COLLEGE ST |
|
| Building Name/Occupant: |
|
WARR ACRES |
||
| Owner Name 1: | JORDAN MICHAEL JAMES |
Parcel PIN#: |
2836-18-170-1060 |
|
| Owner Name 2: | 1/4 section #: |
2836 |
||
| Owner Name 3: | Parent Acct: |
|
||
| Billing Address: | 6312 N COLLEGE ST | Tax District: |
|
|
| City, State, Zip | WARR ACRES, OK 73122-7033 | School System: |
Putnam City #1 |
|
|
Country: (If noted) |
Land Size: |
0.1928 Acres |
||
|
Land Value: 40,320 |
|
|||
|
Sect 9-T12N-R4W Qtr NW |
W RAY NEWMANS WILLOWRIDGE
Block
002
Lot
002
|
|||
| Full Legal Description: W RAY NEWMANS WILLOWRIDGE 002 002 |
| Photo & Sketch (if available) | Comp Sales (ordered by relevancy) |
|
||||||||||||||||||
|
||||||||||||||||||||
| Value History (*The County Treasurer 405-713-1300 posts & collects actual tax amounts. Contact information HERE) | |||||||||||||
|---|---|---|---|---|---|---|---|---|---|---|---|---|---|
| Year | Market Value | Taxable Mkt Value | Gross Assessed | Exemption | Net Assessed | Millage | Est. Tax | Tax Savings | |||||
|
2025 |
210,500 |
169,552 |
18,650 |
0 |
18,650 |
115.77 |
$2,159 |
$521 |
|||||
|
2024 |
213,000 |
161,479 |
17,761 |
0 |
17,761 |
114.25 |
$2,029 |
$647 |
|||||
|
2023 |
203,000 |
153,790 |
16,916 |
0 |
16,916 |
117.84 |
$1,993 |
$638 |
|||||
|
2022 |
176,000 |
146,467 |
16,110 |
0 |
16,110 |
120.40 |
$1,940 |
$391 |
|||||
|
2021 |
145,500 |
139,493 |
15,343 |
0 |
15,343 |
119.77 |
$1,838 |
$79 |
|||||
| Property Account Status/Adjustments/Exemptions | ||
|---|---|---|
| Account # | Exemption Description | Amount |
|
R181701060 |
5% Capped Account |
0 |
| Property Deed Transaction History (Recorded in the County Clerk's Office) | |||||||
|---|---|---|---|---|---|---|---|
| Date | Type | Book | Page | Price | Grantor | Grantee | |
|
8/1/2005 |
|
Deeds |
$112,000 |
REECE CHARLES E SR |
JORDAN MICHAEL JAMES |
||
|
12/27/1993 |
|
Historical |
$0 |
MAYFIELD ALBION V & BARBARA W |
REECE CHARLES E SR |
||
|
6/1/1982 |
|
Historical |
$0 |
|
MAYFIELD ALBION V & BARBARA W |
||
| Last Mailed Notice of Value (N.O.V.) Information/History | ||||||||
|---|---|---|---|---|---|---|---|---|
| Year | Date | Market Value | Taxable Market Value | Gross Assessed | Exemption | Net Assessed | ||
|
2026 |
02/23/2026 |
205,500 |
178,029 |
19,582 |
0 |
19,582 |
||
|
2025 |
02/14/2025 |
210,500 |
169,552 |
18,650 |
0 |
18,650 |
||
|
2024 |
02/13/2024 |
213,000 |
161,479 |
17,761 |
0 |
17,761 |
||
|
2023 |
02/14/2023 |
203,000 |
153,790 |
16,916 |
0 |
16,916 |
||
|
2022 |
03/15/2022 |
176,000 |
146,467 |
16,110 |
0 |
16,110 |
||
| Property Building Permit History | |||||||||||
|---|---|---|---|---|---|---|---|---|---|---|---|
| Issued | Permit # | Provided by | Bldg # | Description | Est Construction Cost | Status | |||||
| No Building Permit records returned. | |||||||||||
| Click button on building number to access detailed information: | ||||||
|---|---|---|---|---|---|---|
| Bldg # | Vacant/Improved Land | Bldg Description | Year Built | SqFt | # Stories | |
|
1 |
Improved |
Ranch 1 Story |
1974 |
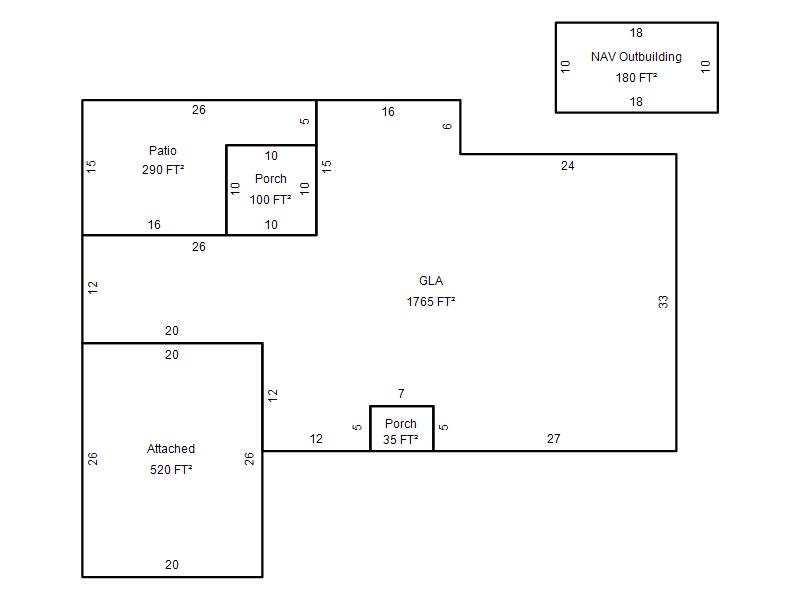
1,765 |
1 Stories |
|